查看完整案例


收藏

下载
集落营城 | 郑州永威西郡金桂苑+微棠大厦
上海日清建筑设计有限公司
郑州永威西郡金桂苑+微棠大厦
Yongwei Jin Gui Yuan + Wei Tang Building
中国,郑州
Zhengzhou, China
铁路,冰冷坚硬的铁轨连结了不同的地域,并带来了物质交流与文化交融,也影响了各个城市的建筑文化发展。
郑州作为中原城市群的中心城市,2000年后城市空间格局不断被拉大,城市空间模式从单核心模式转变为“多心、多极”的组团跳跃式空间结构。
集落营城
_
*
设计住宅,就是设计生活
郑州金桂苑+微棠大厦就是一个有着极佳的地域位置且“轴线与组团多层次发展”的现代化新城区。
相对宽松的地块规划让项目设计有充分的发挥空间,设计理念是以人为本,力求打造一个摆脱了紧凑工作而回归生活本身的“小世界”。
项目位于郑州市中心城区西部,中原新区南部,东临郑州市植物园,西临须水河,北临南水北调中线工程。
周边有多条城市重要干道和地铁线穿过,交通便利,出行随心。项目位于西四环和中原西路的交叉路口附近,与植物园对望呼应,生态环境优越,对城市肌理的形成有重要的影响。
建筑单体设计上也充分考虑了河南的气候特征,加大了窗户的采光面积,卫生间和厨房直接对外采光通风,室内干湿分区,并保证了每一户的良好景观朝向。
设计聚焦在重构城市社区风貌,提高城市空间活力,在未来的3-5年,中原新区将建成未来郑州城市的核心区,彼时,金桂苑和微棠大厦将成为配套齐全,宜居宜商的综合体。
递进的空间序列
_
金桂苑以社区大堂为起点,形成一东西轴线、两南北组团的空间序列,景观轴延展,形成秩序感与仪式感,两个组团景观,自由舒展,宜游宜憩,增加空间的层次,提升空间的可停留性。
微棠大厦位于地块的东北侧,以“L”形体块贴合道路转角处,既不压迫邻近道路的空间,还完美与城市整体空间相配合。
共享的生态花园
_
树木自然舒展,绿地富于变化,这个现代化的微城里隐藏了一座宁静的生态花园。
错落有致的景观空间使得自然景观资源能够被共享,远离闹市的嘈杂后,闲庭阔步间仍然取得一份悠然自得。
景观系统分为点、线、面、三个层次,以入口大堂景观为点、中心景观带为线、组团景观为面、结合建筑体量,再加以时间维度,景观就形成随季节变化的动态景观:春花秋月,夏雨冬雪,景观就有了节奏和生命力。
框架感的立面设计
_
*
与城市环境的一体化
方案在立面形式上也体现出对城市环境的尊重与关注。建筑与绿化界面在不同的高度上相互穿插,形成了各具特色的表面肌理,虚实结合,漫游其中,宛若画作徐徐展开的美好雅致。
立面有意设计出框架感的层次,选用灰白色和深灰色的色彩加强了这种高级的序列感,非均性分隔又使立面远离厚重死板,走向活跃与生机。
材料选择
_
暖灰色的石材,以相同的模数进行竖向划分,强调垂直感、简洁感。
整体立面设计遵循“线-面-体”的构成逻辑,整体线条中间加入深色 使线条更加硬朗挺拔。
通过硬朗的线条围合形成面 ,内部采用深色,与外框形成虚实对比,来增强建筑的张力。两侧的外框上下错动,使立面立面更富有设计感。
简约的立面构成体系,形成简洁挺拔的现代感,有机的格子错路肌理铺陈出活跃的美学界面,二者协调统一于一身。
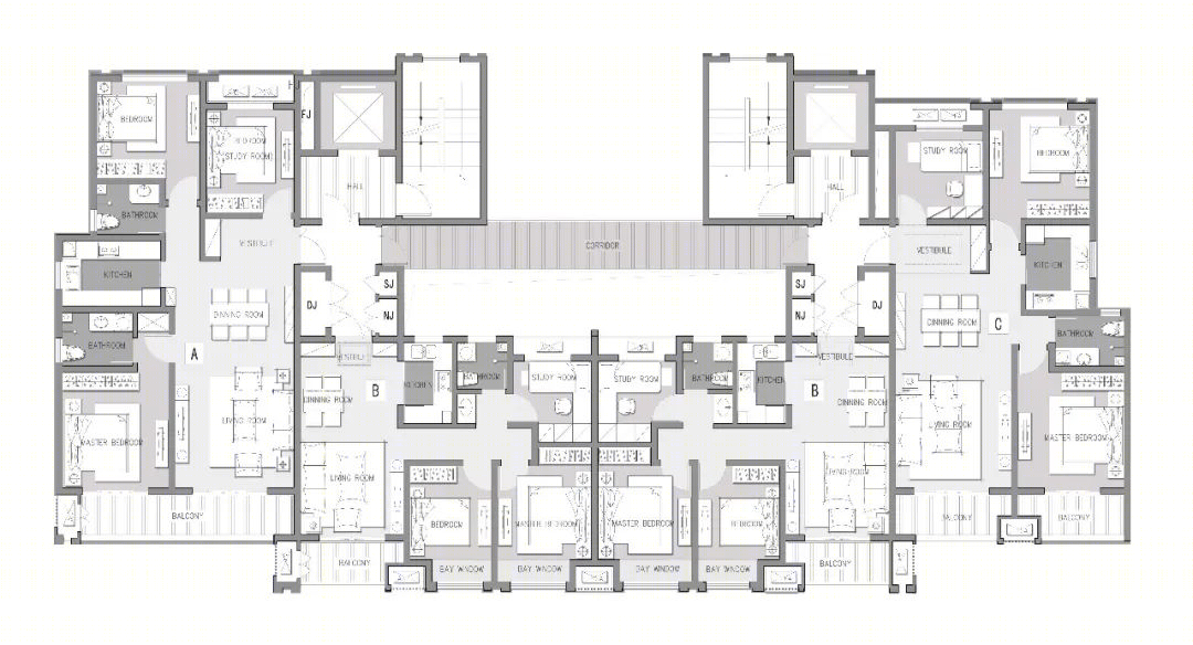
◎户型图
◎立面图
工程档案
项目名称 |
郑州永威西郡金桂苑+微棠大厦
项目地点 |
郑州中原区
业主单位 |
永威置业集团有限公司
设计单位 |
上海日清建筑设计有限公司
项目总负责 |
宋照青
项目负责人 |
陈斌 鲁健
设计团队 |
林静滨 张晓芳 车喜刚 颜丹妮 顾悦皎
甲方设计团队 |
张紫萱 于庆龙 马威 李献伟 赵漫丽 任鹏飞 苏升旭 李巍
施工图设计 |
河南省建筑设计研究院有限公司
景观设计 |
重庆道合园林景观规划设计有限公司
幕墙设计 |
苏州柯利达光电幕墙有限公司
幕墙施工 |
河南怡居明装饰工程有限公司
建筑面积 |
150971m²
摄影团队 |
E.LIT 光影空间
建成时间 |
2020年3月
品牌地产 | 精品楼盘考察活动 | 成都站
本次楼盘考察活动的时间为
9月24日- 25日
两天
(周四、周五)
推荐一个
专业的地产+建筑平台
每天都有新内容
合作、宣传、投稿
请加
客服
消息
收藏
下载
最近


























