查看完整案例


收藏

下载
案例简介
Case description
套内35㎡,层高2.66米的小公寓,你想到的是什么?脏乱、压抑、没有私人空间?
NO、NO,小户型可不代表没有质量的蜗居,一样可以诗意栖居。
屋主是一对年轻的小夫妻,他们对新家的期待是:核心区域明亮开阔、收纳空间多、卫浴宽敞舒适。
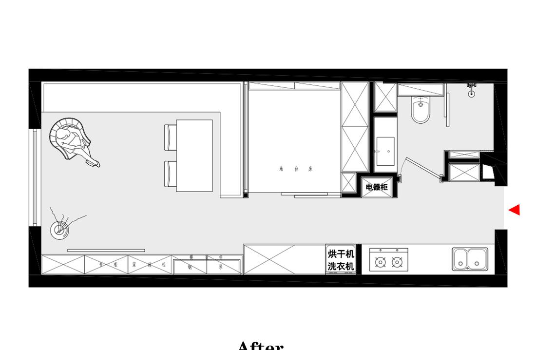
借助空间的拆分和整合,我们开辟出宽敞的客餐厅与卫生间区域,并设计L形卡座,取代大部分家具,营造下沉式格局局,释放出小公寓的空间感,屋主夫妻可以在客厅从容自在的交流与活动。
在有限的空间里,通过征用客厅、过道的墙面,打造可储物的地台床与卡座等多种手段,小家建立起强大的收纳体系。全屋采用无主灯照明、丰富的光源结合天花板造型,营造出自然然舒适的氛围,原本略显破旧的小公寓,变得充满家的温度,屋主的身心都得到治愈与放松。
屋主夫妻对客厅的定位是承担起一切的日常主要活动,他们希望这个空间足够开阔明亮,两人可以自由交流亲近,看书、喝茶这样的休闲小爱好,也能得到一一的满足,客厅不再是单纯的功能区,也是屋主的情感的寄托场所。
我们以去客厅化的手法为切入,整合出一个开放互动的无边界空间,让屋主的身心都得到放松与慰藉。
得益于大落地窗的优良采光,进入客厅,视觉明亮清爽。素净的墙地面和地砖配合默契,客厅由内至外,都散发着简约的调性。#客厅 #落地窗 #地砖
公寓客厅的层高只有2.66米,而屋主又不希望天花板过于单调,我们设计轻薄的局部吊顶,并包裹以肌理感的艺术漆,营造出分明的层次感,又不损客厅的开阔。线性灯带、壁灯和筒灯等多种光源,以点、线、面结合的方式,分区布光,客厅的氛围被渲染得极为温暖舒适。#客厅 #无主灯 #吊顶
客厅设计围合的L形卡座,串联起餐厅功能区,公共区最大利用与融合,尺寸绰约的卡座,将沙发、餐椅等家具的功能合并,客厅的空间得以充分释放。卡座与地面的高低差,也营造出下沉式的空间构造,弱化了小公寓层高低矮所产生的局促感。#卡座 #下沉式客厅 #客厅布局
电视背景墙也被征用作为收纳空间,顶天立地柜安装带有竖条纹的柜门,近似护墙板的质感,将柜子的存在感降至最低,整柜内部做了区域的划分,有收纳清洁工具的家政柜,也有屋主最爱的书架。
依托局部的吊顶设计,投影幕布完美隐形嵌入,一部好电影,足以成为枯燥生活里最好的调味剂。#电视背景墙 #客厅 #投影
轻巧的移动可折叠餐桌,让用餐变得更加灵活,平时它也可以作为客厅的置物台面使用。藤编艺术吊灯的加入,则让这个小天地,更具魅力与仪式感。#餐厅 #折叠餐桌 #吊灯
一字型的开放式厨房,按照洗、切、煮的环节,从左向右依次展开布局,橱柜与台面保持相同色调,厨房空间虽小,却难掩简洁干练的气场。操作台对面,从过道挤出了一列家电柜,作为厨房功能的补充,各种小家电得到妥善归置,也是屋主最爱的冲饮水吧区。#厨房 #一字型厨房 #橱柜
经过的空间拆合,小公寓形成一条畅通笔直的走道,我们以光为线索,利用几何线性灯实现空间的引导和串联,让原本狭长的走道,变得曼妙生动起来。#走道 #线性灯
小户型的每一寸空间都显得弥足珍贵,我们将冰箱、洗烘一体机,嵌入过道的高柜中,无论是洗衣、还是下厨,家居动线均为最优。#冰箱 #洗衣机
落地玻璃墙配合玻璃移门,将卧室塑造成一个半玻璃盒子,可以共享自客厅、过道多面的采光,显得异常通透。卧室地台床与客餐厅的卡座,保持在同一高度,小家呈现出一种整体交互的状态。#卧室 #地台床#衣柜
卧室地台床设计为翻盖的箱体结构,联合整墙衣柜和床头薄柜,让这个小空间蕴含强大的收纳力。#主卧 #地台 #衣柜
重整后的卫生间,淋浴房,独立设计,布局干湿分离,横向布置的台盆区与洗浴柜柜相连,墙排的水龙头、悬浮浴室柜和镜柜,令干区清爽大方。#卫生间 #干湿分离 #收纳柜
洗浴柜藏露结合,靠近壁挂马桶的开放格中,预留有插座,方便手机充电。#收纳 #壁挂马桶 #插座
客服
消息
收藏
下载
最近


















