查看完整案例


收藏

下载
案例简介 Case description
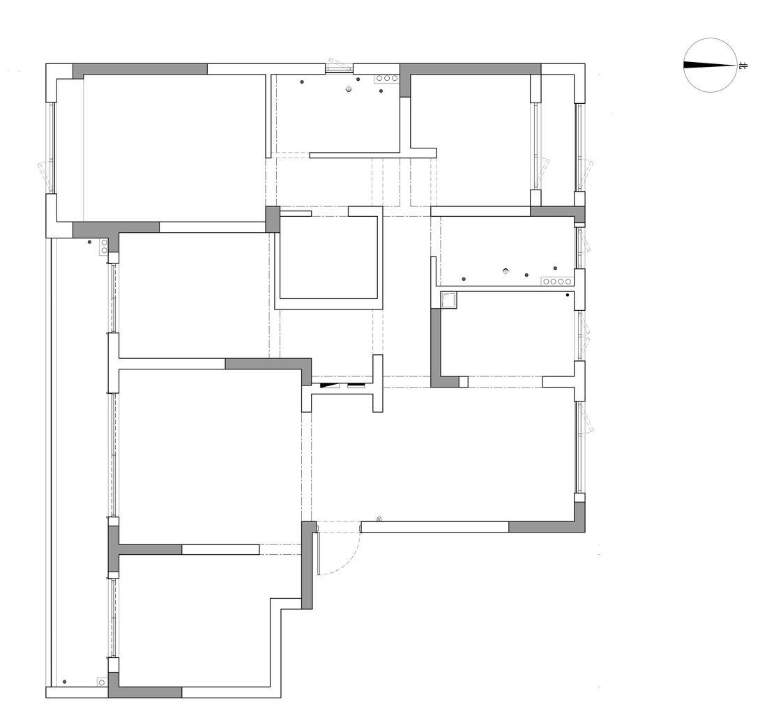
本案是一个有着自己态度的空间,它既是纯粹的又是复合的,是极简的又是柔和的,它有着空间的节制,有着区域的情调,是一个情绪丰富的,多层次感受的家居空间;看平面图你就便知道这个家定是有趣的,不同于常见到的格局划分,我们将一间卧室开放出来,改变整个空间状态,它有着家居主人独有的特色与品味。当然,这个家的精彩之处可不止于平面上的巧思哦,继续往下看吧。
目前是两人居住,将原本的四室两厅改成现在的三室两厅,不过分追求卧室的数量而导致实际使用率的下降,从他们的实际生活需求出发,将中间的这个卧室拆掉,作为公共空间的一部分,整个家呢会更通透,卧室的门以及动线也随之调整,呈现一个更有趣、更居家的空间布局。
从客厅看往书房视角;中间拆掉的卧室变为公共空间的一部分——开放式书房,书房和客厅的隔墙我们拆掉了将近2/3,右侧保留的这一部分是承重墙不可动,也恰好成为了沙发背景的一部分,有去有留,立面背景的错落更有故事感。也满足了业主对于空间通透感的需求。
拆掉的这部分墙体,我们做了一个比沙发稍高的隔断,一是让沙发有背景可依靠,二呢也是让客厅有它自身的边界感、完整度。
整个空间我们是想要打造空间的纯色感,纯色感不是止于一种颜色,而是一种空间氛围,纯粹、节制、舒缓。我们以轻奶色为基底,加入木色搭配,满足业主对于暖度的需求。
除了轻奶色和木色之外,我们还加入了咖色、朱砂色来点缀,丰富空间的色感,运用颜色打造视觉的趣味性。这款几何体块的沙发可以随意组合搭配,依据空间摆放的变化,更具有可调整性。根据客厅的体量我们是添置了四块,三块布质的米灰色,另外一个是选的皮质的咖色,同样的款式不同的材质与颜色,给软装家具少一点拘谨,多一些趣味。这款沙发的颜色与电视背景的木色、沙发背景的红色都有一定的色系进阶呼应。这也是为什么颜色不同但仍然会感受到空间的色彩融合度很好,完全不会跳脱。
从书房看向客厅视角;目前书房还没有放一些书桌等配件,等到业主后期入住,想要什么再慢慢地添置,留一些个人发挥的小空间。书房与客厅的隔断上方留有一个矩形长条的镂空,既在小细节上强化了空间的通透感,也有线条的形式美感。
我们在隔断和承重墙之间留了有10公分左右的距离,没有全部连接将界限感卡死,包括隔断上方的镂空处理,空间上的“留白”是在细节上加持我们想要的通透感。不仅是在大的体块之间、这小的结构连接上也把握好它们的尺度,这是我们想要表达的:通透感的表现并不只是大体量改造,它也有着处处照顾的小细节。
次卧的入口邻着电视背景,用隐形门的方式让客厅显得更为完整。看平面可以知道,我们为了让客厅电视背景墙的立面在公共空间的大立面中显得更为和谐,将电视背景墙通过做柜体的方式,让立面前移和整个面在同一水平上。
电视背景我们还是以实用+造型的思路来做的,用作收纳的柜体加上内凹的形式来做一个独有的背景造型。电视背景的立面包括柜体、门、墙面做的一体木饰造型,整个立面更纯粹。
餐厅践行极简,一张实木餐桌,两把单椅、两盏吊灯,将这个空间的必备物质呈现。相信这个空间第一眼吸引到你的肯定是餐椅。被称为“美人椅”的Patnon Chair来自于瑞士品牌VITRA,一体成型的结构,优雅的线条与极具表现力的形式,像是长裙曳地的少女,造型典雅,打造空间氛围的绝妙利器。
除了餐椅之外,餐厅最让人注目的便是餐厅墙上的两幅小挂画,有着蒙德里安格子画元素的魅力,在这个色彩纯粹的空间里面增加一些视觉挑逗,总是能被家居中这些用心的小小饰品给戳到~~
将原来的厨房变成现在的半开放式,敲掉厨房右边的隔墙增加餐厨两者的联系,增强空间通透感,可不只是如此,在此基础之上,我们将靠窗靠墙的厨房柜体从厨房一直延伸到餐厅直到连接餐边柜为止,将一些厨房电器内嵌进去之后,还有很多的收纳空间,当然最明显的便是拥有了一个超大的操作台面。每一个重度厨房使用者都知道,菜品多的时候,操作台面真的会不够用啊,这个厨房的改造真的很nice!
在橱柜连接餐边柜的位置,我们在墙面做了一个木色的洞洞板,可以自己调节位置做收纳放一些厨房小物品,即便这块不用,当做装饰也是很好看的,推荐~
因为餐厅的体量还可以,在餐厅的一侧我们还做了一面餐边柜强化收纳,无论是用作厨房收纳的补充还是公共空间的收纳都可。
卧室走廊看向入户玄关角度;由于我们将中间的卧室改成书房,主卧和次卧的入口都随之调整,伴随着的是整个空间细节、尺寸的调整,尽可能地将空间极致地利用起来,将舒适度和实用度最大化地落地。玄关重塑、衣帽间和主卫向主卧内推几十公分,客卫将盥洗池挪出来做干湿分离,次卧入口和盥洗池入口动线统一,次卧有了可以增加衣柜的空间满足收纳。在此基础上通往卧室的走廊宽度得到了扩大,所以我们有了足够的宽度在走廊的这一侧做了一排柜子,这下子家里的收纳真的是完全满足。每个空间都做了细微的调整,来优化生活中的点点细节,尽可能让每平方都物尽其用。
来自于Meow Bloom的狗狗椅,光是它的造型就已经令人折服了,但它的坐感同样很令人惊喜,想买一把造型独特且有生命力的单椅,可以考虑一下它。
在这个家里面有着情绪的共鸣与探索,务实的生活规划,是居者精神与生理的理想居所。
主卧门位置改到从书房进入,卧室门改为双开门增加仪式感。在客厅可以直接看主卧门所在的这面墙,对主卧门做隐框门处理,整面墙看着更完整纯粹,对公共空间展示的效果也更好。隐框门简而言之就是看不见门但是看得见门把手,隐框门相对于隐形门来说,一是可以从外面上锁,二呢从清洁角度来说,通过把手开门而不用手直接接触,门不会因为用手多次直接接触易脏。
主卧我们以米色的艺术涂料处理墙面,将顶部风口做曲面处理与吊顶相融合,弱化功能设备的存在感,重视空间的整体美感。
卫生间和主卧门相似,也是采用的双开门,铁艺门框+小灯芯玻璃,尽可能地增强主卫的透光性,通透感。
卫生间各个位置无论何种材质,基本都是以米色为主,色调和谐一致,看着更宽敞、干净。
次卧床头画和餐厅挂画相呼应。
客服
消息
收藏
下载
最近






























