查看完整案例


收藏

下载

附件

翻译
Architect:MATÚ Arquitetura
Location:Vila Buarque, São Paulo - State of São Paulo, Brazil; | ;
Project Year:2018
Category:Offices
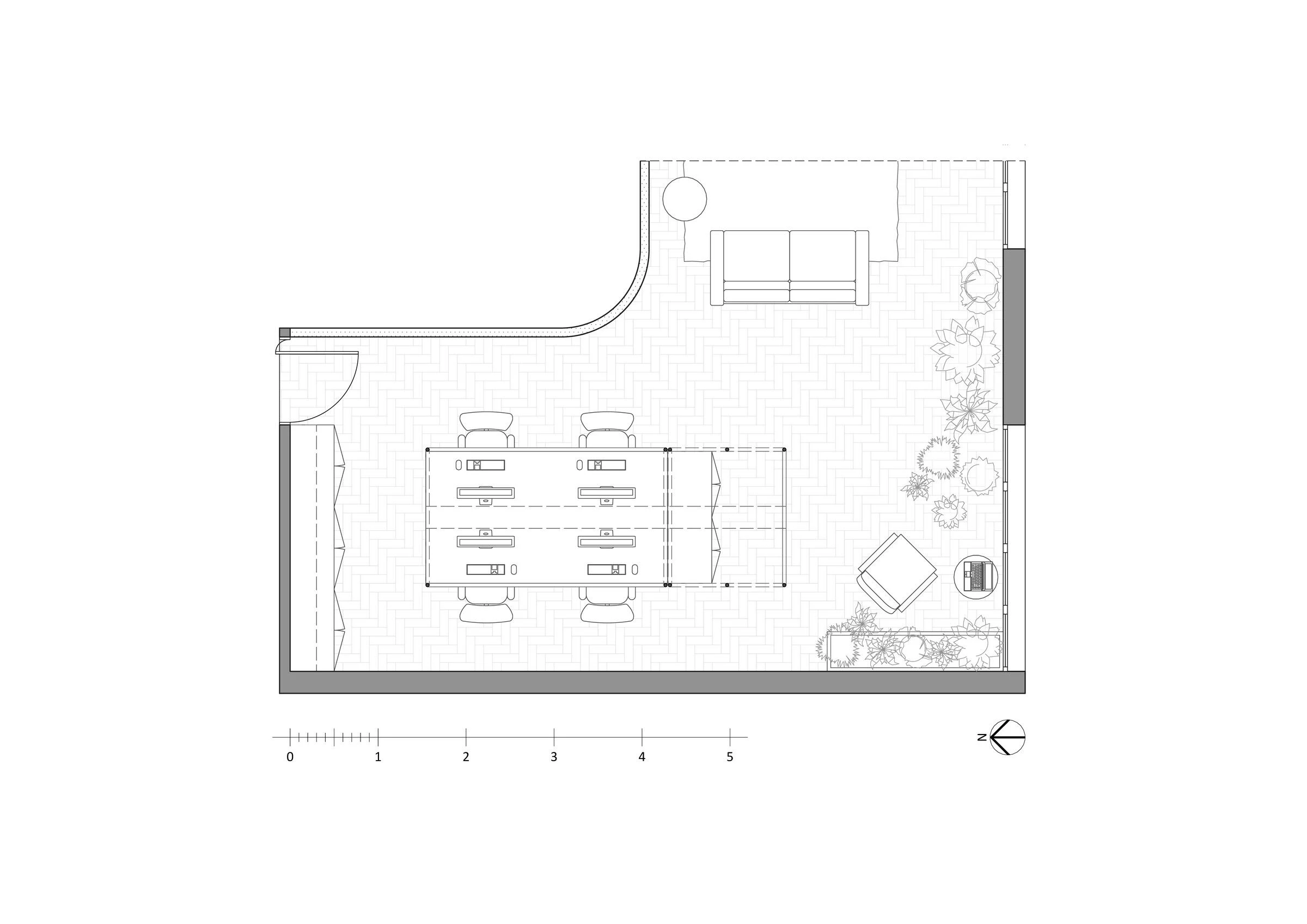
Pantera Filmes is a film production company located in São Paulo. When they change address, they looked for Matú Arquitetura for a functional project that would solve the working space and the storage of the filming gear. Facing with this request, Matú explored creative ideas to concentrate workstation and gear storage through a single piece designed by themselves. Scaffold as a modular structure, with an urban and ephemeral character, articulates strength and varied possibilities of using it, which is why it was chosen as the main element of the design.
The structure is strong and equally light, allowing natural light that favors the entire ambient. It also allows the modulation of uses, such as workstation, support for hooks and hammock and a corner reserved for relaxed meetings and breaks. The blackwood-clad is a backdrop for decorative objects such as old camcorders, pictures and favorite books, in addition to contrasting with purple, highlighting the company's colors. The presence of plants is essential to finalize the customer's order in its entirety. Besides being a personal hobbie, the wild aesthetic could not be lacking in the striking identity of this studio. Amid the vegetation planted in different pots, furniture was proposed as loose items subject to change as needed.
Architects: Matú Arquitetura
Lead Architects: Gabrieli Azevedo, Fernanda Lins, Bruna Marchiori, Ana Pernambuco
Photographer: Cris Farhat
1. Traccia Mobile
2. Traccia Mobile
3. Cremme
4. Plume
5. Jardim do Centro
▼项目更多图片
客服
消息
收藏
下载
最近























