查看完整案例


收藏

下载

翻译
Location:Trang An Complex Ha Noi; | ;
Project Year:2018
Category:Offices;Showrooms
Rehau - Unlimited Polymer Solutions
Expertise and innovative spirit have made REHAU a leading systems and service provider for polymer-based solutions in construction, automotive and industry. The highest levels of professionalism from material development through manufacturing, together with a passion for the unlimited potential of polymers are the foundation of our worldwide success as a premium brand.
On 2018, Rehau Asia set up the showroom & office at Hanoi Capital.
Location: Trang An Complex – Ground floor showroom and Mezzanine floor for office
Area: 1000 m2
Designed & Built by VietDECOR
Layout was planned efficient showflow, spatial connectivity and maximized natural lighting, with a focus on creating space by space to show many Rehau’s product range as Furniture solutions, Surface solution, Sound proof door & window and Plumbing & drainage.
Each space or corner designer has arranged organize layout with difference purpose of product show, we created the area like a real some housing with Living room, Kitchen & Dinning, Bedroom with sound test window, demo rest room with fully sanitary ware to show the acrylic stone surface solution.
Furnished with cosy seating area even a bar-height communal table, the flexible multi space functions for event launched with real kitchen counter for Chef perform their talent.
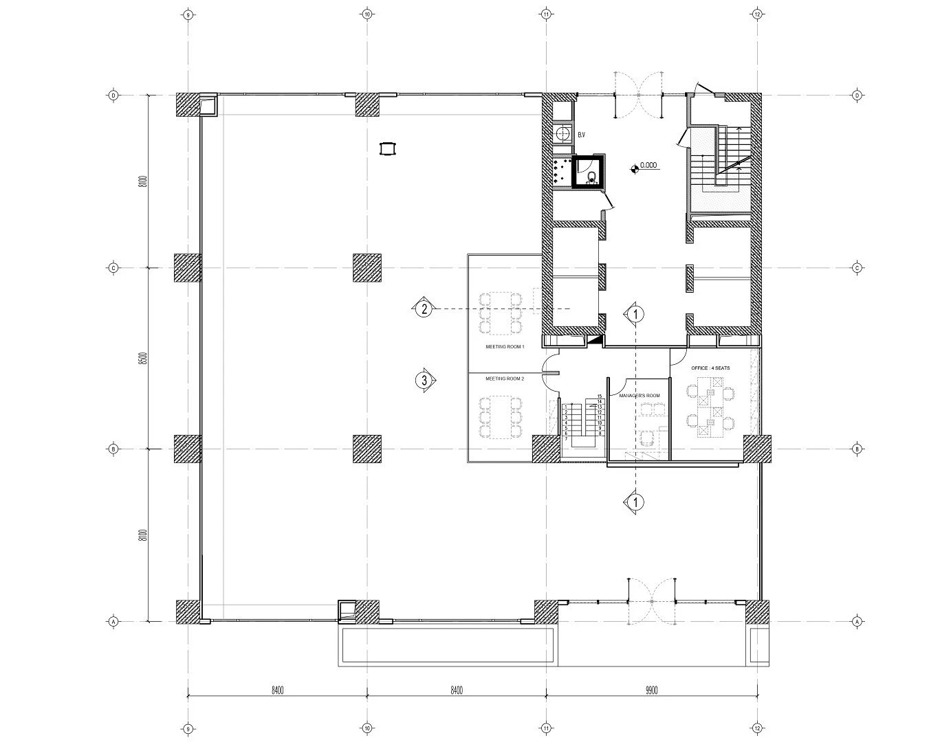
Due to high ceiling, we created the mezzanine floor for office purpose with full cover glass view to the open showroom in the ground floor.
Materials proposal for showroom almost local materials of Viet nam.
▼项目更多图片
客服
消息
收藏
下载
最近





















