查看完整案例


收藏

下载

翻译
Architect:FPA Felipe Pacheco Arquitetos
Location:Porto Alegre, RS, Brazil; | ;
Project Year:2016
Category:Offices
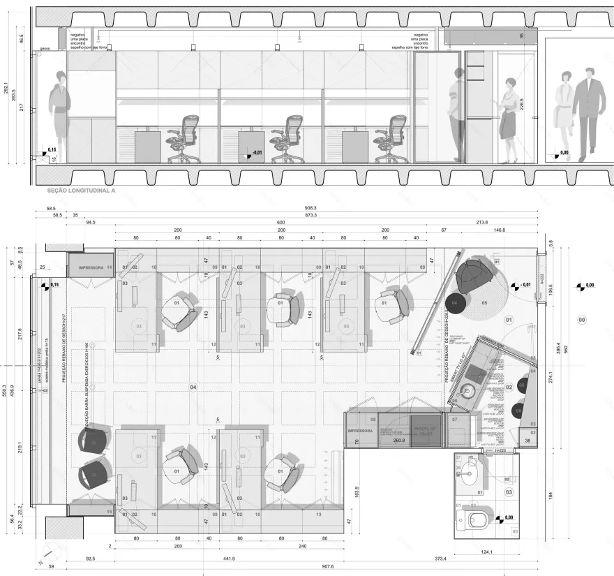
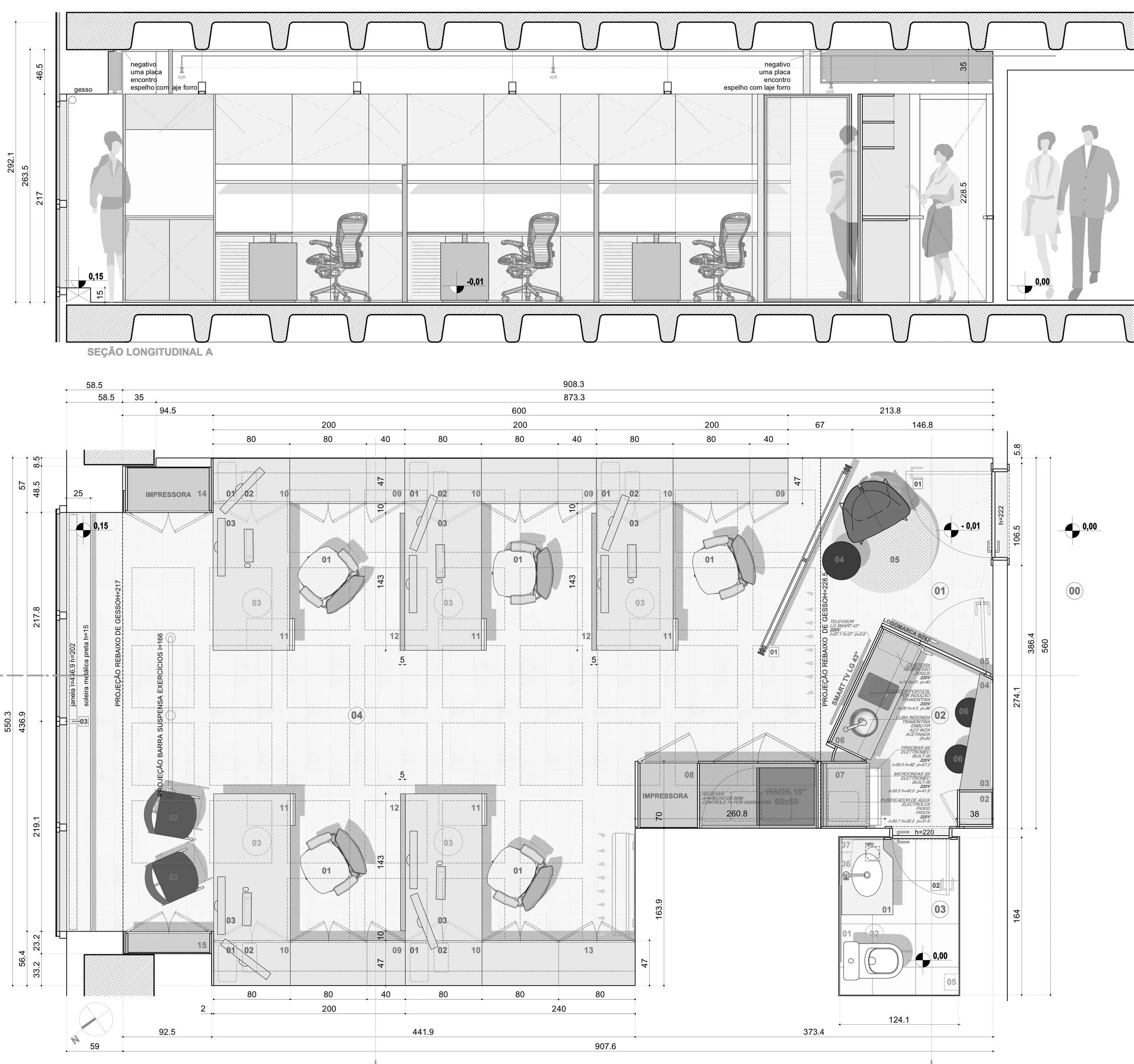
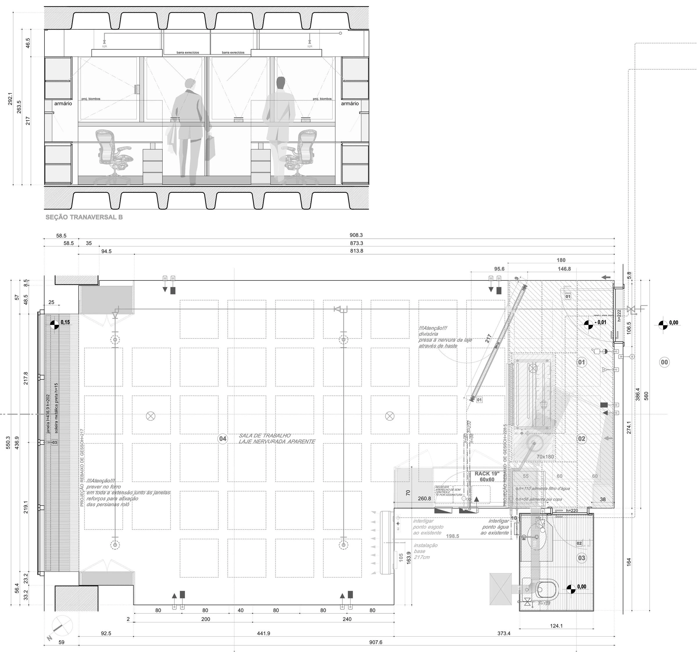
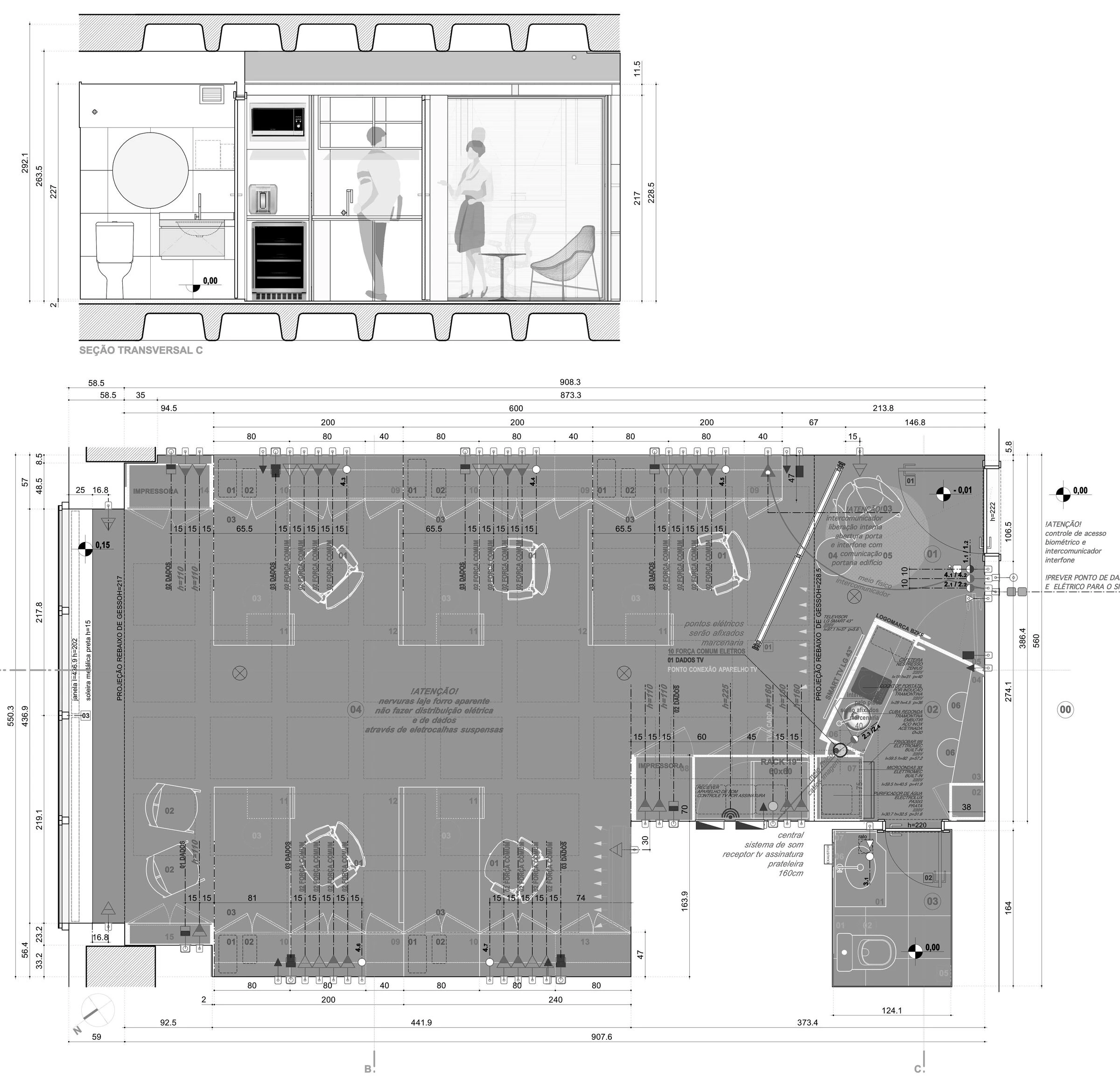
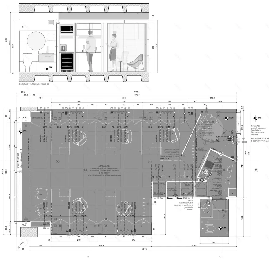
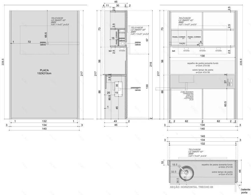
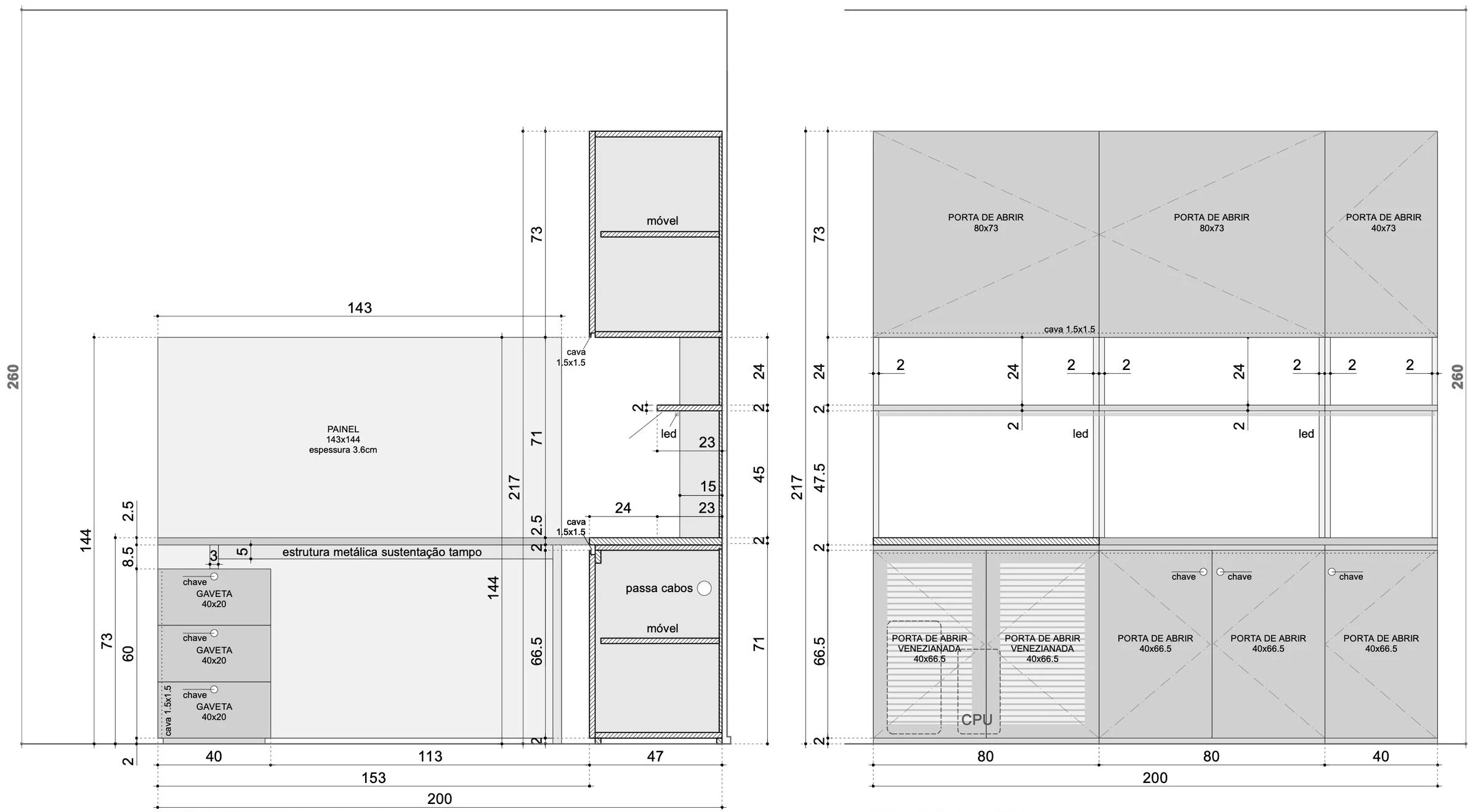
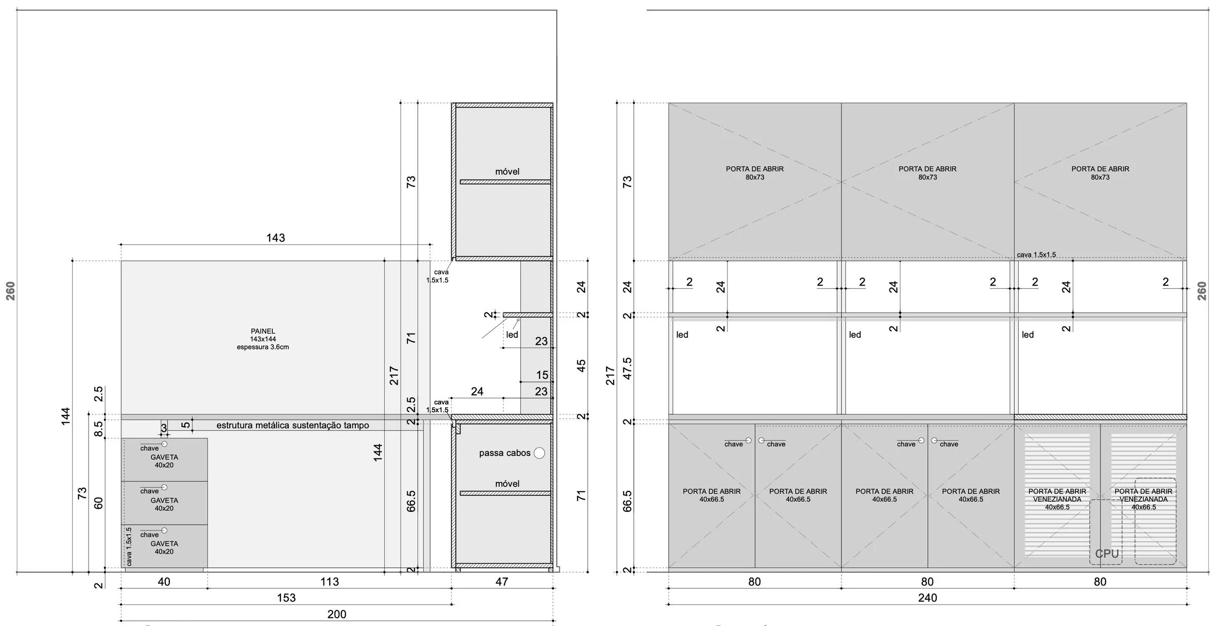
This is a 50 Sqm office occupying a single office space, originally formed by two rectangles. The only access is located on one of the transversal sides, while the other comprises the external façade, being almost entirely covered by glass windows. Longitudinal sides are opaque and make borders with neighbor offices. The space gives place to an accounting expert service company. Given the reduced area and the necessary five workplaces – manager plus four standard workplaces –, also a reception, kitchen and one toilet, an open office strategy was adopted. This enhances the internal space perception and provides functional freedom. In addition to that, the existent ribbed slab is left apparent to amplify the internal volume. Exclusively the rectangle containing entrance and kitchen has a lower internal height, following Frank Lloyd Wright's strategy to compress the user in the entrance to decompress him once in the main space. Also this lowered ceiling section provides space for the main air conditioning system, which is a large built-in evaporator unit. The five workstations are custom made designed, accordingly to a 40cm and multiples modulation. Vertical plans form workplaces and provide some visual privacy. Both longitudinal sides are covered with custom made archives and surfaces, also custom made, merging on the workstations following the same 40cm modulation. Print area and CPD are designed accordingly to the same rule, and the same applies to the space comprising the kitchen, which precedes the entrance to the toilet. The entrance hall, on the other hand, is formed by a double-glazed partition that is delicately and obliquely anchored on the ceiling and on the floor. The office results as wide and enlightened as possible in the space limitations, being composed by simple and timeless forms to provide its users the best working conditions.
Completion Year: 2016
Gross Built Area: 50.00 Sqm
Project location: Porto Alegre, Brazil
- Lead Architects (architecture planning and build out management): Felipe Pacheco e Juliano Dors
- Photo credits: Eduardo Liotti
- Renders: Lucas Silva
- Electrical and data cabling: Proinst
- Hydraulic installations: Proinst/Asolon
- Fire prevention: Proinst
- Air conditioning: Neoclima / Air Studio
- Sound and image system: Ária HT
- Civil construction: Obra Pronta
- Custom made furniture: Aumar Móveis
- Silestone and natural stones: MMG Granitos
- Lighting: Vértice Iluminação
- Roller blinds: Uniflex
- Chairs: Tradesign
- Glass partitions: Tradesign
- Carpet tile flooring: Tradesign
▼项目更多图片
客服
消息
收藏
下载
最近






























