查看完整案例


收藏

下载

翻译
Architects:GLA Design
Area :36416 m²
Year :2022
Photographs :Li Yao
City : Hang Zhou
Country : China
Deep Blue, as a new incubator office building, is located in the Zijingang Science and Technology City of Hangzhou Chengxi Sci-tech Innovation Corridor. The designer takes the user needs as the driving force, combines the site environment, and sends invitations to people with the minimalist space design language: this is not only a pure office space but also an open, inclusive and diversified cultural place, which bears multiple possibilities such as social interaction, entertainment, life, and learning.
CREATE "X" - The project site is relatively square, with a quiet river on the west side and office buildings of different types and heights on three sides. As a secondary commissioned design, the overall land use is relatively tight, and the building density is not allowed to break through the original scheme. While fully considering the design vision of balancing the spatial and psychological needs of incubator office buildings, the method of combining independent office space with the shared open area is adopted. The independent office space is outward to ensure certain privacy; the shared open area is inward to form a space more conducive to communication and sharing. To make the best use of natural lighting, ventilation, and landscape greening, after analyzing the urban space and the streamlining of the site, the architectural form is cut three times diagonally according to the diagonal of the square (northeast-southwest): the oblique section of the main entrance at the northeast corner, the oblique section of the upper set-back terrace at the southwest, and the oblique section of the gray space that runs through the internal atrium and river landscape at the lower layer. The pure geometric cutting enables the building to better integrate with the whole city interface, while the X-shaped converging facade maintains the independent character of the new office building.
Sustainability Strategy - The designer carefully observed the sunshine of the site in different periods in the early investigation, and also took into account the dominant wind direction of the monsoon in summer and winter in Hangzhou. In terms of environmental sustainability, the upper and lower sets of openings at the southwest corner significantly enhanced the natural ventilation effect of the inner courtyard of the building, which improves comfort while ensuring energy conservation and environmental protection. The river landscape is introduced into the atrium, set-back terrace, and interiors along the small square landscape, which visually connects the space inside the building with the surrounding nature, thus forming a three-dimensional landscape of “riverside green valley - ground green belt - central courtyard - landscape terrace”. In addition, the entrance forecourt obtained by inclined cutting at the northeast not only increases the space for friendly communication for the park interface but also invites and guides people to enter the indoor shared space. The visible atrium water system and the river landscape not far away, as well as the charming light and shadow, crowded figures break the boundary between architecture, nature, and the city. Spatial sharing is the original intention of the social sustainability strategy.
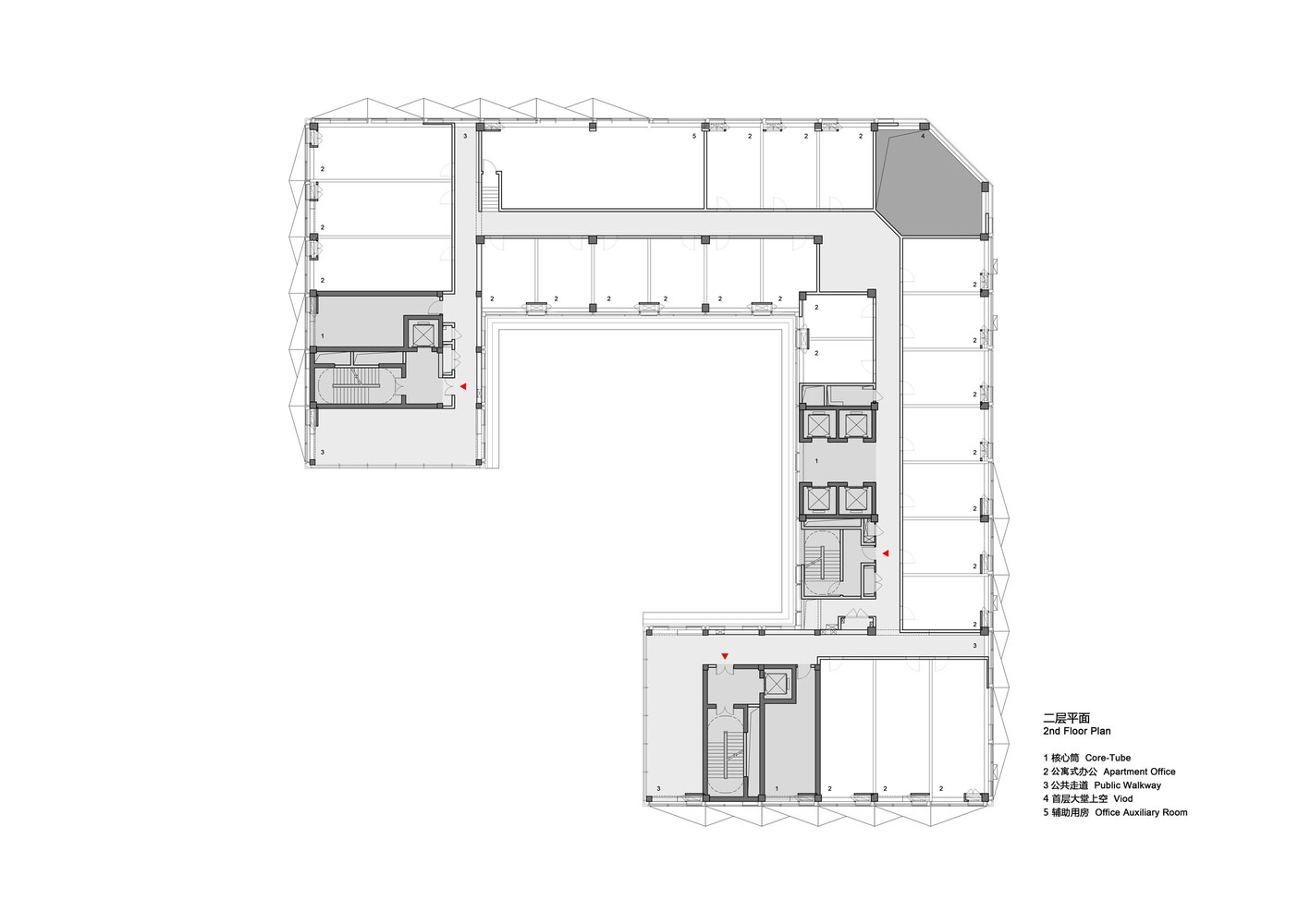
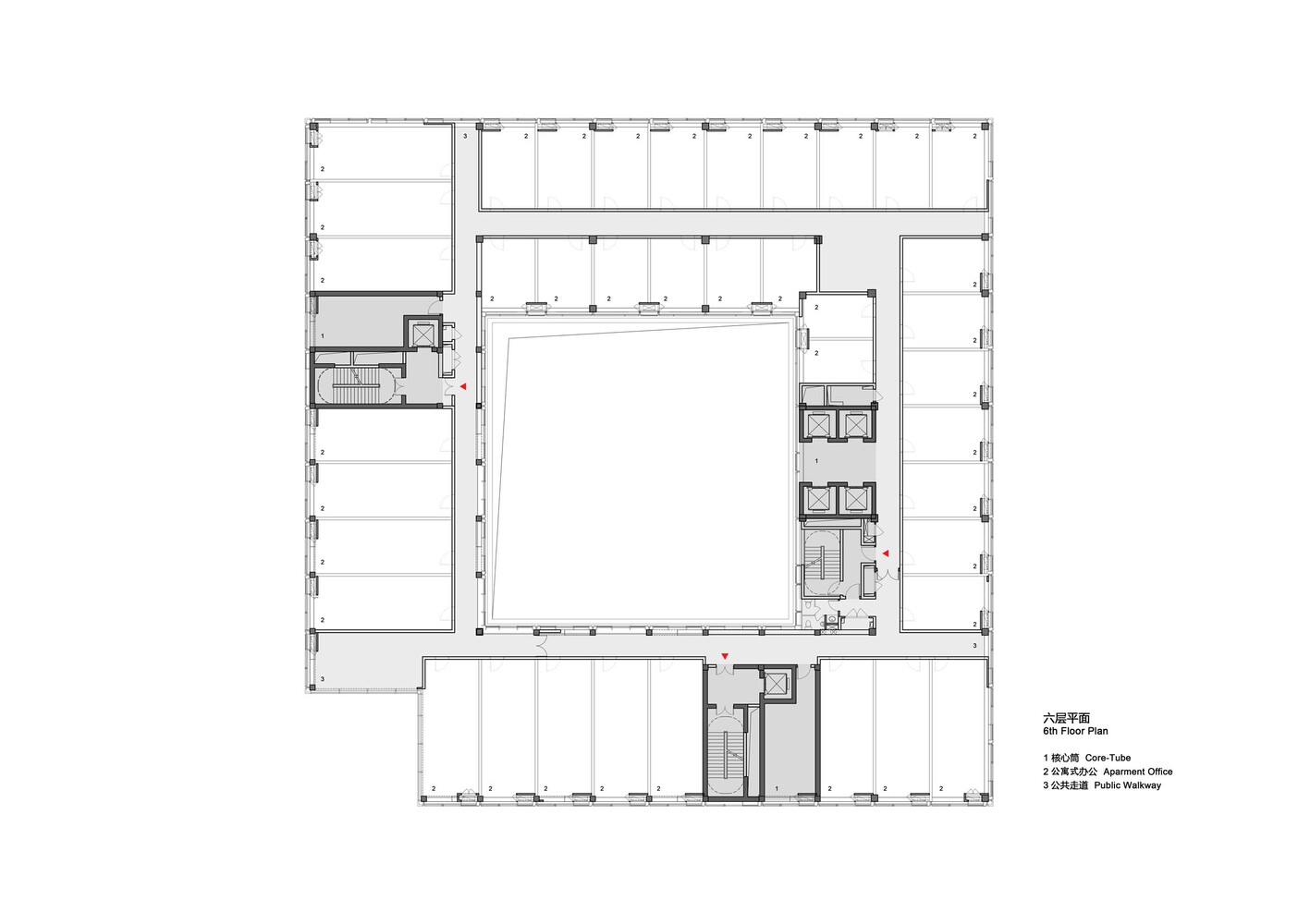
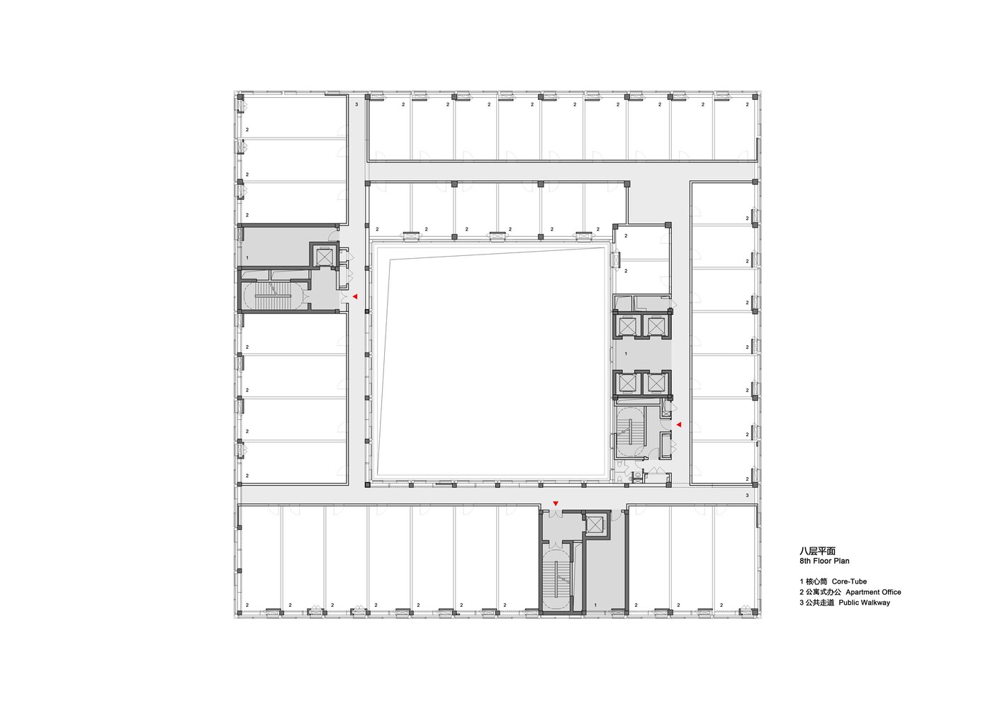
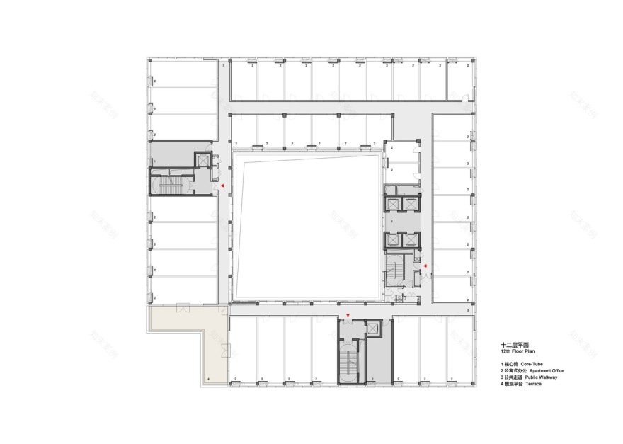
Modular System - The office unit is designed into three kinds of office modules, which have a uniform 4.2m face width, 4.75m floor height, and different depths. The 4.75m floor height of each office module provides customers with the possibility of more internal variable space. These office modules are combined by unilateral walkways or inner walkways, conforming to the X shape and combining with the air-conditioning position. The diagonal curtain wall unit and orthogonal curtain wall unit are adopted in the design, to create a unique and clean facade.
Art of overhanging - To realize the X-shaped building form effect, the structure has the challenge of a huge cantilever of 29.4m: A number of seismic overruns belong to special irregular structures. After many discussions, the design team adopted a hybrid structural system of steel frame+center support-steel plate composite shear wall/steel reinforced concrete shear wall, and the steel truss with diagonal bracing was employed for the cantilever part, finally realizing the envisaged architectural form. For environmental protection and cost consideration, in the structural design of the secondary commission, while ensuring safety, the original pile foundation should be used rationally as far as possible, and the original basement floor structure should be utilized after demolition.
Material Selection - The selection of materials is the key to the perfect presentation of the overall architectural effect. Anodizing process is adopted for the aluminum plate, which is combined with three-layer hollow Low-E ultra-white glass to provide efficient thermal insulation and energy-saving functions for the building. The facade is simple and unified, offering a transparent and effective connection between indoor and outdoor spaces.
Epilogue - Deep Blue is an interesting building that incorporates the designer’s reflections on the site, spatial acuity, design ingenuity, construction control, etc. A building is placed in Hangzhou to explore the possibility of new incubator office buildings.
▼项目更多图片
客服
消息
收藏
下载
最近




































