查看完整案例


收藏

下载

翻译
Architect:Valle Architetti Associati
Location:Rome, Italy
Project Year:2011
Category:Offices;Shopping Centres
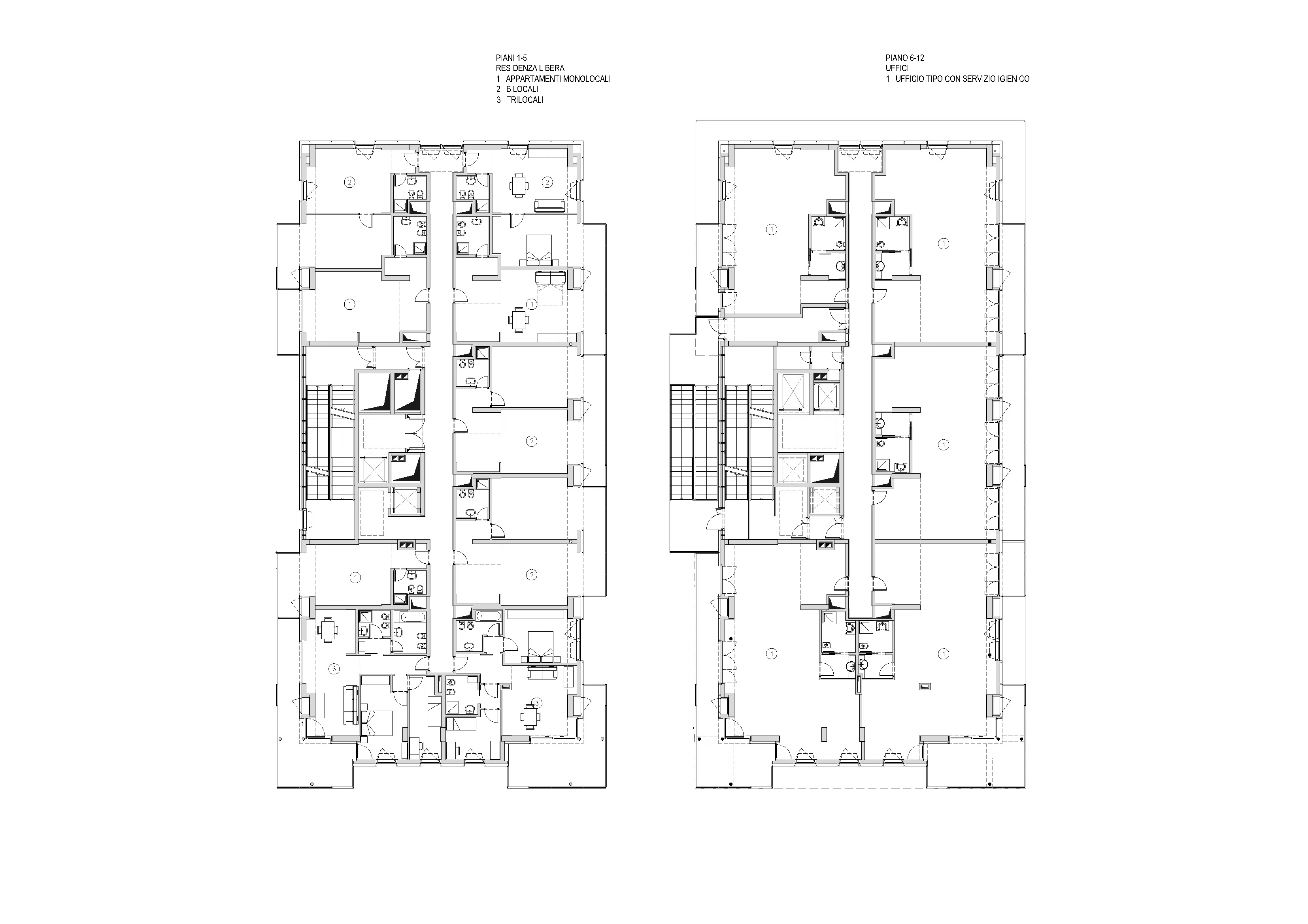
The B1 tower offers small apartments and offices serving the Porta di Roma shopping center. A flexible modular typical floor plan can offer hotel like single rooms (1 module), small apartments ( 2 modules) or office units (3 modules). All units have a generous exterior loggia that enlarges the interior spaces.
The exterior is clad in aluminum, has microforated screen loggias grouped in textured patterns and a full photovoltaic façade towards the shopping center.
▼项目更多图片
客服
消息
收藏
下载
最近





















