查看完整案例


收藏

下载

翻译
Location:Concepción Beistegui, Del Valle. Mexico City, Mexico; | ;
Project Year:2015
Category:Offices
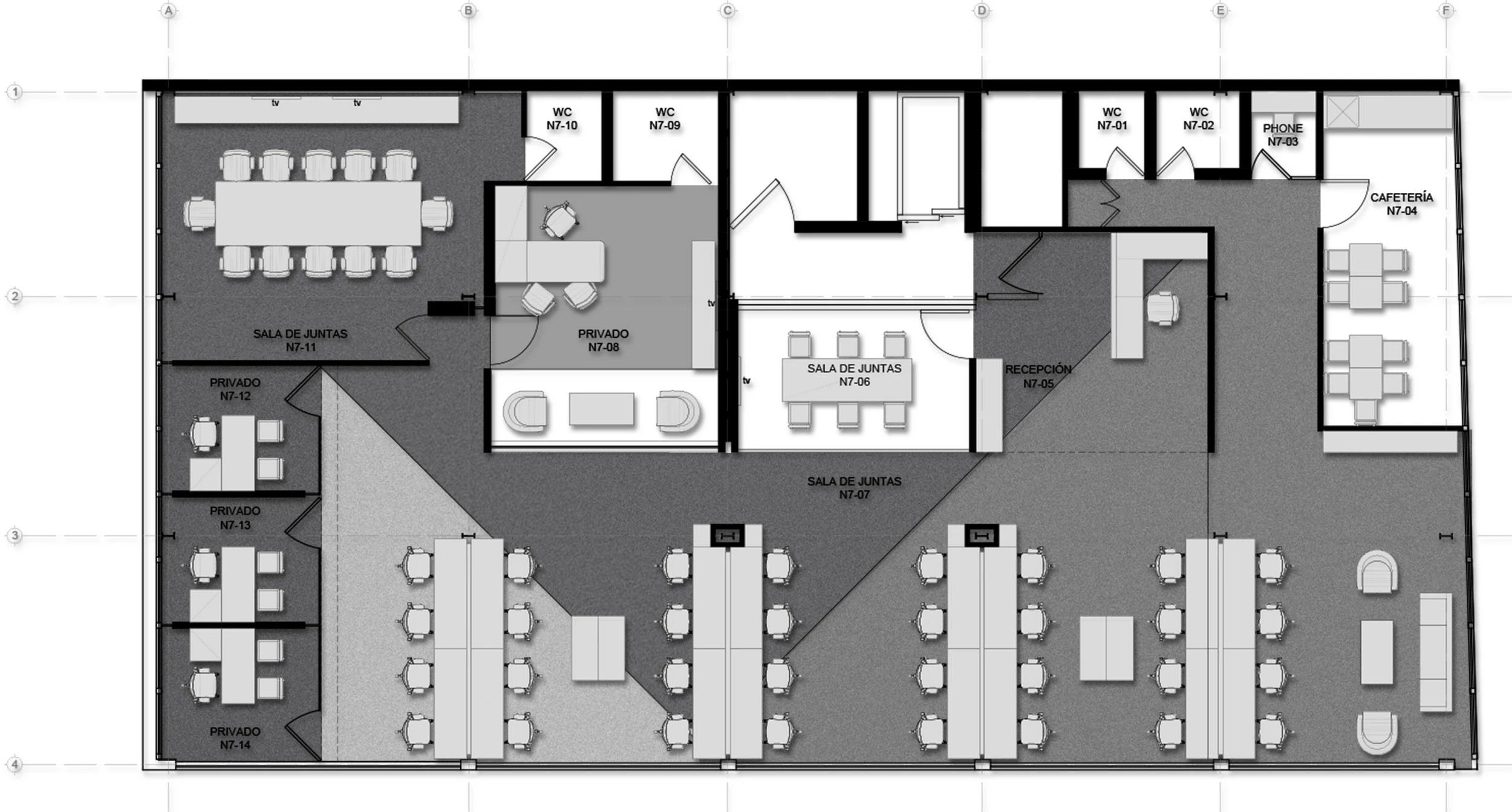
BLU is an Integrated Logistic Solutions company, connecting the dots within the supply chain. Their new working space comprised of 300 m2, was designed based on visual elements from the shipping industry. The color combination was chosen after the common pallet racks found at warehouses.
The architectural program incorporates connected spaces such as lobby, open desk areas, executive private rooms, dining room, IDF, and a central informal meeting niche that gives full access through a folding door system resembling a shipping container.
The project also includes customized furniture, lighting fixtures and signage named after their main office locations.
▼项目更多图片
客服
消息
收藏
下载
最近














