查看完整案例


收藏

下载

翻译
Architect:Fabrica 718
Location:New York, United States
Category:Offices
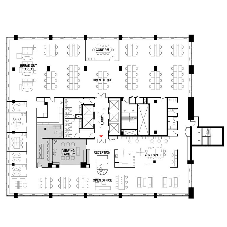
This project is located on the 19th floor of a midtown 1959 modernist building. It includes the full renovation of 15,000sf for offices for a branding research and communication office. 711 Third Avenue, 19th Floor, Midtown, NYC / 15,000sf
The objectives for this young research communication agency moving from Soho, NYC was to create an identity for their new midtown offices. We demolished existing perimeter offices, wood paneling, soffits and finishes and created an open, clean work plan with meeting and breakout areas, a viewing facility, conference room, and flexible event space. The space needed to be conducive to idea sessions and also hosting clients and viewing facility users.
The use of graphic custom-designed light fixtures at the low ceiling level creates a visual landscape in what would otherwise be a field of monotonous acoustic tile. Also custom graphic walls inspire and invigorate the space. The graphic design depicts the networking of the internet and speaks abstractly to the communication and interlinking of ideas, innovation, and global reach of the agency and its clients.
As the project had a tight budget, we experimented with custom designs that could be made locally by fabricators we work with frequently. We developed a colorful coat hook system along a back wall that is practical yet provides a graphic element when empty so is dual-purposed. A custom powder-coated mesh wall in the Event Space allows the staff to use magnets to hang posters, idea sessions and interoffice communication with ease. A favorite local nursery supplied 20 large tropical plants placed throughout the office—to add some nature to the high rise office space.
▼项目更多图片
客服
消息
收藏
下载
最近























