查看完整案例


收藏

下载

翻译
Architect:REIICHI IKEDA DESIGN
Location:1-9-12-1F, Minami-Horie, Nishi-ku, Osaka-city, Japan; | ;
Project Year:2013
Category:Shops
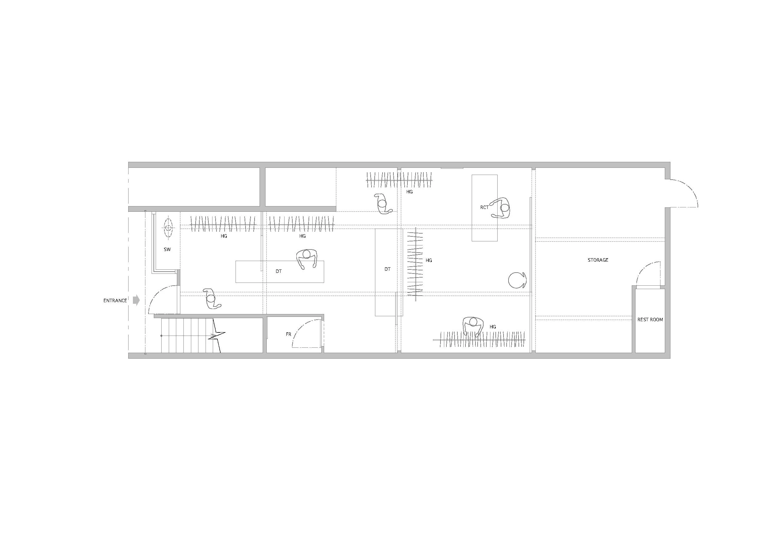
This boutique carries various unique brands in Horie, Osaka. At the first visit to this long narrow site, the trussed ceiling structures caught my eyes in the space which had only white painted walls. The trussed structures showed a presence in the blank environment, and I felt the sight dotted with them was already made up as a good design. I planned my design should be an extension of this existing sight, and worked on it based on the concept of “structures + structures”. I partitioned the boutique with trussed design panels at the same places as where the trussed ceiling structures are on just to link to them. After I made interior constructions linked to the building ones, just the shape of the structures got to handle the general public flow line. I tried transforming the functional part of the building constructions to the design element, and gave dynamic image to the boutique.
▼项目更多图片
客服
消息
收藏
下载
最近

























