查看完整案例


收藏

下载

附件

翻译
Architect:MODO arquitectos associados
Location:Tramagal, Portugal; | ;
Project Year:2013
Category:Shops;Showrooms;Bars
Casal da Coelheira succesfully dedicated more than 50 years to agriculture and wine production. In order to suit the characteristics of the space to the quality of products made, they designed a strategy to refurbish and modernize the exihsting buildings wich includes a new showroom, store and wine lounge.
The intervention deeply value the way of communication between firm, clients and visitors and express the accuracy and high technology envolved in the process of wine making.
In fact, a few years ago the factory and the production process were something the idustrial firms hid from thrid parts. Currently, this areas are very important because they want to show how good they do. The inspiration for this project came with the evolution of perspective about a factory and the way history, tradition, quality, inovation and sophistication can be represented trough a space.
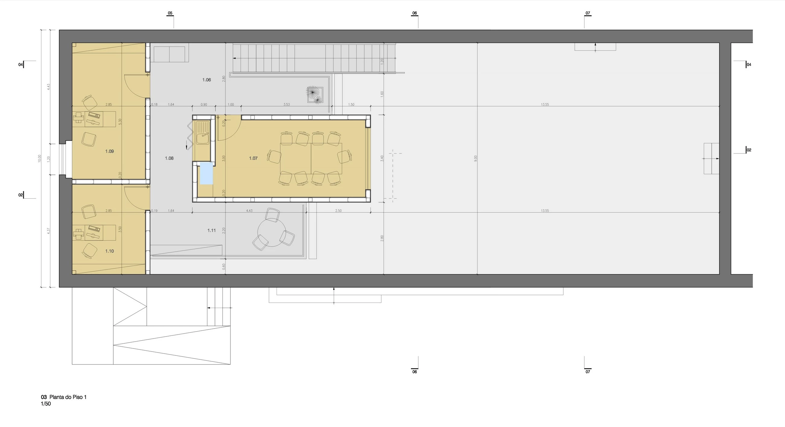
Before the intervention, the left arcade of the existing building was sub used as a car park. Now, this is the main entrance and reception of the firm, with a showroom, store and wine longe, a multifunctional space where new products can be presented and wine tasting events cand be conducted. First floor has a meeting room with a window over the wine lounge.
Finishes and partitions were made with natural materials (stone, wood and metal) that resemble the long tradition of agriculture and viniculture. The building rehabilitation also provides safe and hygenic working spaces, environmentally responsibles. Wordless, Casal da Coelheira can purport their consistency effort to be one of the best wine maker of Ribatejo region.
▼项目更多图片
客服
消息
收藏
下载
最近























