查看完整案例


收藏

下载

翻译
Firm: MMXX architects
Type: Commercial › Office
STATUS: Built
YEAR: 2015
SIZE: 0 sqft - 1000 sqft
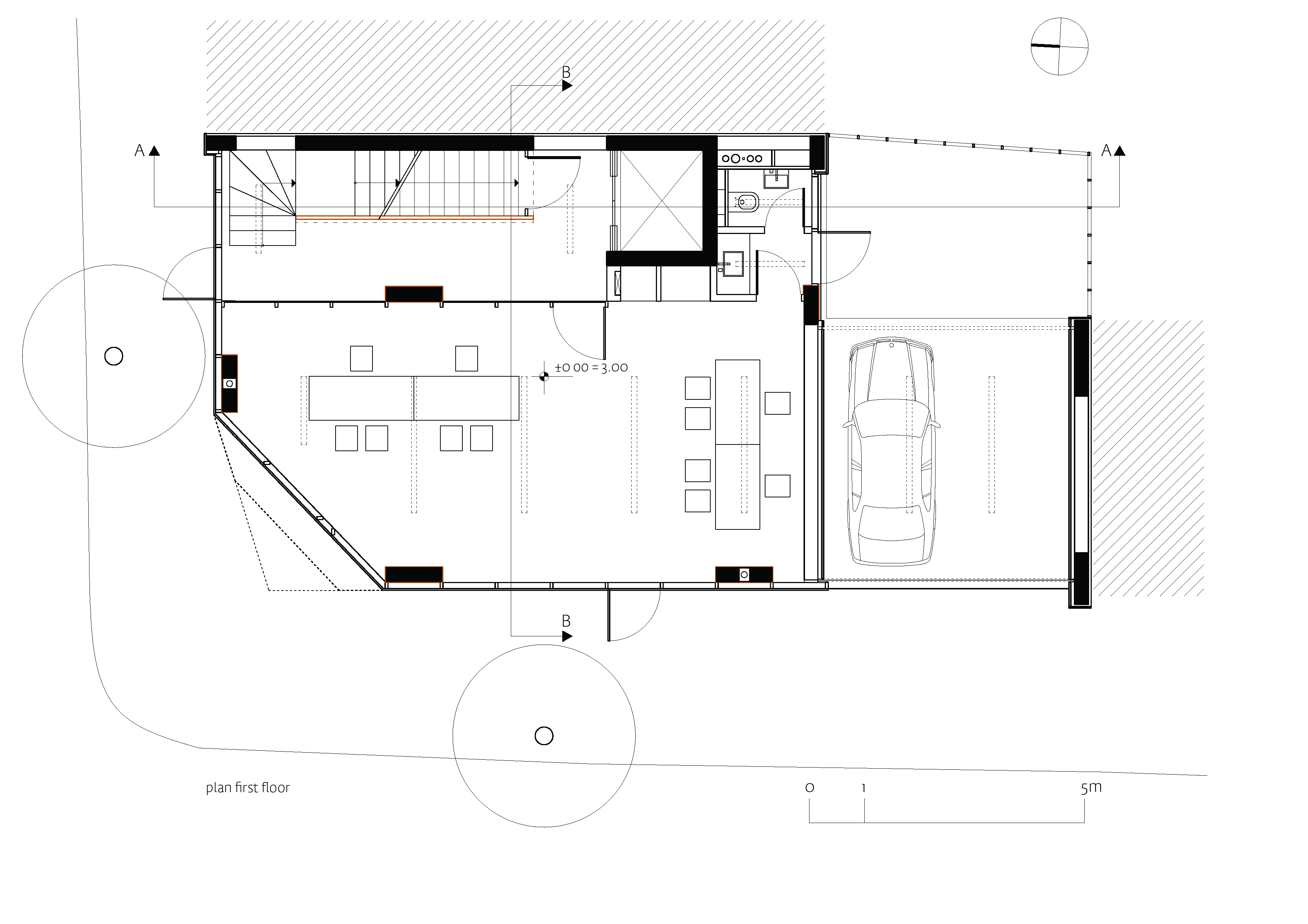
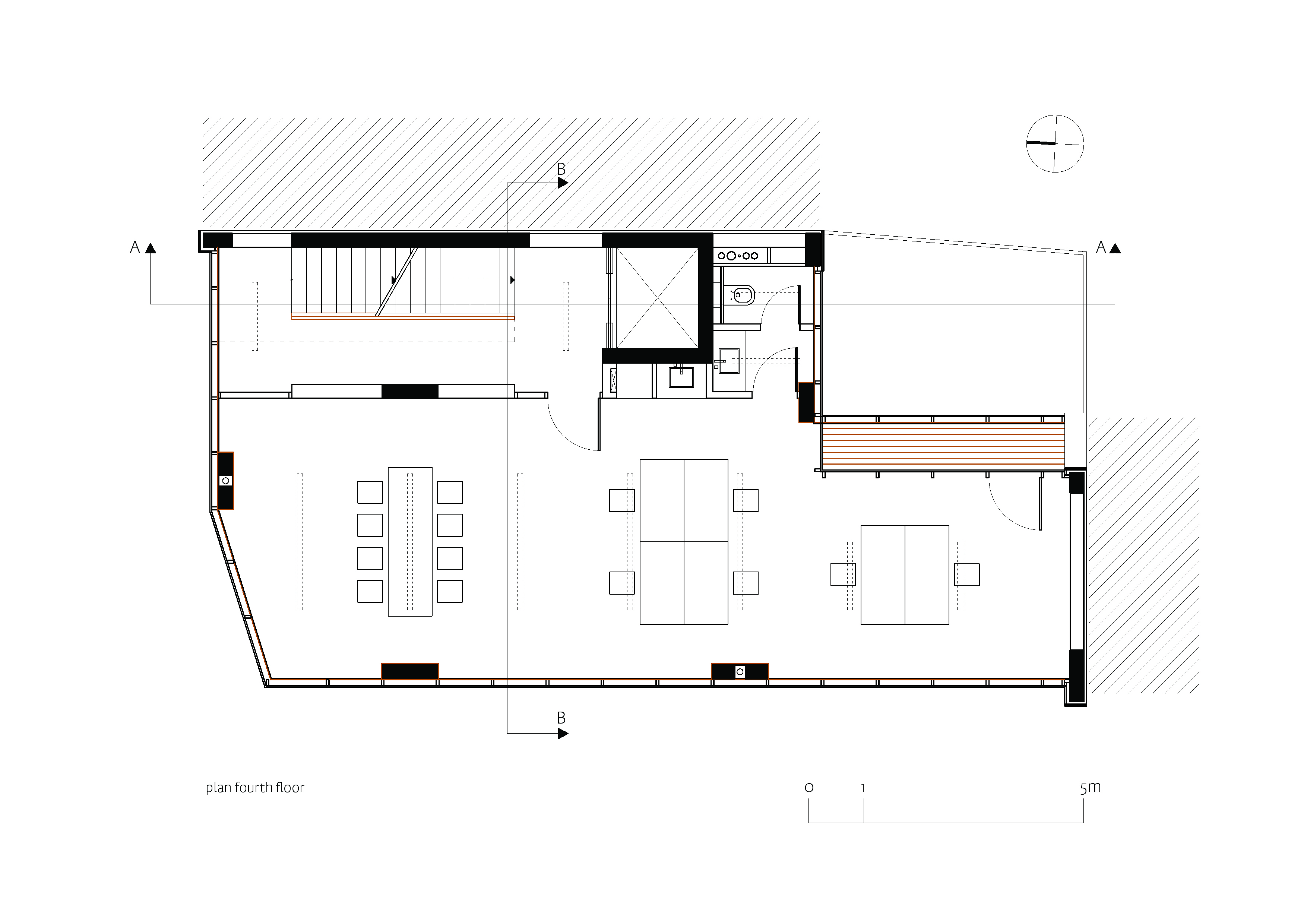
The building is set in the historic centre of Varna, near the port, in an area known for trade and town administration. It takes up a corner plot framed by blind walls. The 5 floors are designed as offices to let, together or separately. The glass facades have transparent and translucent panels, which reflect the environment outside and let in light and views. The district where the building is located, is called “The Greek neighborhood" - an iconic area for the city and one of its oldest quarters. Varna's more prominent buildings are found there: The Roman Baths - one of the largest antique buildings in Bulgaria; Bulgarian Renaissance churches - the oldest was built in 1602 over the foundations of an earlier temple; The Railway Station - a cultural landmark; many Roman and other ancient city buildings. Nearby are large storage buildings from the early 20th century, municipal buildings and many modern buildings, most of them built over the foundations of earlier structures. In the context of an architectural landscape rich in history, form and content, the presence of our building had to be delicate. We decided to pay tribute to the environs, designing a building with crisp forms and finished with with characteristic contemporary materials and details. The context of an active historic environment, the small footprint, the limited budget and the shady, narrow central street necessitated several design constraints:
To abandon the use of defined windows, doors, walls, cornices and other architectural elements characteristic of the surrounding buildings.
To create a curtain wall cladding, which saves space and gives the building the most delicate appearance.
To design a building that once constructed, will need no finishes. Therefore, the ceilings and shear walls are exposed concrete and the lights are embedded in the concrete slabs in purposefully designed slots.
To express the structure on the facade, and at the same time to enclose it inside the building in order to avoid wet construction, insulation and stucco.
To allow as much daylight in and as many views out as possible.
The volume was driven by the particular location, the program and building codes, from all of which we endeavored to derive optimal aesthetics.
“The Context" is literally reflected on the facade.
The structure is flat plate concrete on columns. The materials used are natural - stone, wood, concrete, aluminum, and finishing works are kept to a minimum. During construction, all the existing trees were protected and grass and vines were added to the inner courtyard.
The glass curtain wall has a 1m-module with panels supported on a black aluminum structure. Two types of IGUs with high insulating properties are used - transparent and translucent, with minimal detailing and unfilled joints.
The building is framed by blind walls, lined with flamed granite. The roof is part glazed and part reinforced concrete. The terraces are covered with wood slats.
The columns and slab edges are covered with oak-veneered MDF, which expresses the structure onto the facade through the varying densities of glass.
The stair railing is finished in the same wood. The stair has cantilevered steel treads, lined with granite slabs.
The ceiling and shear walls are exposed concrete, with the lighting built into pre-designed slots in the slabs.
The electrical and mechanical systems are installed in a raised floor. The flooring in the offices is wool carpet, and flamed granite on the first floor.
客服
消息
收藏
下载
最近

































