查看完整案例


收藏

下载
本案是对一个历经 30 年岁月的兼具图书馆与社区中心功能的综合设施进行改建。其目的在于:以聚集图书馆的“知识”与源于社区活动的地域“文化”作为媒介,为当地人们重新创造一个“交流之所”。
This is a renovation of an about 30 years old facility that houses a library and a community center. The goal was to revitalize a “place of exchange” for residents, using the “knowledge” accumulated in the library and the local “culture” generated by the activities of the community center as a medium.
▼设施外观,Exterior view of the facility
▼设施侧影,Side view of the facility
设施改造的第一个目标是“整合图书馆与社区中心”。通过统一图书馆与社区中心的管理机能,拆除阻挡在二者之间的墙壁,为二者创建了新的关联性。
The first goal of the facility revitalization was to “integrate the library and community center”. The administrative functions of the library and community center were centralized, and the walls that blocked the two facilities were removed to create a new relationship between them.
▼连接图书馆区与社区中心的中央入口,Central entrance connecting the library area and the community center
▼设施概览,Overall of the facility
▼有马图书馆区,Arima Library area
▼馆内细部,Details inside the library
第二个目标是“重建一个更简洁、更有趣的场所”。拆除墙壁后,在更显明亮敞快的入口处,新设了休憩空间等多种功能,促进了来客间的互动与交流。此外,通过将问讯处设置在设施中央,提高了来访者的便利性。
The second goal was to “reconstruct the place more simply and more enjoyable”. The wall was removed to create a brighter entrance with a lounge and other new functions to promote user activities and interaction. In addition, an information counter was installed in the center of the facility to improve user convenience.
▼二层连廊,Second-floor connecting corridor
▼门泽桥社区中心集会室,Assembly room of Kadozawabashi Community Center
▼会议室,Meeting room
▼多功能室,Multifunction room
第三个目标是“刷新内装,促使年轻一代的到访”。入口处的儿童帐篷作为室内新标识,被设计成一顶红色帽子状。从门厅一直延伸至南侧的外部空间,铺设有像咖啡馆一般的木制露台。另外,通过扩大使用频度高的学习室空间,以及增设连接阅读区与学习室的新楼梯,在提高了便利性的同时也刷新了设施的空间结构。
The third goal was to revamp the interior design to encourage younger users. The kids’ tent at the entrance was made to look like a red chapeau and became an interior icon. The exterior space on the south side, which is continuous from the entrance, is paved with a wooden deck, creating a café terrace-like space. Additionally, the frequently used learning room was extended and a new staircase was built to connect the reading area and the learning room, improving convenience and renewing the spatial composition.
▼儿童帐篷,Kids’ tent
▼儿童阅读区,Children’s reading area
▼木制观景露台,Wooden viewing terrace
▼学习室,Learning room
▼站在楼梯上俯瞰阅读区,Standing on the stairs overlooking the reading area
▼学习室与阅读区,Learning room with reading area
那略带昏暗沉重气氛的既有设施,蜕变成明亮开放的“知识与文化的交流之所”,在该地获得了重生。
The existing facility, which had a somewhat gloomy and heavy atmosphere, was revitalized as a “bright and open place for knowledge and cultural exchange” in the community.
▼阅读区与露台,The reading area with terrace
▼设施夜景,Night view of the facility
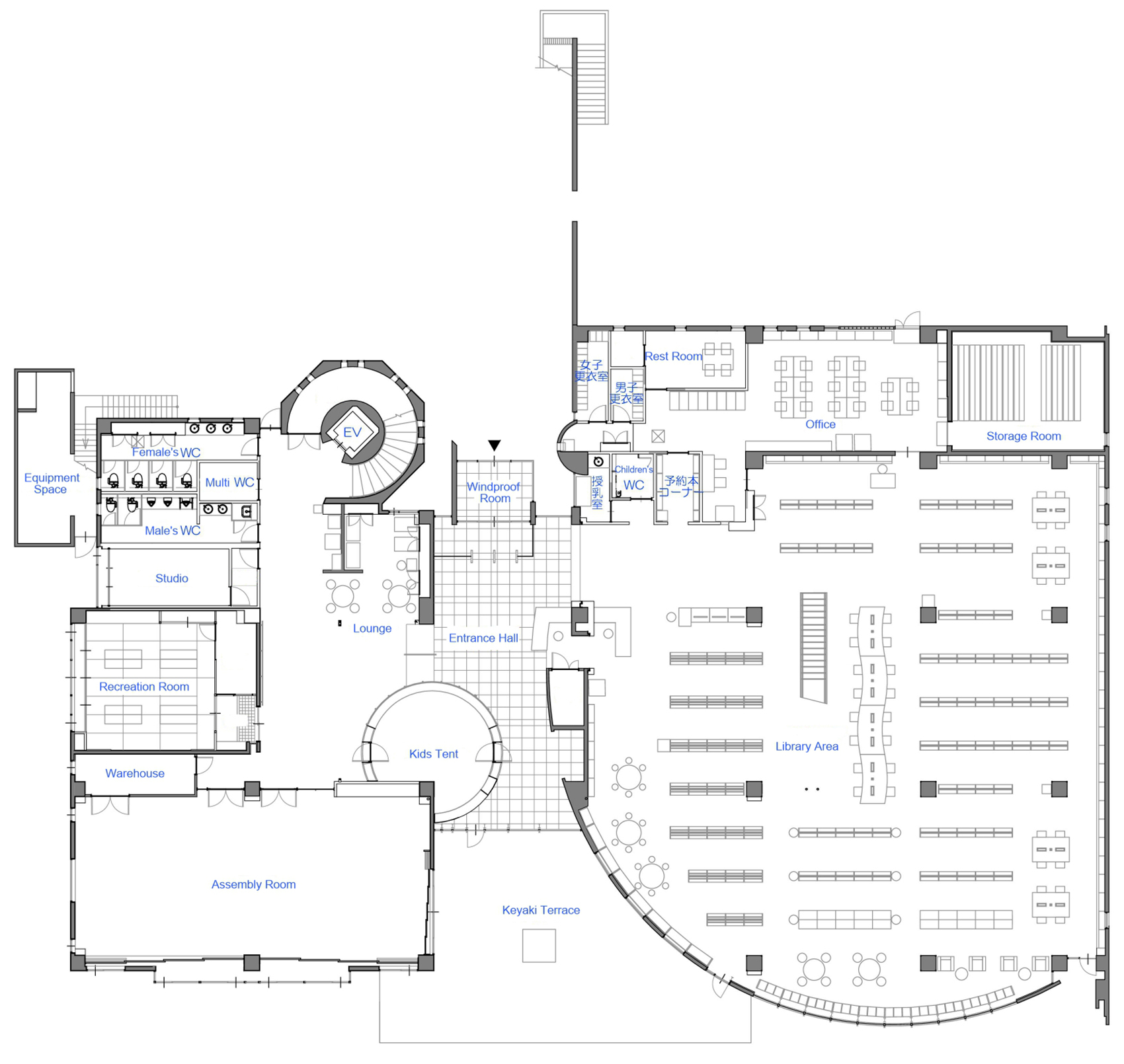
▼一层平面图,First Floor Plan
▼二层平面图,Second Floor Plan
▼北侧立面图,North side elevation
▼东侧立面图,East side elevation
▼南侧立面图,South side elevation
▼西侧立面图, West side elevation
▼东西侧剖面图,East-west section
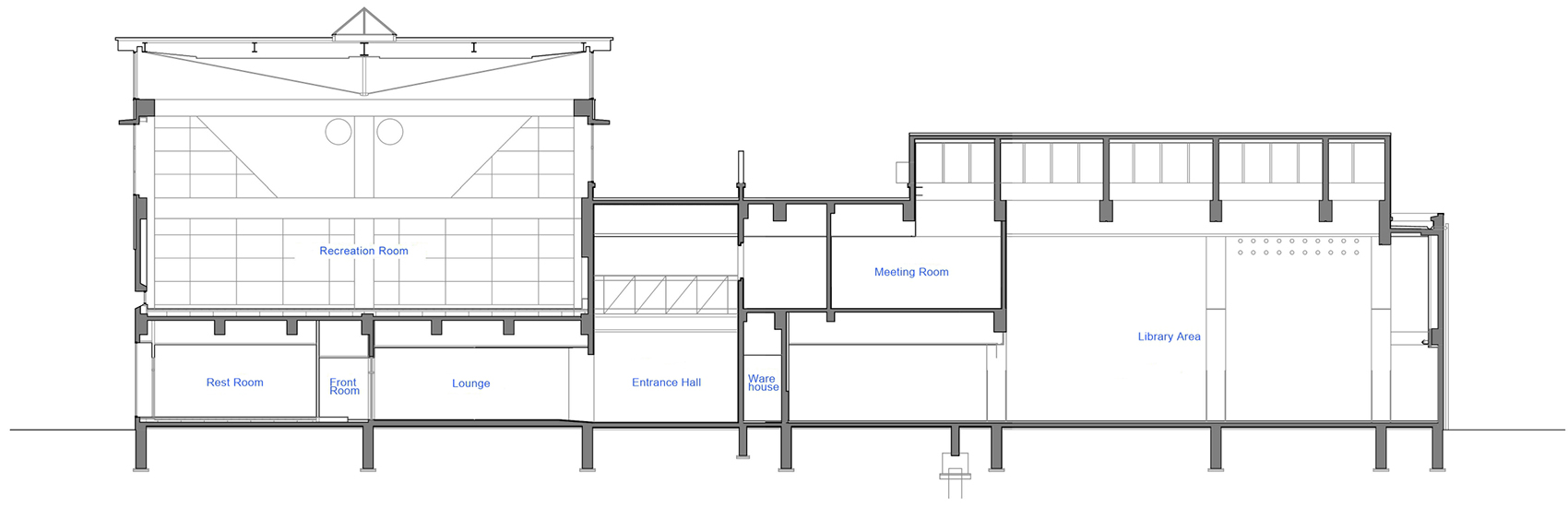
▼南北侧剖面图,North-south cross-section
项目名称:海老名市立有马图书馆·门泽桥社区中心 改建
项目位置:日本神奈川県
项目类型:图书馆,社区中心
占地面积:3,064.28㎡
建筑面积:2,321.04㎡
设计周期:2019.05 – 2019.11
施工周期:2020.06 – 2021.03
结构规模:钢筋混凝土结构部分钢结构 二层建筑
设计公司:三上建筑事务所
主持设计:益子一彦
网站:
联系:kin@mikami-arc.co.jp
摄影:堀内広治(新写真工房)、大友洋祐
Project Name: Ebina City Arima Library, Kadozawabashi Community Center
Project Location: Kanagawa Prefecture, Japan
Project Type: Library, Community Center
Site Area: 3,064.28㎡
Building Area: 2,321.04㎡
Design Period: 2019.05 – 2019.11
Construction Period: 2020.06 – 2021.03
Structure scale: Reinforced concrete structure part of the steel structure, Two-story building
Design Firm: MIKAMI Architects
Chief Designer: Kazuhiko Mashiko
Website: kin@mikami-arc.co.jp
Photography: Kouji Horiuchi(SHIN-SHASIN-KOUBOU INC.), Yosuke Otomo
客服
消息
收藏
下载
最近





























