查看完整案例


收藏

下载

翻译
Firm: giussaniarch - Roberto Giussani / Andrea Balestrero
Type: Commercial › Bank Office
STATUS: Built
YEAR: 2014
SIZE: 100,000 sqft - 300,000 sqft
BUDGET: $10M - 50M
Photos: Andrea Martiradonna (9), giussaniarch - Roberto Giussani / Andrea Balestrero (6), Unknown (1)
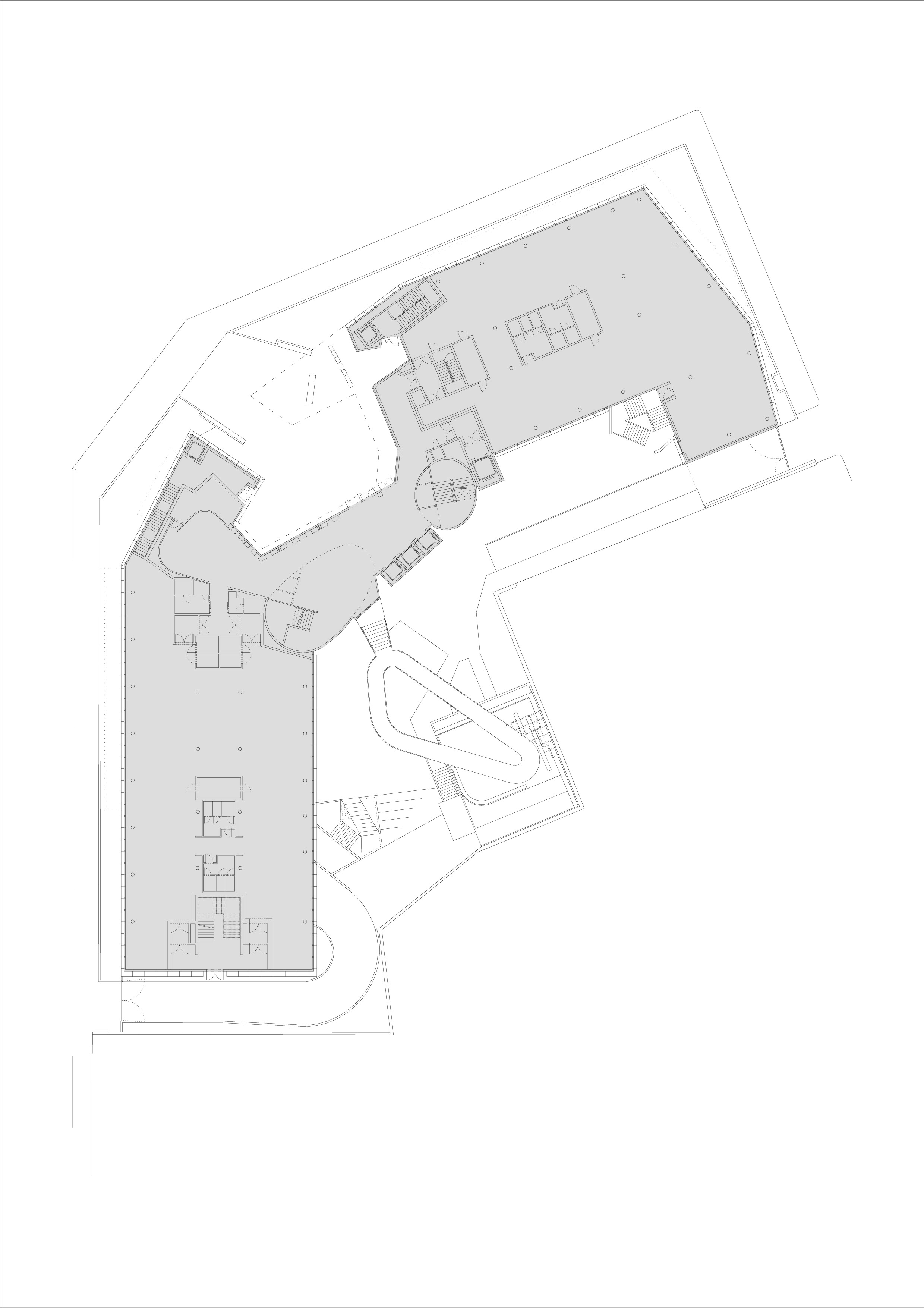
The building, which houses offices and a data processing center, aims to complete the building curtain of a block situated at the intersection of three urban axes. Its minimum volumetric articulation sets a moment of “silence” and abstraction against the linguistic overlapping of the context. The uniformity of prospects is obtained thanks to an innovative double membrane filtering façade system, provided with vertical sheets in silk-screen printed glass, which automatically pivot according to the incidence of sunlight to optimise internal lighting and heating conditions. The volume is organized around the entrance hall, which constitutes the connecting point of the whole building, divided in two “wings”. At this concentration of flows, the building volume is hollowed out to house the main entrance and wrap it in a cozy open space, a small square significant at the urban scale. The modulation of the of the transition between public and private space is the main theme of the project and aims to create a relationship of continuity between the space of the city and that of the building. The fence in metal profiles become an urban design element, extending and lowering itself to form large seats inside the entrance open space. The hall on the ground floor overlooks a small garden, built on the roof of the technical volumes of the lowered yard, which continues the urban axis of Lambro park’s green system.
Project: giussaniarch - Roberto Giussani / Andrea Balestrero
with: Eugenio Feresin, Michele Nebuloni, Costanza Ronchi
Photo: Andrea Martiradonna
客服
消息
收藏
下载
最近






































