查看完整案例


收藏

下载

翻译
Firm: Geoffrey von Oeyen Design
Type: Commercial › Office Residential › Private House
STATUS: Built
YEAR: 2017
SIZE: 0 sqft - 1000 sqft
BUDGET: Undisclosed
Geoffrey von Oeyen Design has examined the workspace through the lens of working from home. In a future where more time at home creates more time to observe and appreciate the visual and temporal qualities of one's environment, spaces that anticipate these phenomena become all the more valuable. Through a significant architectural addition to support the work of internationally recognized professionals, the Case Room leverages geometric relationships and site conditions to create visual overlays for the spatial registration of place. This project serves as an optical device specifically adapted to represent a familiar context in unanticipated ways, and is designed to transform a familiar residential typology into a contemporary work environment, utilizing daylight, geometry, space, and view as sources of recurring visual discovery. Perspectival alignments, geometric sequences, visual coincidences, shadow projections, daylight diffusion, and other visual and material phenomena can be understood through an accretion of experiences in an around this project over time, thus revealing prescient spatial capacities latent in the design.
The clients—two attorneys—commissioned an addition of 650 square feet to their residence in Malibu, California, for use as a satellite home office. As Jenna McKnight aptly noted in her story about the Case Room for Dezeen, written prior to the pandemic, the home office has taken on increasing importance in the 21st century as more professionals seek opportunities to work both independently, and with staff, from home. Post-pandemic, the concept of work-from-home has taken on new dimensions, and it is ironic that this project was to be featured on an AIA national convention tour as a prototypical work from home space-- before the Los Angeles convention and tour were canceled and as the owners work from home in the Case Room.
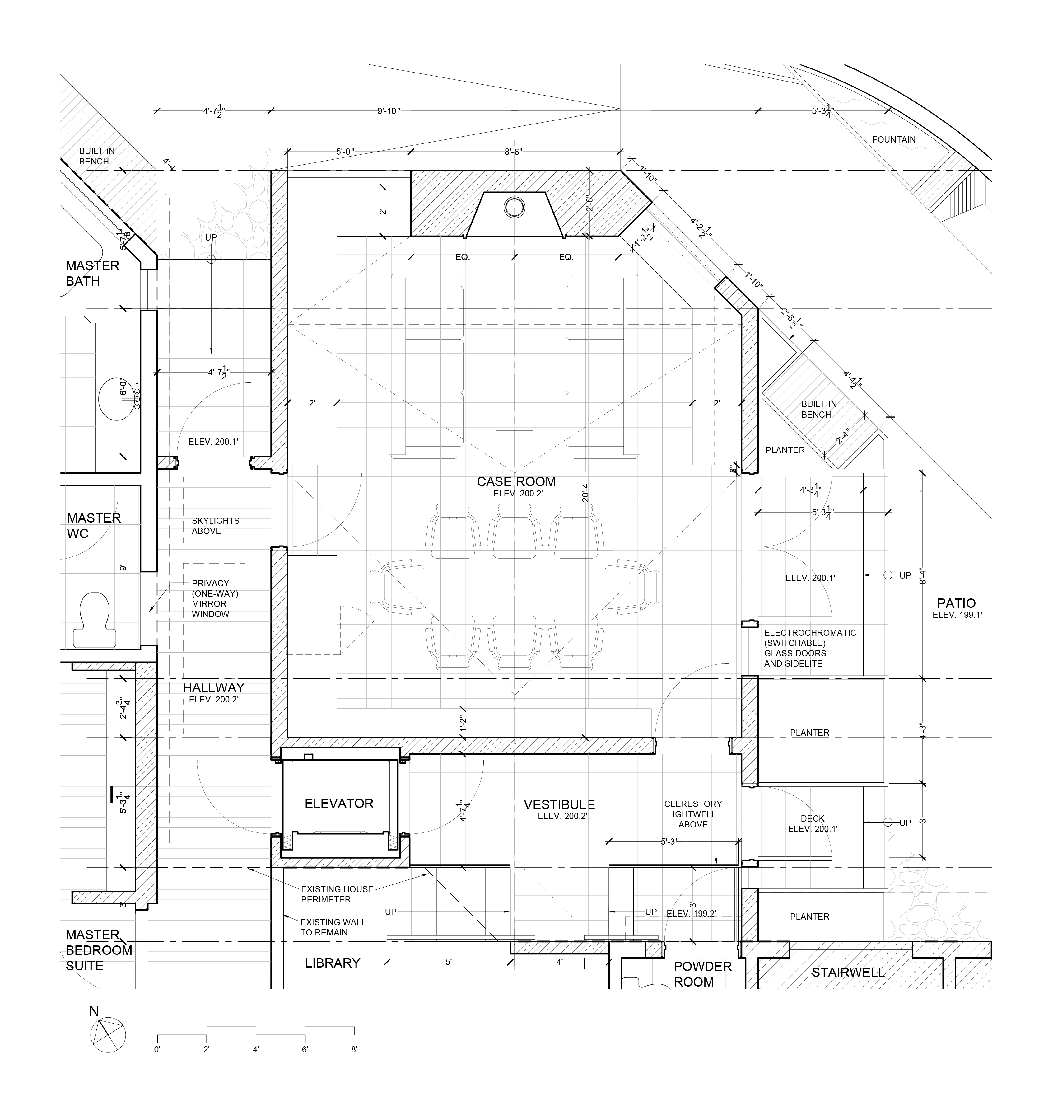
The program’s double-height space allows partners and their staff to work either together or remotely. A fireside area serves private client meetings, and ample shelving offers storage for legal documents and office equipment. An elevator accommodates clients as well as circulation between the library, powder room, and main bedroom on the lower level, and the media room on the upper level; a new hallway with skylights separates the Case Room from the main bedroom and bathroom, and brings in daylight and access to the exterior. For daytime and evening events, a landscaped exterior patio with built-in benches, a fireplace, fountain, and outdoor kitchen were added.
The design challenge of simultaneously separating while connecting the Case Room to the existing house required the negotiation of multiple floor levels both inside and outside of the addition, access to natural light for once-exterior facing rooms that became interior, and several circulatory routes that provide owners, staff, and clients differing points of access. The clerestory vestibule to the south, and skylit hall to the west provide access to natural light and acoustic privacy from the living areas, while the discrete mechanical roller shades and electrochromatic glass provide switchable visual privacy when needed. The strict city-permitted height limit made this negotiation all the more difficult, as elevator head clearance was required on the existing second floor level.
Clerestory windows capture the north light at the foot of the hillside, diffusing light, orienting the space, and framing views up the hill. The massing of the Case Room, designed as a series of blocks obliquely sliced and assembled in a descending sequence in section, transitions in plan from a vestibule threshold with the existing house to a transposition of the existing exterior wall geometry. The addition is both symmetrical and asymmetrical, and aligns with existing orthogonal and diagonal wall geometries. The serial, symmetrical roof gables, which step down one foot at each progression from the maximum city-defined height limit, align in plan with the major programmatic divisions of the space. The new second-floor landing adjacent to the Case Room, flanked by an elevator to the northwest and clerestory light well to the southeast, frames simultaneous views both into the double-height room and above its roof toward the hillside. The interplay of reflected daylight on the folding ceiling surfaces throughout the day provides a gently modulating, diffused top lighting for contemplative work.
The design drawings, models, and digital model renderings for the Case Room were first exhibited by the Architectural League of New York in the 2014 Architectural League Prize exhibition, Overlay, and were published in 2015 in the book Young Architects 16: Overlay by Princeton Architectural Press. The Case Room received a 2019 Residential Design Award from the American Institute of Architects, and is currently featured in the inaugural virtual gallery exhibition titled The Future of Space by the A+D Museum, Los Angeles.
Credits:
- Kyle Monk Photography - Photographer - Kyle Monk
客服
消息
收藏
下载
最近

























