查看完整案例


收藏

下载

翻译
Firm: GWP Architects
Type: Commercial › Office
STATUS: Under Construction
:
SIZE: 500,000 sqft - 1,000,000 sqft
BUDGET: $100M +
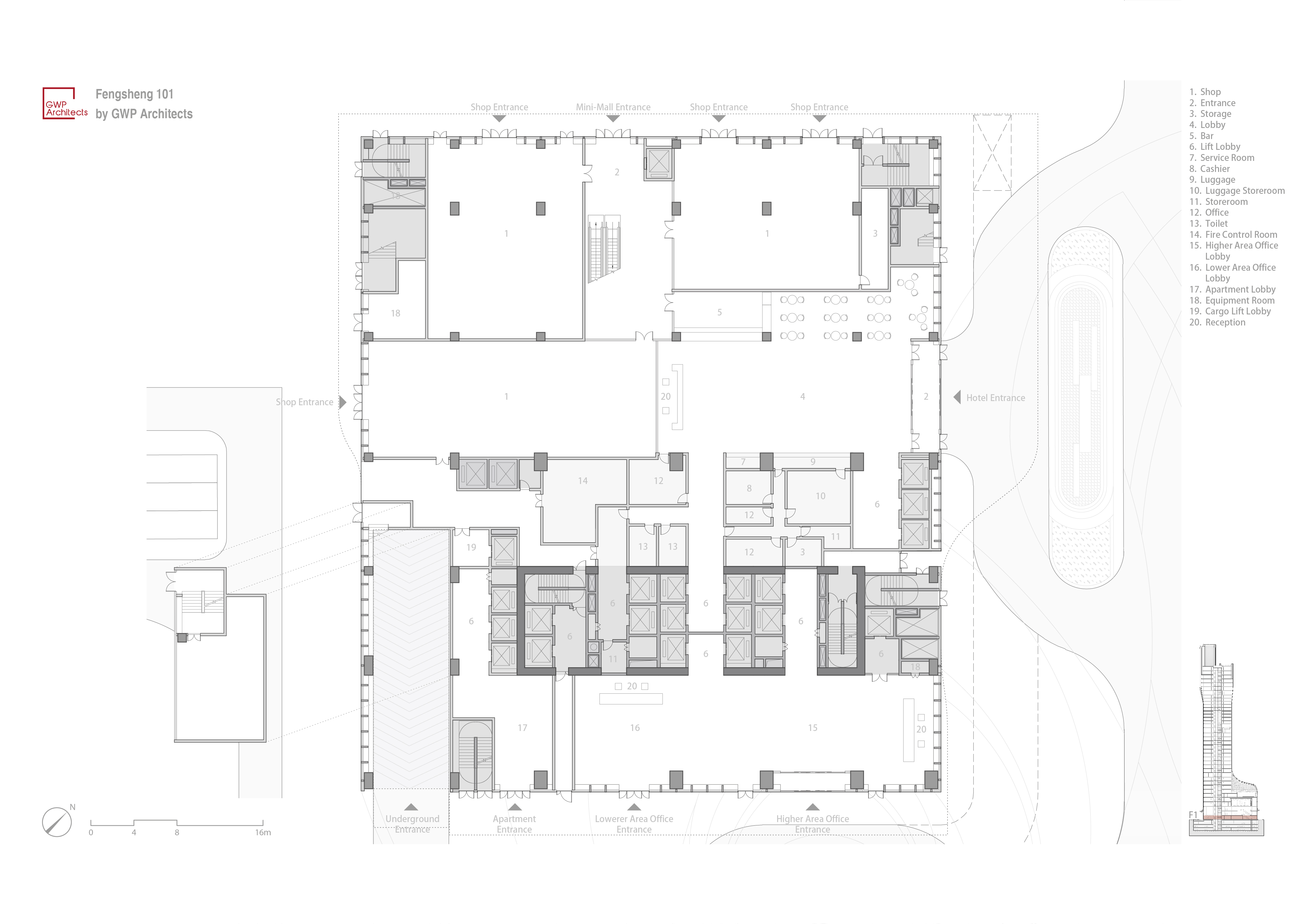
The Fengsheng 101 project is located next to Lixin Avenue in Zengcheng, Guangzhou. The north side overlooks Nanxiang Mountain and the south side overlooks Guangzhou Pearl River New City. The project has a total construction area of approximately 81,000 square meters and a height of 200 meters, including program like hotels, offices, apartments, and commercial stores.
The project is inspired by the image of sailing. The shape is generated with the core of the building as the axis, divided into two parts from north to south. Down the trend, it lightly fell on the podium to form a canopy space, cleverly integrated the podium and the tower of the building, and dotted the city's skyline in a natural and organic form. Become a beautiful scenery of the Greater Bay Area.
Utilizing shifted two building blocks, the design team set up series landscape platforms on the north and south sides, respectively, to extend the surrounding green space experience to the building's vertical facade, up to the roof garden. These green space on the facade become a vertically ecological space to enhance the landscape experience of its program in each floor.
客服
消息
收藏
下载
最近




























