查看完整案例


收藏

下载

翻译
Firm: Công ty cổ phần tư vấn thiết kế và xây dựng Nam Cường
Type: Commercial › Office
STATUS: Built
YEAR: 2020
SIZE: 0 sqft - 1000 sqft
BUDGET: Unknown
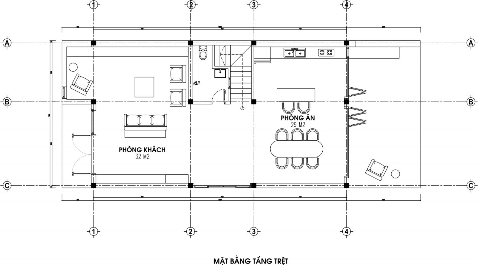
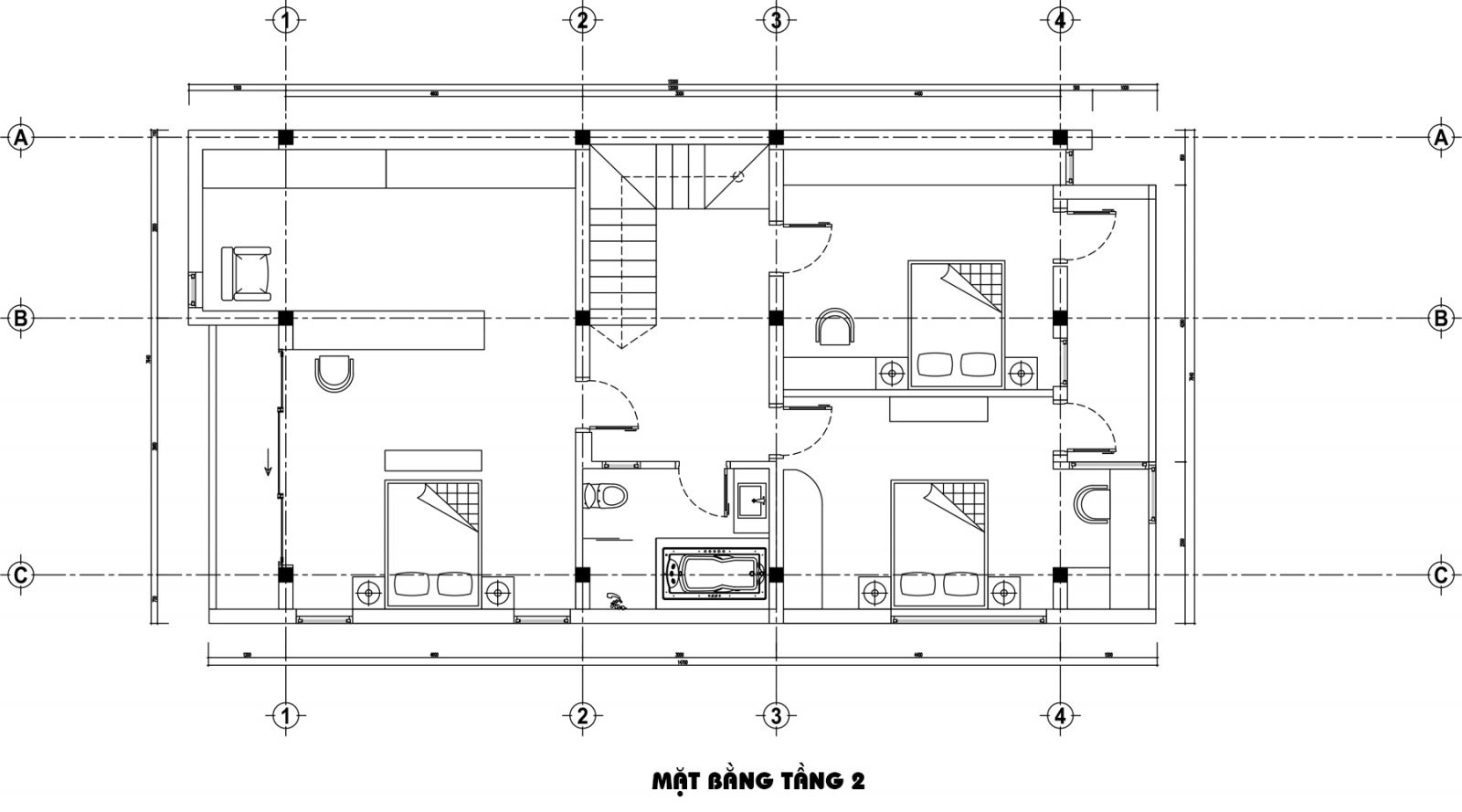
Mẫu thiết kế biệt thự phong cách 2 tầng hiện đại này thuộc sở hữu của chủ đầu tư là chị Ngô Thanh Thủy. Gam màu trung tính được KTS sử dụng giúp mang đến chiều sâu và không tạo cảm giác nóng bức. Các hình khối được tính toán logic, khoa học đã mang đến cho toàn thể công trình một vẻ đẹp bắt mắt, ấn tượng.
Để chi tiết hơn, mời bạn đọc xem tại đường dẫn: https://bit.ly/377K8DS
客服
消息
收藏
下载
最近









