查看完整案例


收藏

下载

翻译
Firm: Shaili Banker Architects
Type: Commercial › Office
STATUS: Built
YEAR: 2018
SIZE: 10,000 sqft - 25,000 sqft
BUDGET: Undisclosed
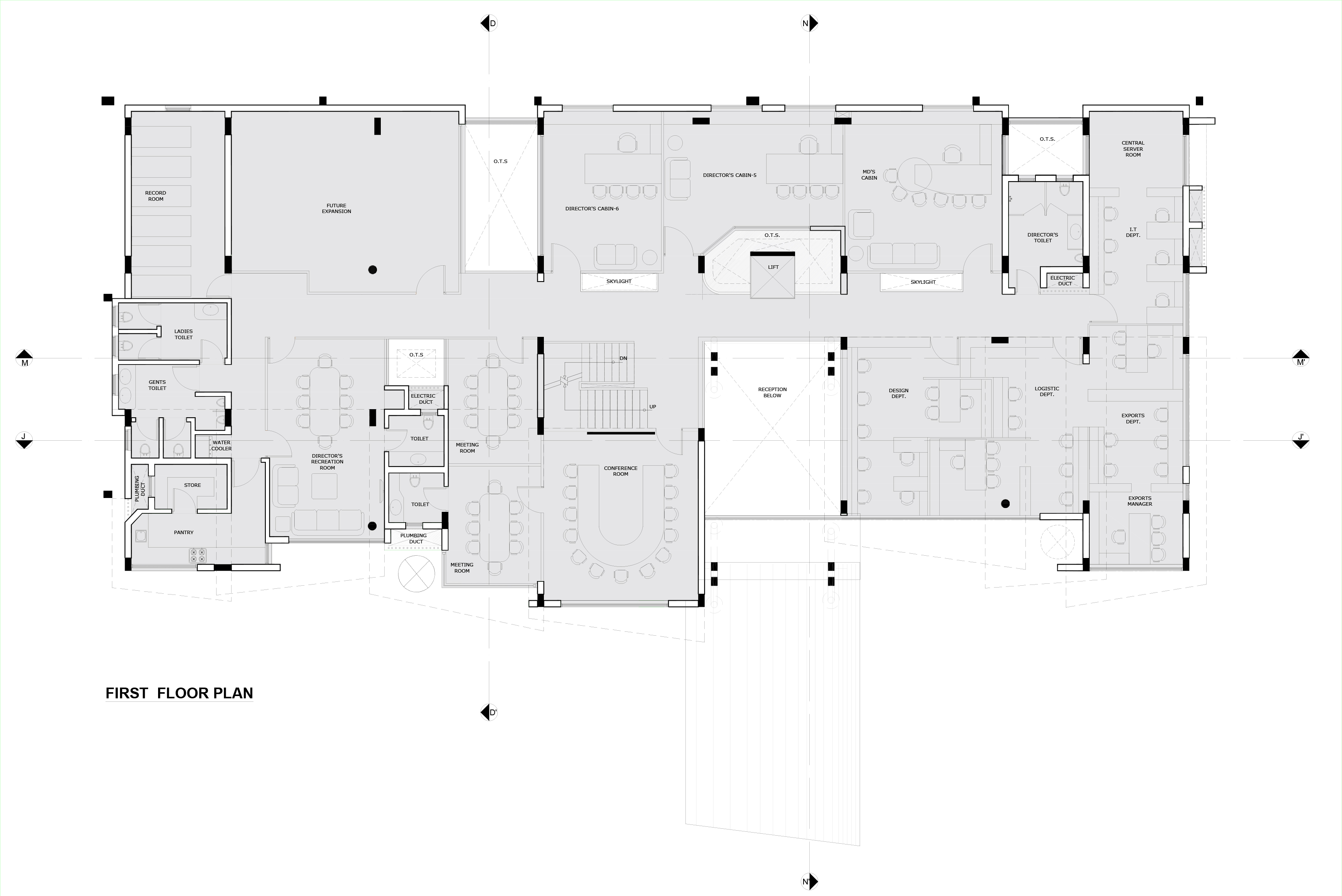
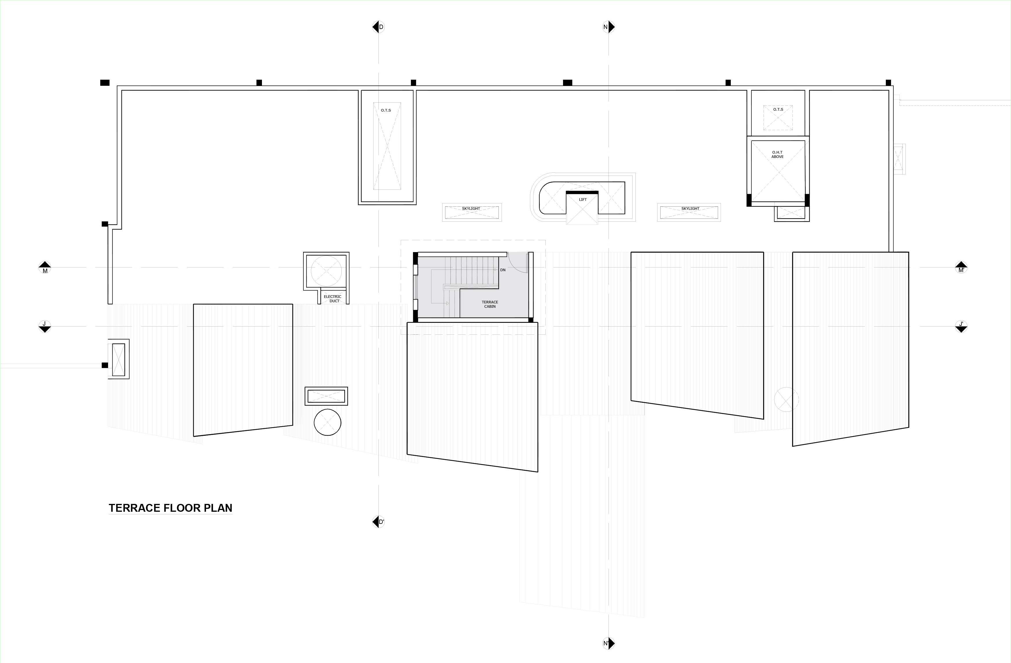
This corporate headquarters is the administrative building of the manufacturers of textile printing machinery. Just like the waves of a textile fabric, the roof of this building is designed to represent this. The external form of the building is inspired by the waves of a fabric. The form and properties of a fabric became the centre of the study while creating the overall design of the building. A system of concrete shells was used to imitate the waves of the fabric. This became the roof of the building creating a play of volumes of varied heights inside.
Moreover this office is situated in the industrial area on the outskirts of Ahmedabad where the air quality is absolutely poor. Hence the architecture of this building had an important role to play in providing its occupant an improved air quality and so a better work environment.
The plan of this building is a perforated one, with several big and small courtyards placed within the floor layout. These courtyards serve as a source of daylight, creating a vibrant work environment. Since the office mostly functions during the daytime, these courtyards provide abundant light making sure that no additional artificial light is required during the working hours. Moreover these courtyards are landscaped with several indoor variety plants like the money plant, snake plant and areca palms. All of these species play an important role in improving the indoor air quality. Bearing in mind the poor air quality of this area, these indoor plants create a conducive work environment by enriching the air with more oxygen.
The interior design consists of a brightly coloured palette paired with a variety of plants, resulting in a very vibrant work environment. The double height reception area has a colourful back drop with lights in it. The cabin areas with a more subtle palette have a framed view of the manufacturing area behind. The corridors are lined with motivational quotes and lit with the natural light from the courtyards.
客服
消息
收藏
下载
最近




























