查看完整案例


收藏

下载

翻译
Firm: plan loci
Type: Commercial › Office
STATUS: Built
YEAR: 2018
SIZE: 0 sqft - 1000 sqft
BUDGET: Unknown
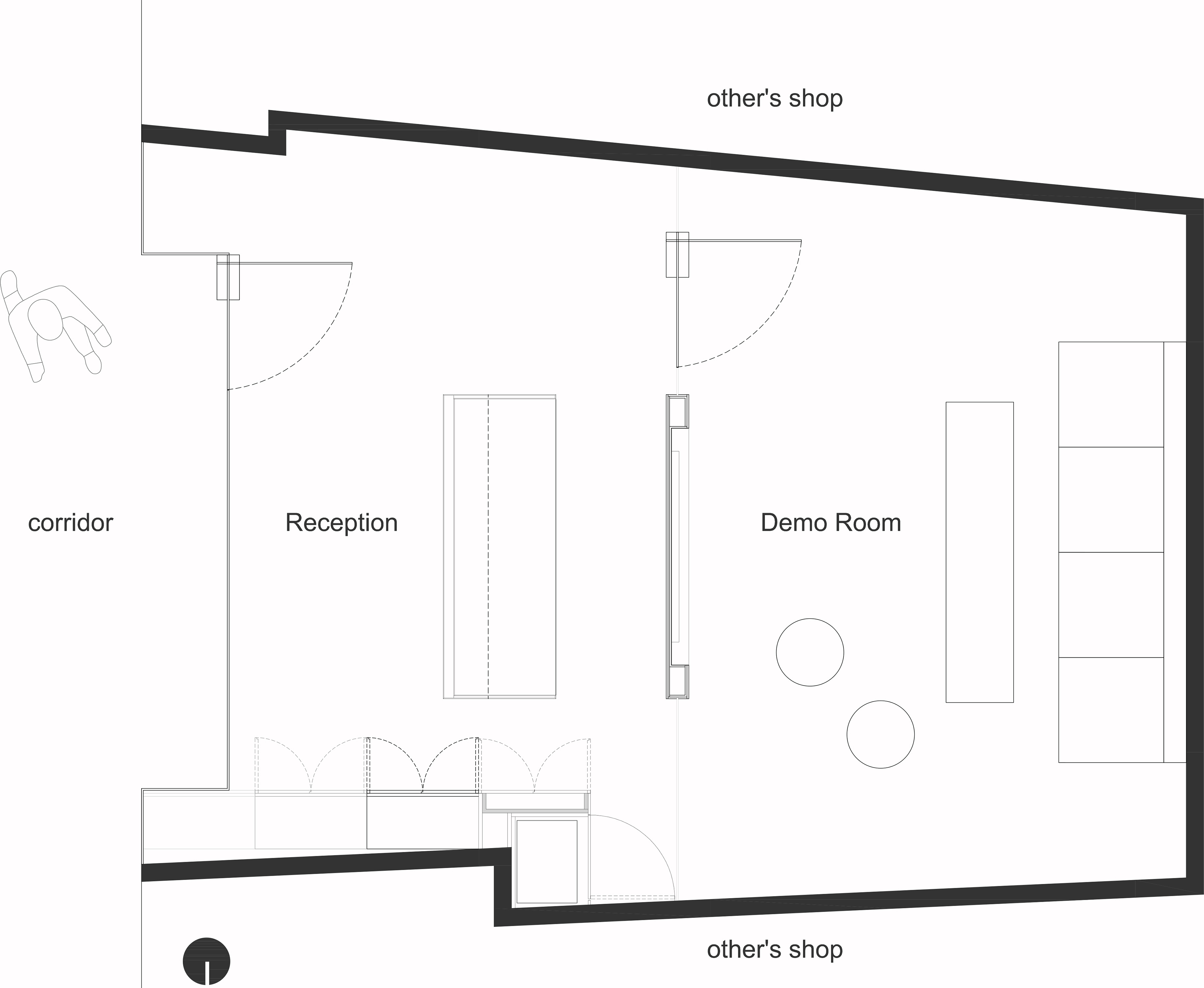
Interior Design Area : 30 sqm
Completed in 2018
Photography : Luxmi Digital Studio
Luxmi Digital Studio approached us to create a meeting node for wedding photography clients at The Ashok Hotel. The site is a shop of 30 sqm with access from an internal curving corridor. The requirement was to have a demo room where they show their albums and videos along with a reception and pantry. Our approach was to create a world within itself as if immersed in a photograph. The design is conceptualized as a black space in a white context sprinkled with colorful pixels in RGB gradation. The contrast along with hanging lights creates a focused environment and provides privacy on a retail street. A linear layout with minimum solid partition integrates all the functions while retaining the spatial feel. A material palette of slate stone, brass beads and around 4000 pixels made of lacquered glass create a subtle and bold look at the same time.
客服
消息
收藏
下载
最近














