查看完整案例


收藏

下载

翻译
Firm: Mano de Santo
Type: Commercial › Office
STATUS: Built
YEAR: 2017
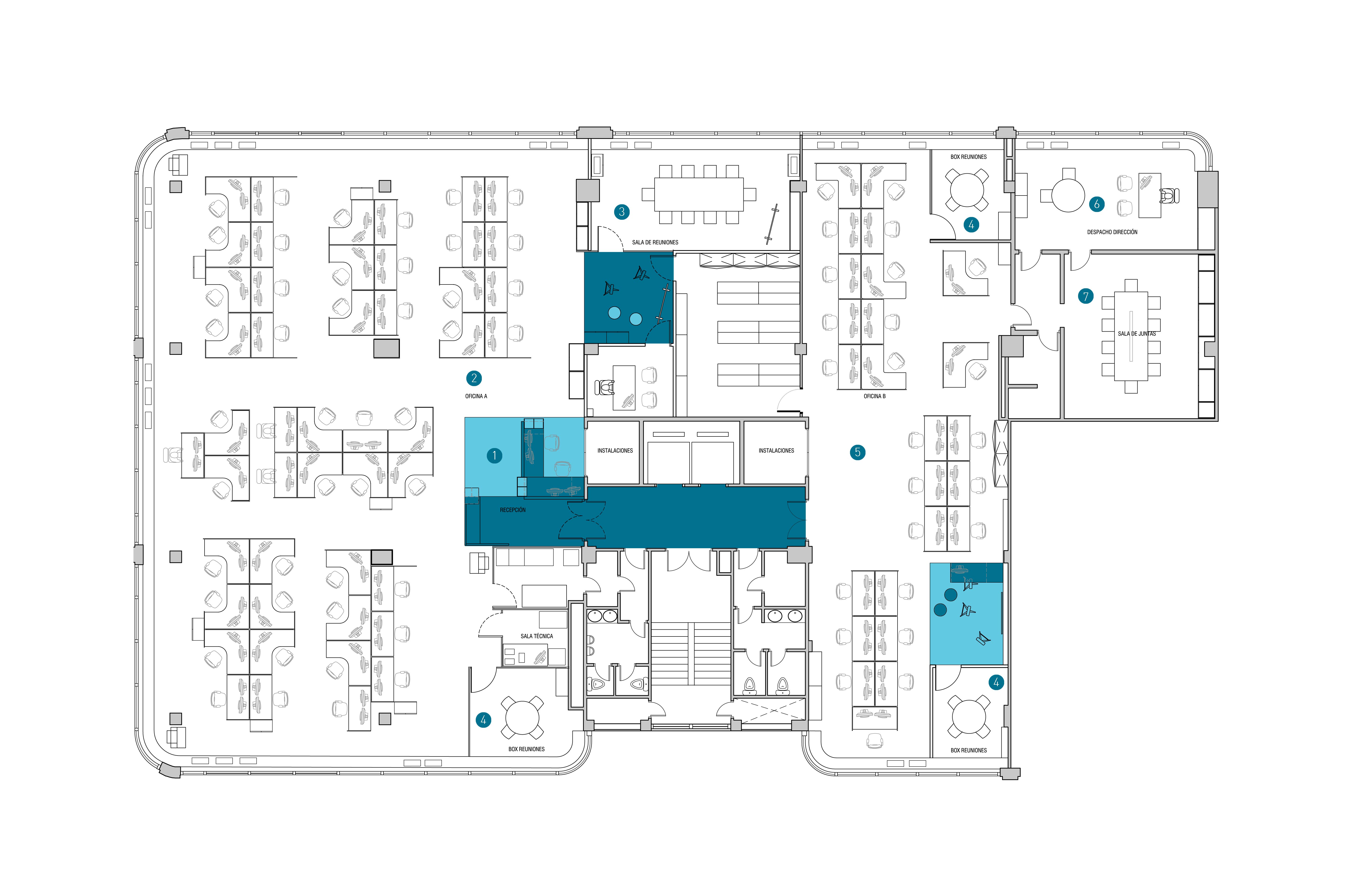
Martico Reefer Solution S.A. company specializing in the management of goods has its facilities in Paseo de la Alameda, Valencia. These occupy a floor of an office building overlooking the Turia park, have grown very fast in recent years and and needed to order, renovate the image and project their identity.
With these ideas, we soon began to work with them, concluding to convey the values and personality of Martico in their offices
It reorganizes the space of the space and the jobs sectorizing by areas, giving importance to the control of views, designing elements of partial compartmentalization, thought these so that besides providing an ordered image we serve as identifiers of the different areas of work.
We design two open areas where we can develop group dynamics in the presence of all office users.
We have made the most of the large window that runs throughout the office with views of 360º towards the Turia park, proposing a control of natural light comfortable at all times of the day.
A versatile and international proposal that reflects the spirit of the company, an endless number of actions that culminate in a balanced, versatile, personal, corporate and perfect project for Martico.
Paseo de la Alameda, Valencia l Spain
Architects
Francesc de Paula García Martínez, Ana Gil Collado y Francisco Miravete Martín
Pictures
Diego Opazo
客服
消息
收藏
下载
最近



















