查看完整案例


收藏

下载

翻译
Firm: Bureau69 Architects
Type: Commercial › Office
STATUS: Built
YEAR: 2017
SIZE: 0 sqft - 1000 sqft
BUDGET: $50K - 100K
Commissioned by a leading Italian company in wood processing and bespoke furniture (LBA srl), this project stems from a perfect synergy between design and craftsmanship.
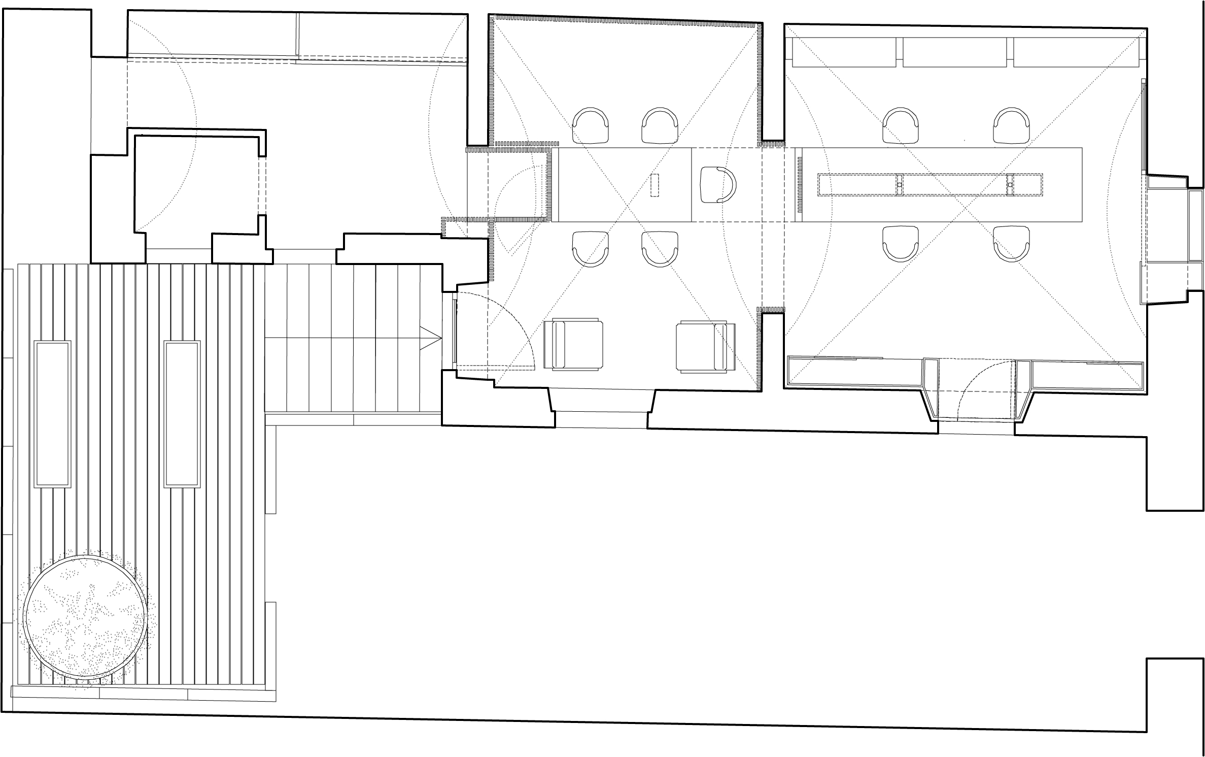
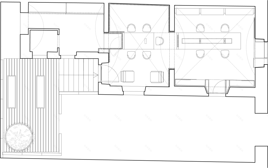
The brief required an operating and representative space capable of restoring the uniqueness of the company brand: a modern design linked to a concept of spatial versatility and high craftsmanship in woodwork whilst simultaneously respecting historic features. The space, covering a total area of seventy square metres, was rigid and simply contained and complex to modify due to restrictive anti-seismic regulations.
The guiding idea was to create a single, fluid and open environment, housing a desk, meeting table, shelving and archive space and a consultation space, without interruption. The original space was totally renovated and maintained in its purity in white with the wall fixtures (shelving and bookcases) lacquered white.
Oak provided a softening element defining the project: a desk that rises to become both a division filter for natural light and then a shelter to enclose the space around the meeting table, also derived from an element shaped in oak. All in a sinuous sign that lent to the space an unequivocal identity that could be appreciated by the large windows on the street. The intervention was completed with a lighting system, perfectly integrated with the general design, cementitious resin floor and blue furniture.
客服
消息
收藏
下载
最近
















