查看完整案例


收藏

下载
“设计让空间不动声色地充满高级感。”
/ INTRODUCTION /
任何设计的初衷都是满足人的精神需求,设计师一直在探索空间的新“视”界,平衡实用与美学之间的关系,追求空间本质,让家不动声色地充满高级感和舒适性,成为居住者寻求内心宁静的载体。
01
/ RHYTHM AND TONALITY /
设计师游刃有余地调和着庭院的节奏和调性,时急时缓,时轻时重,还原自然最美好的模样,让这方空间真正成为了居住者回归自由与自我的必经之途。远离尘世喧嚣,云雾缭绕与暮色晨光缠绵着整幢建筑,实现了大隐于市的美好希冀。
02
/ HABITS AND NEEDS /
作为家中最重要的公共活动区域,客厅承载着娱乐、休憩、社交等功能,设计师依照居住者的生活习惯和需求,考虑到不同的使用情境,设计出了最佳的格局和动线。空间的可能性,也正在变得更加多元。
生活不仅有不期而遇的温暖,更有生生不息的希冀。像诗赋般写意自然的留白,誊录了家人的无数欢乐日常,让客厅拥有了更多样的意义。当下的你,当下的我,当下的心境,都成为了空间的一部分。
材质的碰撞、色调的融合、肌理的舒张、体块的穿插……这些视觉的印象被细致巧妙地排列组合在一起,经营成一个拥有个性的家。光线是空间的线索和变量,日起暮落,每一刻都能创造出崭新的视觉美感,为家赋予深刻而隽永的意境。
03
/ TARGETED /
餐厅的设计有的放矢,开放式的空间配以宽敞的窗户,意在打造优雅且富有仪式感的用餐体验。木元素包含着天然的沉静与安心,绿植凭借着本身的纯粹为餐厅增添一抹鲜活的气息,温暖的烟火气便瞬间弥漫开来。
04
/ INTERACTIVE CARE /
橱柜自然清隽的纹理和深浅不一的色调,仿佛将自然中的湖山真意复刻在了厨房内。厨房与整体建筑的风格审美有着不谋而合之处,以充满现代感的形式塑造了沉浸式的烹饪空间以及关怀性的互动空间。
05
/ PERCEPTION OF LIFE /
生活在简单又走心的设计中,会变得更有趣、更有意义。楼梯运用优雅的弧度和柔和的灯光,将上下楼的每一步都变得更有仪式感。线条与色彩搭配融合,让人感知空间,感知自然,感知生活之美。
06
/ UNSPOKEN SECRET /
卧室随着每个成员的不同个性,变成了独特的、私人的、真实的存在。卸下疲惫,躺在床上,柔软的肤感席卷全身。生活中每次小甜蜜、小确幸、小温馨,都是我们和卧室与家之间无形的、不可言说的秘密。
“我爱你,因为在这广袤的繁星之间,再没有独属于我的第二颗星星。”月色作饵,晚风为杆,你我相拥而眠,缠绕的爱意在这方空间之中,被衬托得愈发清晰和坚定。
“ 希望在这座城市给你温暖的陪伴,带给你与新世界交手的勇气。”女儿房内,奶油色的床在轻柔甜美的粉色背景里释放着优雅和纯粹,在快要入睡时为你织一个月亮味的梦。
克莱因的蓝,加一点莫奈的灰,这样的温柔构成了空间的迷人旋律。形态各异、时尚潮流的Kwas公仔,带我们逃离喧闹的城市,感受生活的静好。
家,是我们尽情释放感情、大胆展现自我的空间。设计彻底打破了空间的局限性,塑造出一些功能性很强的自由空间,家人们可以在这里一起打兵乓球、打台球、阅读、休憩、睡眠、收纳……
07
/ THE TEXTURE OF LIFE /
潜意识里,自然之境能给人带来安全感与归属感,所以卫浴空间通过设计语言与审美思维,探索和创造更多的自然感与可能性。运用简约、现代的手法布局,赋予舒适的使用体验和卓越的空间质感。
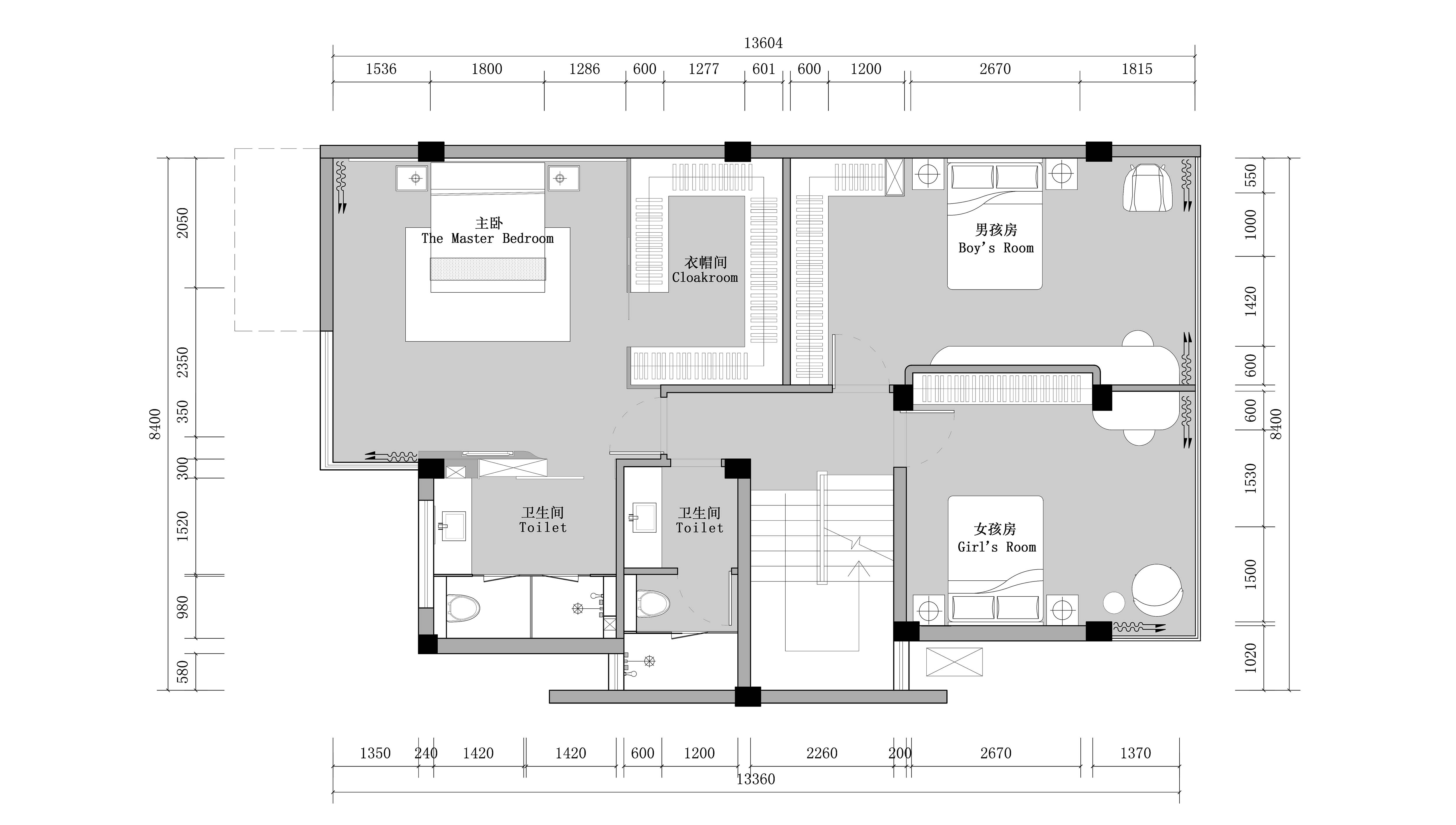
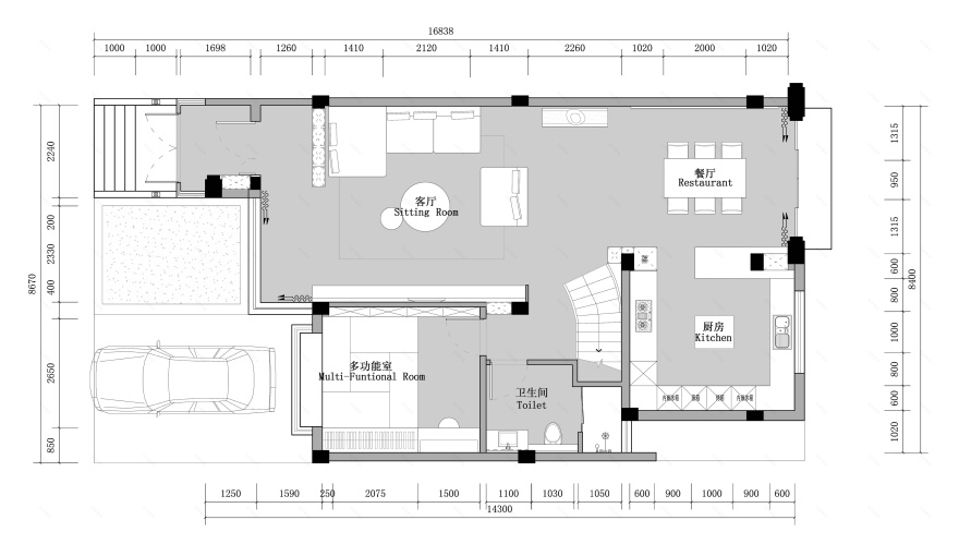
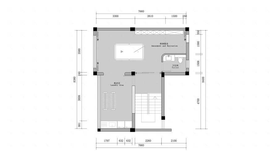
▼ 项目平面图
&一层平面图
&二层平面图
&三层平面图
项目名称:花都艺墅
项目地址:苏州・昆山
设计公司:ELEMENT DESIGN 元素设计
项目面积:253㎡
主创设计:赵剑峰
参与设计:王伟杰 周宇飞
施工单位:ELEMENT DECORATION 元素装饰
文案策划:修合文化
项目摄影:晟苏建筑摄影
客服
消息
收藏
下载
最近























































