查看完整案例


收藏

下载

翻译
Firm: Atelier JQTS
Type: Commercial › Exhibition Center Cultural › Cultural Center Gallery Museum Pavilion
STATUS: Built
YEAR: 2012
Photos: Diana Quintela (2), Tim (2)
It’s a pavilion - non profit project - that intends to receive interventions proposed by architects or artists and the calendar always changes between periods of invited proposals and periods of selected interventions from an open call. These projects should be created as an original work developed for this space exploiting his characteristics and dialoguing with the ambiences through their own and personal research.
Following this concept, and moving away from the institutional circuit of museums and galleries, the space is intended to be public, free and open to all the participants and proposals that want to integrate the exhibition’s calendar and by this generate the meeting and interaction between different generations and multidisciplinary projects.
The invitation to participate and submit proposals in KAIROS Pavilion is open to architecture, fine arts, performance, theatre, music and other artistic languages in which the participants feel that fits inside this concept contributing to approach creators and public.
PROJECT
To the linear and chronological time ‘CHRONOS’ opposes ‘KAIROS’, an undefined and symbolic time which cannot be measured except by his quality.
The building wants to put two apparently irreconcilable times in dialogue. Since the very ancient periods buildings aspire to the idea of the ‘eternal’ through a spatiality and materiality able to resist time. The great temples and cathedrals, completely made out of natural stone, continue to coexist with the contemporaneity. Concrete constructions represent undoubtedly the legacy of modernity and they recover as well this symbolic idea of eternity.
This confront between the temporary and the eternal is something worth researching through a general view to the possibilities that our time can offer us. This prefab solution is capable to deal simultaneously with these two aspects as it allows us working with a durable and resistant material dialoguing with continuous Time, through a modular construction and an easy assembly or disassembly.
KAIROS, created by João Quintela and Tim Simon, appears as a result of a spatially research referenced in history through the use of Matter, Light and Time. The Matter of the Concrete, the Light of the Sun and the Time built from both. It’s an investigation about proportions and the relationship between the small scale of the isolated module and the large scale of the whole building itself in relation with the context.
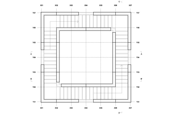
The space is built by a very easy and primitive constructive system of overlapping and joining pieces, taking advantage of their own weight without using any glue or screws. It’s a square plan building with an inside square patio. Thus, there exists a perimeter all around that consists in a path developed both on the lower and upper level, generating two similar spaces with completely antagonistic ambiences. One is covered and black while the other is exterior and bright.
The inner patio is defined by the mirror created through the water inside which reflects the sky and duplicates the space. This becomes the central element, inaccessible and contemplative, able to freeze time and build an intimate moment, a dialogue with the past. Becomes the most significant space and acquires symbolism due to his impossible conquer.
客服
消息
收藏
下载
最近



















