查看完整案例


收藏

下载

翻译
Firm: yoon space
Type: Commercial › Exhibition Center Showroom Cultural › Gallery
STATUS: Built
YEAR: 2015
SIZE: 0 sqft - 1000 sqft
BUDGET: $0 - 10K
ART 23.5 Jung Gil-Young gallery
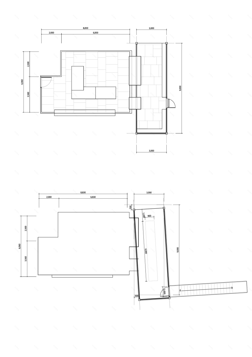
The gallery of potter Jung Gliyoung is opened in Cheongdo, Gyeongsangbuk-do. The designer rather applied unnatural mirror mass which is contrary to nature to bring the natural beauty of the surrounding to the building, and the contrast of the physical properties of these materials and nature reflected in the mirror provide a unique space with exquisite fusion. Through angles the exterior of the building presents a totally different landscape according to the direction even though it is the same space rather than being a mass. The interior space which reflects the personality and characteristic of the potter harmonizes with dense trees by finishing everywhere in glass, and the individuality of the gallery is expressed with painting in reversed colors.
The floor on the ground floor is decorated like a similar shape and pattern of cloth by using various colors of plywood, and is classic yet each color naturally overlaps. Moreover, the entire wall of one side is opened with window for the nature to look like a picture, and it creates new landscape each season as the space itself becomes the frame. Also in the main gallery building which can be accessed through the passageway on the ground floor, the sense of space is maximized as floors and ceilings are finished with glass. In this space, three tables at different height and shelves connecting inside and outside balance stuffy feeling of a small area. In particular, the red stairs presents mysterious and intense atmosphere at night like the light coming down from the spaceship, and the table that seems like floating in the air and works of the artist which can be seen upon entering into the interior through this bring another dreamy feeling. The space composed of mirror and window on one side of wall forms various spatial atmospheres by creating obscure space division. Other existing buildings and container structures are connected through the passageway, and this passageway is also used as function of shelf. .
Design Team : YOON SPACE . Rita-kim / SP R&D. Park Jung-su
Location : 247Jiseul-ri,Gakbuk-myeon,Cheongdo-gun,Gyeongsangbuk-do, Korea
Function : Gallery
Finish : Floor/Plywood, Epoxy , Wal/Wallpaper, Mirror, Glass , Ceiling/Wallpaper,Mirror
客服
消息
收藏
下载
最近

































