查看完整案例


收藏

下载

翻译
Architect:Felix Claus Dick van Wageningen Architecten
Location:Wageningen, Netherlands
Project Year:2011
Category:Universities
Stories By:Felix Claus Dick van Wageningen Architecten;ARUP
The Netherlands Institute of Ecology, (NIOO-KNAW), studies the effect of nature in all its many forms. It is, therefore, only fitting that ecological processes and the dynamics of nature themselves influenced the design and construction of their new premises. The principal ambition was to implement the most sustainable research institute in the world based on the cradle-to-cradle philosophy.
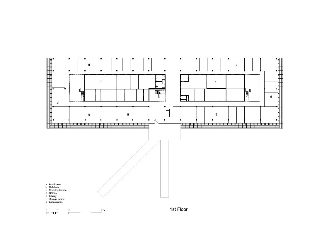
The Netherlands Institute of Ecology is situated near the campus of Wageningen University, but falls under the aegis of the Royal Netherlands Academy of Arts and Sciences. The institute comprises a main building with laboratories, offices, a restaurant and an auditorium, and a series of separate buildings for botanical and zoological research. The compact site also contains test beds and ponds.
The main building has three sections. The laboratories are situated at the front behind a closed glass façade to enable researchers to make optimal use of the daylight. The continuous canopies afford protection from unwanted sunlight. At the heart of the building are the areas for facilities that do not require any daylight. At the rear are the offices with windows that can be opened and give a view of the grounds. The central zone contains three light wells that allow daylight to penetrate into the depths of the building.
The building incorporates the latest technology in the field of energy generation, sustainable energy use, selection of materials and CO2 emissions. Efforts towards energy efficiency cover two areas: reducing consumption and sustainable production, both of which lead to a reduction in CO2 emissions. The design and choice of materials exude sustainability.
The building is made from renewable raw materials and economically produced without any harmful emissions. The hull is made of durable concrete without any artificial additives and no sealant, solvents or such like were used in the process. Used are products that carry quality marks such as FSC and PVC-free certified materials. Materials such as wood, glass, steel, flax, ground limestone and granular debris creates a streamlined building with an open and natural appearance.
Prices:
FIABCI Prix d’Excellence The Netherlands 2012 – first prize (category: Sustainable Development)
European Union Prize for Contemporary Architecture-Mies van der Rohe Award 2013 – nomination
Gouden Piramide 2012 – first prize
Houtarchitectuurprijs 2012 – first prize
Building Award 2013 – first prize
The Netherlands Institute of Ecology (NIOO-KNAW) studies all aspects of nature. Sustainability and ecology are key themes in the Claus and Kaan design for the institute's new building, which is also piloting a high-temperature ground source heating system.
Arup was responsible for structural engineering, including carrying out a study on the efficiency and sustainability of construction materials.
A concrete skeleton is used as part of the building services concept. The concrete was made as sustainable as possible by using concrete rubble as aggregate and incorporating granulated blast-furnace materials into the mix.
The design avoided load-bearing walls in order to maximise open floor space. Instead, a deep floor with an activated concrete core was chosen for the main building and stability achieved through stairwells and fire compartments.
The site includes offices, laboratories and support facilities such as greenhouses, aviaries, chemical and gas storage, a lake and bicycle parks. The total floor area is 10,000m2.
The project won the Building Award 2013. The jury called the architectural expression 'powerful' and thought that the choices made towards sustainability are innovative.
NIOO-KNAW has also won the Golden Pyramid Award and the Timber Award.
▼项目更多图片
客服
消息
收藏
下载
最近





















