查看完整案例


收藏

下载

翻译
Architect:Claesson Koivisto Rune
Location:Matsumoto, Japan; | ;
Category:Shops;Showrooms;Bars
The Ceramika showroom is located in Matsumoto in the mountainous Nagano Prefecture, some 200 km northwest of Tokyo. Matsumoto is not a very big city but it is a centre of traditional crafts, such as wood, lacquerware and fabric. Oddly perhaps then that the cups and plates and bowls at Ceramika are European and not Japanese. But this is what modern Japan is about. Opened up to the world while never deviating from the very strong Japaneses heritage of aesthetics and quality.
In line with these principles, one may assume, was the commission to design the Ceramika flagship store given to the Swedish architects Claesson Koivisto Rune – undeniably Scandinavians, but well accustomed to Japan. Ceramika is represented with shops in every major city throughout Japan and through mail order and online business, but Matsumoto is the home town.
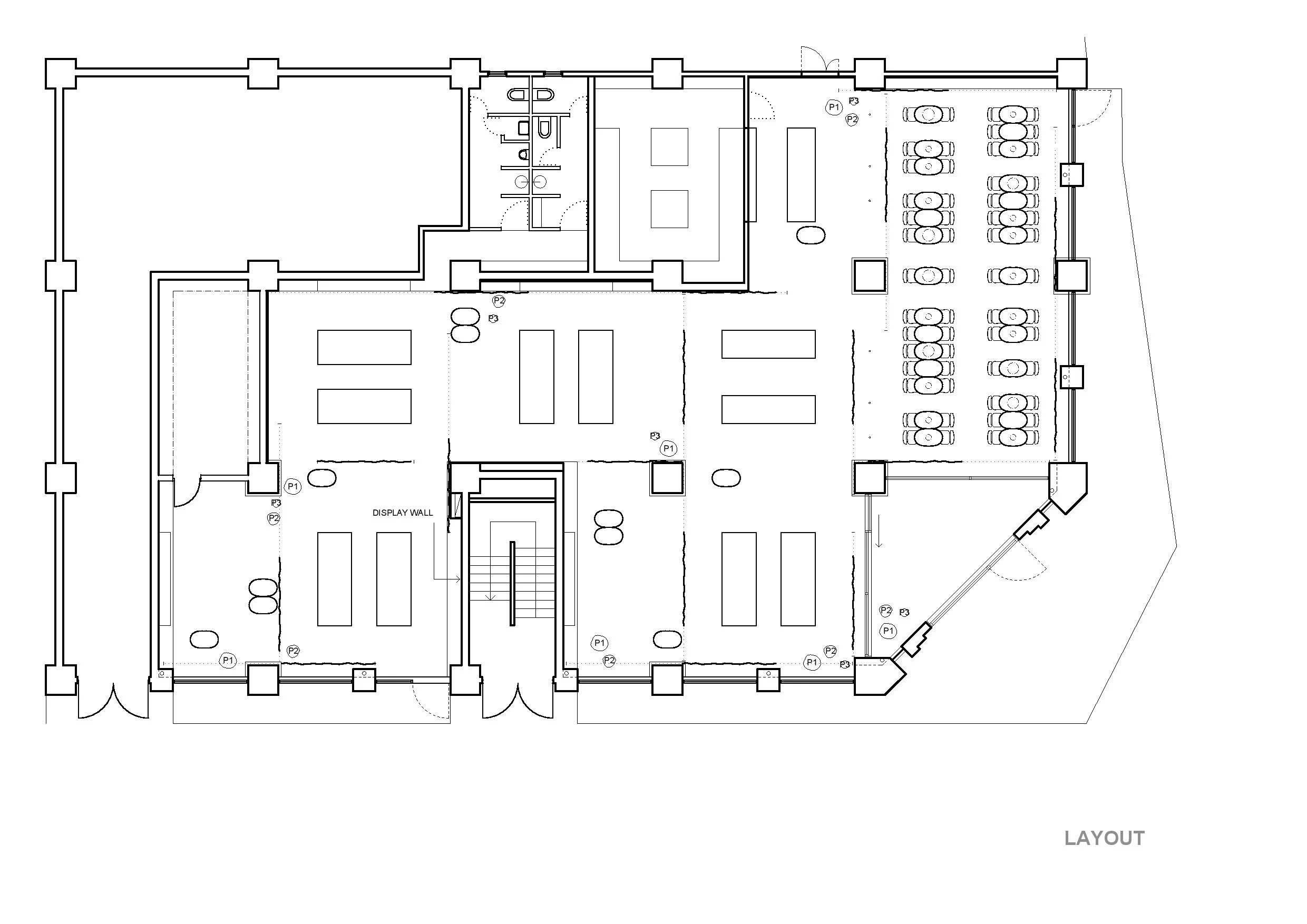
The Ceramika showroom is located in the city centre in a former City Hall building along the Matsumoto river. The space was completely stripped and the new interior is deliberately simple but with meticulously refined details. The layout is on a strict repetitive grid.
The colours and materials of the interior were chosen to harmonise with the porcelain which is mostly blue and white.
The project was a fruitful collaboration between the architect and the client. The client and owner of the Ceramika showroom, Mr. Hiroshi Arai, took a personal pride in attending to the quality and execution of every detail in the project.
The wood furniture was designed by Claesson Koivisto Rune and manufactured by carpenter master Hara-san. This made it possible to use smaller proportions and have a much higher degree of refinement, than usually in a project like this. (And making Mr. Arai's quality control position not a too burdensome one.)
Many of the pieces in the project was designed especially by Claesson Koivisto Rune and manufactured locally in Japan. Such as the display furniture, tables and clothes hangers. Other pieces also designed by Claesson Koivisto Rune were produced by manufacturers such as Almedahls, David design, Tacchini, and Wästberg.
The aim was to create a space which was strict, yet humble. As an enhancing frame for the ceramic objects at display (and a section of illustrated children's books from around the world!). And – last but not least – the small cafe with both indoors and outdoors seating.
▼项目更多图片
客服
消息
收藏
下载
最近


























