查看完整案例

收藏

下载

翻译
Firm: MASS OPERATIONS
Type: Commercial › Office
STATUS: Built
YEAR: 2015
SIZE: 1000 sqft - 3000 sqft
BUDGET: $50K - 100K
The interior design was developed for a Singapore based Property Investment firm, which was looking to create their own “boutique space” in Hong Kong that could reflect both their esthetics and values as well as their new office location.
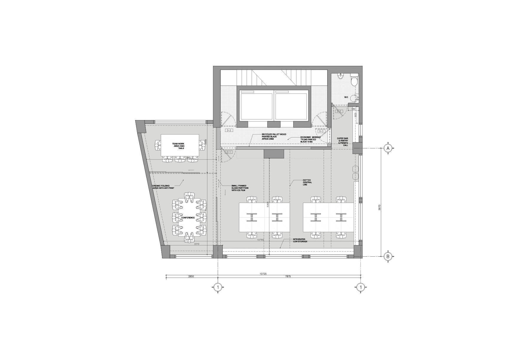
Designed around an open working area for a small team of 4, expandable into 12 working spaces, the space is designed with flexibility in mind solved by full height sliding partitions which can merge or isolate the meetings spaces with/from each other and the main working area.
The design follows a strategy of juxtaposing and contrasting rough, exposed, industrial elements & surfaces with refined objects. The layers of previous tenants are peeled away revealing the original concrete of the structural beams, pillars and floor. In contrast, as refined objects pristine Donald judd inspired tables with cantilevering details finished in high-gloss white are introduced.
In a playful way, we continue the peeling away of layers, focusing on bringing the exterior -Hong Kong- into the interior. The core wall is metaphorically removed and an impression of the city’s most prominent real estate points are depicted along the open working room wall, in white and green mosaic alluding to Hong Kong´s iconic mass transit system, the MTR.
客服
消息
收藏
下载
最近



















