查看完整案例


收藏

下载

翻译
Firm: Barcode Architects
Type: Commercial › Office
STATUS: Concept
SIZE: 300,000 sqft - 500,000 sqft
Barcode Architects and Tchoban Voss Architekten have created the winning proposal for the prestigious design competition for the new Dresden City Headquarters. The 34,000m2 'Verwaltungszentrum' is situated on a prominent inner city location and will be part of a larger urban transformation of the Ferdinandplatz.
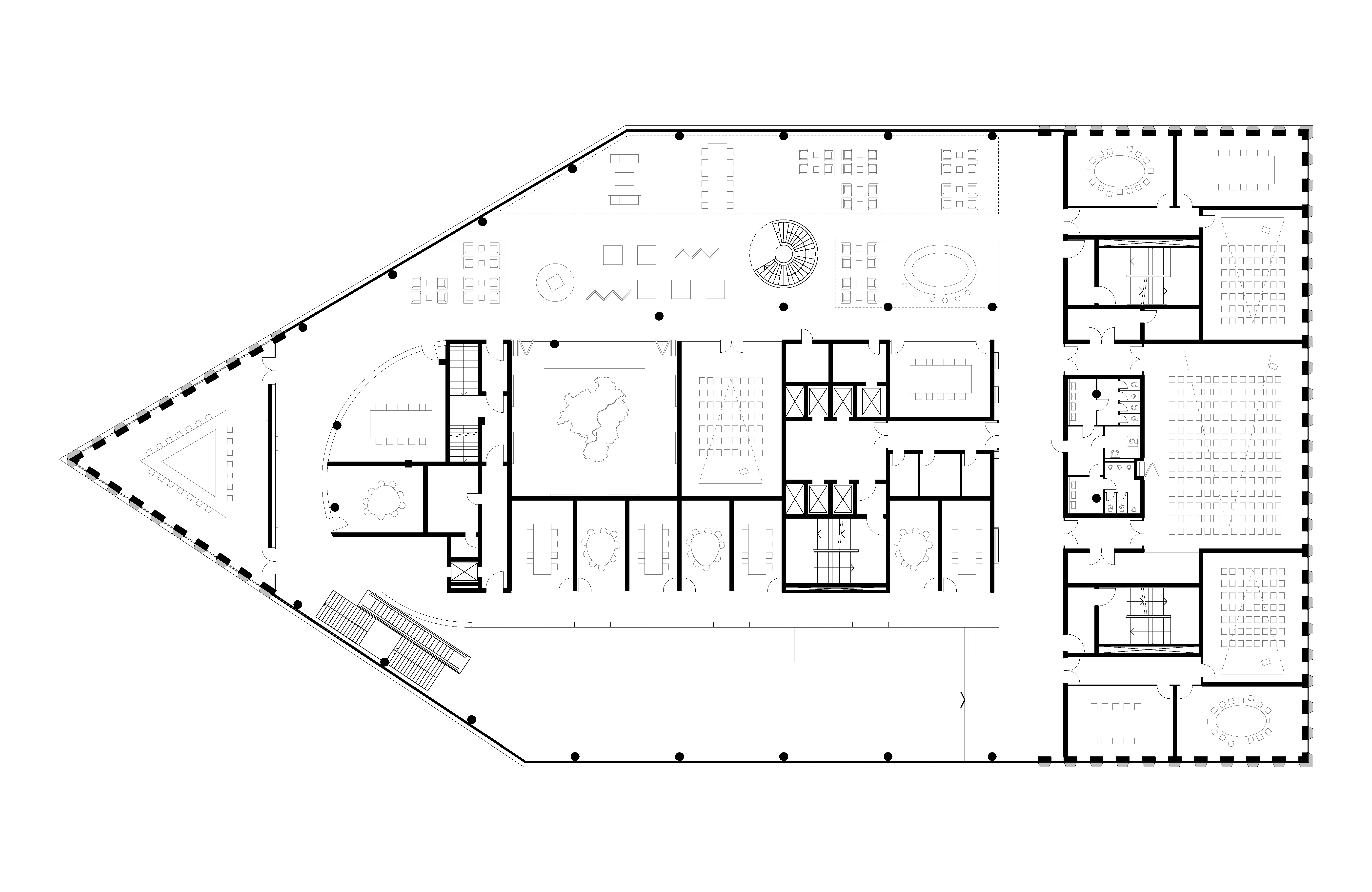
The Dresden City Headquarters has an inviting, all-sided character, with three urban windows carved from the volume. The opening at the Ferdinandplatz establishes a strong relation with the square while the window at the northside provides a unique panorama and connects to the monumental City Hall. A lifted green patio faces the Grosser Garten and reflects the green ambitions of the city.
From the Ferdinandplatz, citizens enter the building through an inviting city foyer. This open space will be a place for public interaction and accommodates the main reception area, the restaurant, and different public facilities. On both sides of the entrance two generous staircases lead up to the first floor. One staircase forms a large presentation podium — or the ‘agora’ — where debates can be organized and projects can be presented with a view over the Ferdinandplatz. The first floor level holds the public conference center and functions as a living room for civil servants and the public, against the backdrop of the historic Rathaus. On the upper floors, the office spaces are cleverly organized around two open patio gardens enclosing a central core, which facilitates short functional relations between employees and provides a clear orientation.
The two courtyards function as the building’s green lungs and ensure pleasant daylight conditions and a natural, healthy working environment, across all office floors. The eastern patio opens to the St. Petersburgerstrasse as a lifted garden and can be used by employees for a moment to catch some air, or an informal meeting overlooking the city.
The building has a characteristic, three-layered façade buildup that fits the local architectural values and simultaneously adds a pleasant human scale to the whole. The natural stone façade mediates between the identity of the historical city center and the contemporary ambitions of the city. Floor-to-ceiling windows unveil the warm, wooden interiors and large green walls to the outside world. The darker crown visually reduces the height of the volume. The total result is a carefully embedded, but all-round expressive and transparent environment for the Dresden citizens and their government.
客服
消息
收藏
下载
最近














