查看完整案例


收藏

下载

翻译
Firm: dkstudio architects inc.
Type: Commercial › Office Retail Showroom
STATUS: Built
YEAR: 2020
Showroom or office? Creative studio or fashion runway? VIP event space or warehouse? All of the above - either, and, or; blending, blurring, separating of functions - in a 1000 square foot box. Studio Runway is a flexible multi-use space for an established yet rising Canadian fashion designer, located in a curious interstitial zone in Toronto's Eaton Centre - literally in between the retail commotion of the public mall and the vertically driven corporate office tower above.
It is fitting that the client and architect met at a conference talk on cross-pollination of design disciplines, ideas and strategies. They discovered a simpatico relationship: a synergy of fashion and architecture; brand and design.
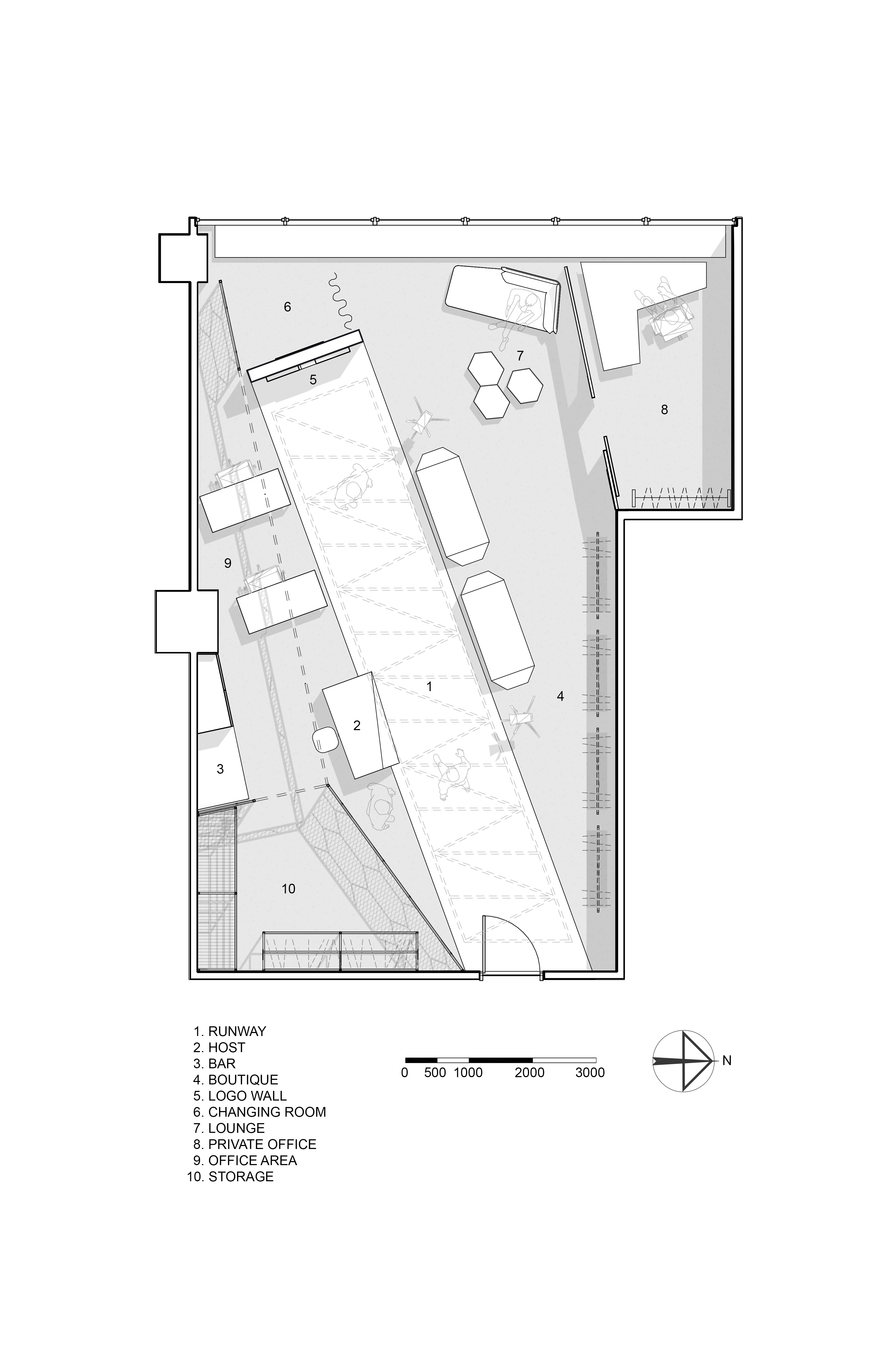
This is a showroom without a traditional storefront and relies on the client’s reputation, clever marketing, and a wow factor when the door from the undistinguished workplace hallway is opened. All visitors enter and step right onto the glossy white runway, punctuated at the terminus with an oversized 3-dimensional logo. This striking logo wall forms the backdrop for the stage. The changing room is tucked “backstage”. Shoppers try on clothes and take the stage, walk the catwalk, snap a selfie - emboldened by the expert fit of luxurious Italian fabrics and the inherent nature of performance on the runway bestowing confidence.
The design for Studio Runway straddles the gauntlet between high fashion and urban industrial minimalism. A stark black and white palette recalls the craving for Chiaroscuro - the play of light and shadow enveloping the spaces and designer apparel. The urban presence is felt with the exposed concrete floor, raw exposed ceilings, and street-style metal mesh partitions. Angles and geometries add dynamism to the space and echo the bold hexagonal form of the brand logo. The zigzag lighting at the ceiling reflects in the white epoxy runway, like the stitching on an Italian tuxedo lapel or tailored shirt sleeve. Other track lighting throughout gives freedom for customized mood scenes - whether for a fashion shoot, private shopping experience, or creative design charette.
Almost everything is moveable, allowing for the flexibility in use. Almost everything is dismantlable, including the logo wall, ready to move to a pop up store or the next studio. The design reflects a strategic economy of means, with optimism and anticipation of near future expansion and growth, and a desire to honour timeless design and minimize waste. During the covid pandemic era and with the precarious future of previously coveted high fashion runway shows, this Studio Runway came not a moment too soon.
客服
消息
收藏
下载
最近












