查看完整案例


收藏

下载

翻译
Firm: UA Lab (Urban Architectural Collaborative)
Type: Commercial › Office
STATUS: Built
YEAR: 2020
SIZE: 0 sqft - 1000 sqft
BUDGET: $0 - 10K
General Information
Project name: Placid Hues – Studio UA Lab (Interior Designing of an Office)
Architecture Firm: UA Lab (Urban Architectural Collaborative)
Lead Architects: Vipuja Parmar, Krishnakant Parmar
Instagram: @ualab.in
Additional credits
Write-up: Vipuja Parmar
Completion Year: 2020
Gross Built Area: 34.2 square mt
Project location: Ahmedabad, India
Carpentry work: Kailash Mistry
Media Provider
Photo credits: Maulik Patel / Inclined Studio
Photographer Instagram: @inclined_studio
Project Description
Inspiration for the Design
Our design approach is always focused on the basic questions of scale, proportions, character, spaciousness, daylight, ventilation, and the climatic comfort in the built environment. These aspects inform our conceptual positions and guide our design process. We hold equal strength in the detail design. Choice of different materials is rooted in the basic understanding of ”how” these materials will come together. Details are meticulously designed guided by the qualities and character of the material.
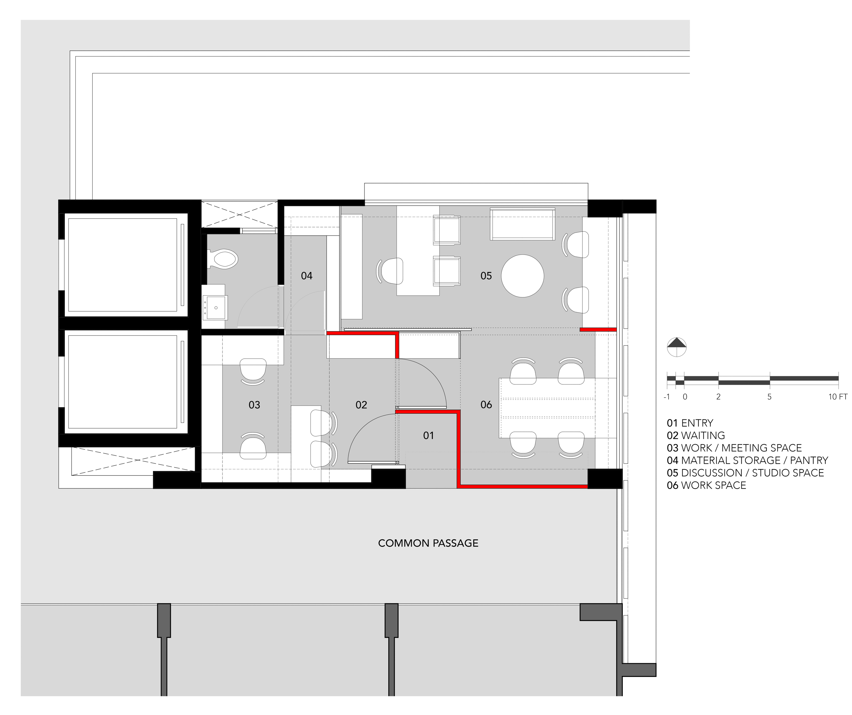
Placid Hues is an extension of our studio space conceptually. The later studio space was designed as a part of Work and Living together. The key idea was to create an Open plan with a singular monolithic space. That could be easily divided and subdivided according to the functional requirements. We had used single material to enhance the monolithic character of the entire space.
Design Process
The core design idea for the Studio extension remains the same that is to create an Open plan to achieve a singular monolithic space. We wanted a Singular space to enhance the interaction while working. A space layout holding/enveloping a singular space is designed.
For the Placid Hues we wanted a space that is Gentle, Fresh and Energising. The language of Cuboids and Planes is used to create and envelope spaces. A single material has been used for the Cuboids and the Planes. This gives a Monolithic character to the singular space. The cuboids are modified into creating of storage units. Each of these units are further designed as a series of stacked up cuboids to give a singular character to the designed unit and hence the space. The planes are modified into clear glass sliders, fixed fluted glass doors and tag boards. They are designed as providing Neutral background to the space. The ceiling and the floor spaces are consciously kept continuous. The cuboids and the planes are kept free at the top and the bottom to allow the Ceiling space and the Floor space to remain continuous and uninterrupted.
The Studio has a larger opening towards the North side. There is abundance natural light throughout the day. All the surfaces of the cuboids and the planes are kept plain with neutral tones. The plain surface bounces back maximum light allowing the space to gleam. Each and every part of the studio looks soaked in Natural light throughout the day. It makes the Studio space look placid making it feel fresh and energising.
Spatially the minimalistic attitude towards the use of single material combined with an open space layout helps us to achieve a desired tranquil studio space.
客服
消息
收藏
下载
最近






























