查看完整案例


收藏

下载

翻译
Firm: REC Partners
Type: Commercial › Office
STATUS: Built
YEAR: 2019
SIZE: 3000 sqft - 5000 sqft
BUDGET: $100K - 500K
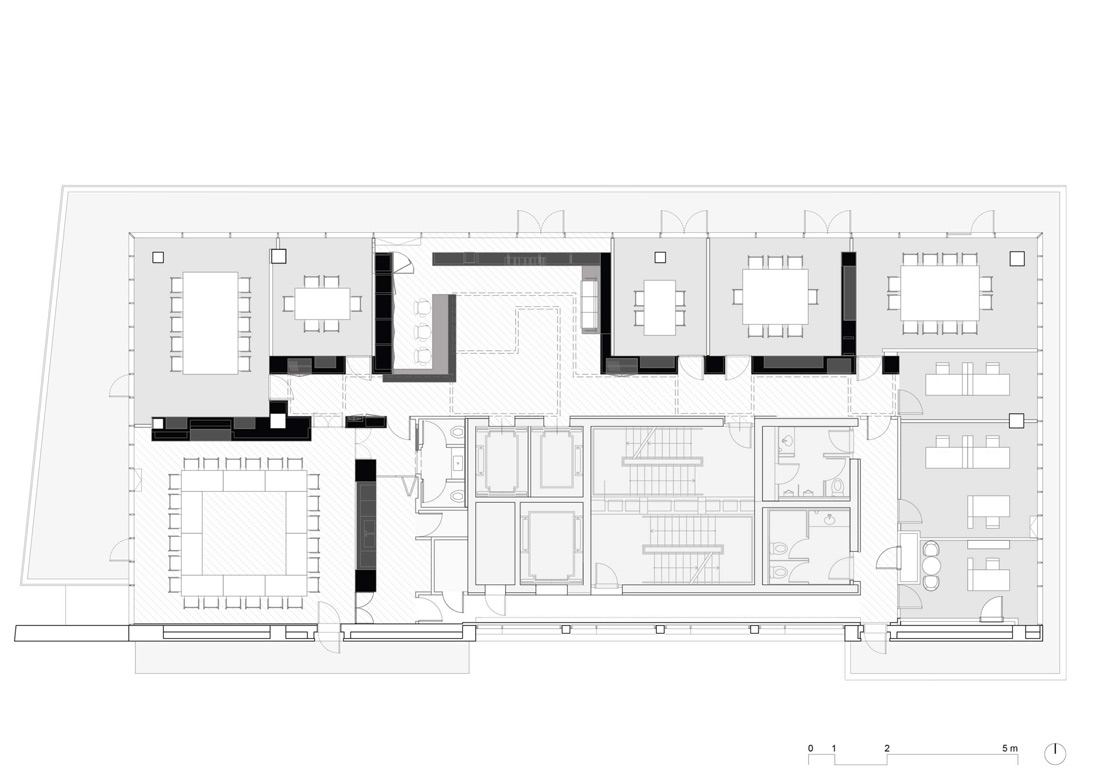
The project is born from the wish of the client, the Bucharest branch of an important European law firm, to create a high-quality space that serves as an interface between it and its clients. Its aim was to present itself through a functional, carefully designed space with a strong but discreet identity. The downtown Bucharest, 600 square-meters office-building floor has been completely refurbished to accommodate its new function. As the elevator opens, the visitor finds himself in the middle of an open space with a spectacular view of Bucharest. In the center of the open space stays the concrete-made logo of the client. The project’s spine is the ‘Chinese Wall’ – a structure that passes from vertical to horizontal elements in an elegant, continuous movement to change function from enclosure of the private meeting rooms to reception and back. Its deep grey-blue lacquered milled MDF gives identity to the whole space, in contrast with the white walls and the small mustard-yellow accents of the seating and graphic elements. The Chinese Wall is enhanced by the ‘Light Snake’, a custom-made lighting system that underlines the public areas.
客服
消息
收藏
下载
最近











