查看完整案例


收藏

下载

翻译
Firm: OB|A Studio di Architettura
Type: Commercial › Office Retail
STATUS: Built
YEAR: 2015
SIZE: 5000 sqft - 10,000 sqft
BUDGET: $5M - 10M
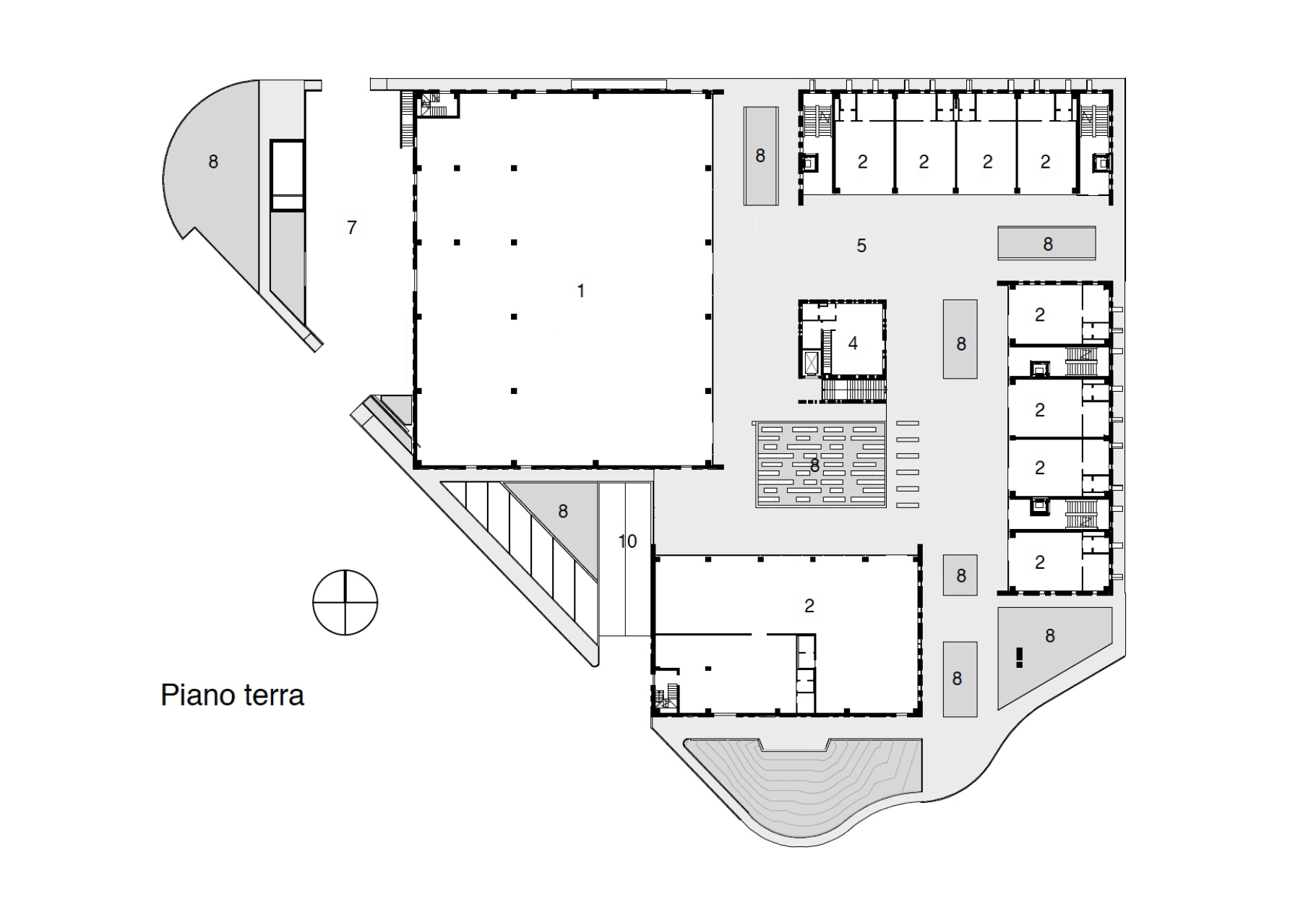
Il complesso Direzionale-Commerciale denominato "PASSEGGERI" è situato nell'area periferica della Città di Avigliana in provincia di Torino.Il progetto è costituito da 5 corpi di fabbrica con dimensioni e destinazioni d'uso differenti, la cui disposizione planimetrica individua al centro del lotto una piazza pedonale con funzione di passaggio e di area comune di incontro.Due palazzine a 3 piani fuori terra, con destinazione COMMERCIALE al piano terra e UFFICI ai piani superiori.
Due fabbricati a un solo piano fuori terra, ospitante uno un supermercato e l’altro un esercizio commerciale
Il Bar al centro della piazza, rivestito in lega di alluminio di colore bianco, funge da connessione fra l’area a parcheggi interrata e gli altri fabbricati. Per gli altri fabbricati sono presenti due diverse tipologie di finitura. I prospetti "a perimetro" sono rivestiti con lastre di cotto nei colori delle terre ed a cromaticità uniforme, alternati con fasce di facciata continua verticale per le palazzine e con fasce in lamiera di alluminio per i fabbricati commerciali. Si definisce così una pelle esterna con trama tipo codice a barre. I prospetti interni , lato piazza, sono interamente vetrati con struttura portante del serramento in alluminio.
Tutti i fabbricati sono dotati al piano terra di pensiline in acciaio e vetro e ai piani superiori di schermature solari formate da elementi frangisole in alluminio.
Le coperture dei fabbricati come le faldalerie sono realizzate in in alluminio. Completano l'intervento le aree esterne antistanti i fabbricati, assoggettate a verde e parcheggio pubblico
客服
消息
收藏
下载
最近





















