查看完整案例


收藏

下载

翻译
Firm: S.PIN ARCHITECT
Type: Commercial › Retail Shopping Mall
STATUS: Concept
HISTORY
Centuries ago, Minangkabau settlers from west Sumatra who made their new home at the state of Negeri Sembilan at Peninsular Malaysia, brought their style of architecture. The sweeping, multi-tiered buffalo horn architecture is the most distinguishing feature of the Minangkabau and was used prominently in the state's capital, Seremban.
During the colonial era, the British had also brought their tropic-colonial style verandah shop houses to Seremban.
Although these two diverse but similarly tropical-weather responsive vernacular architectures enrich the townscape, they have never been married in a single building.
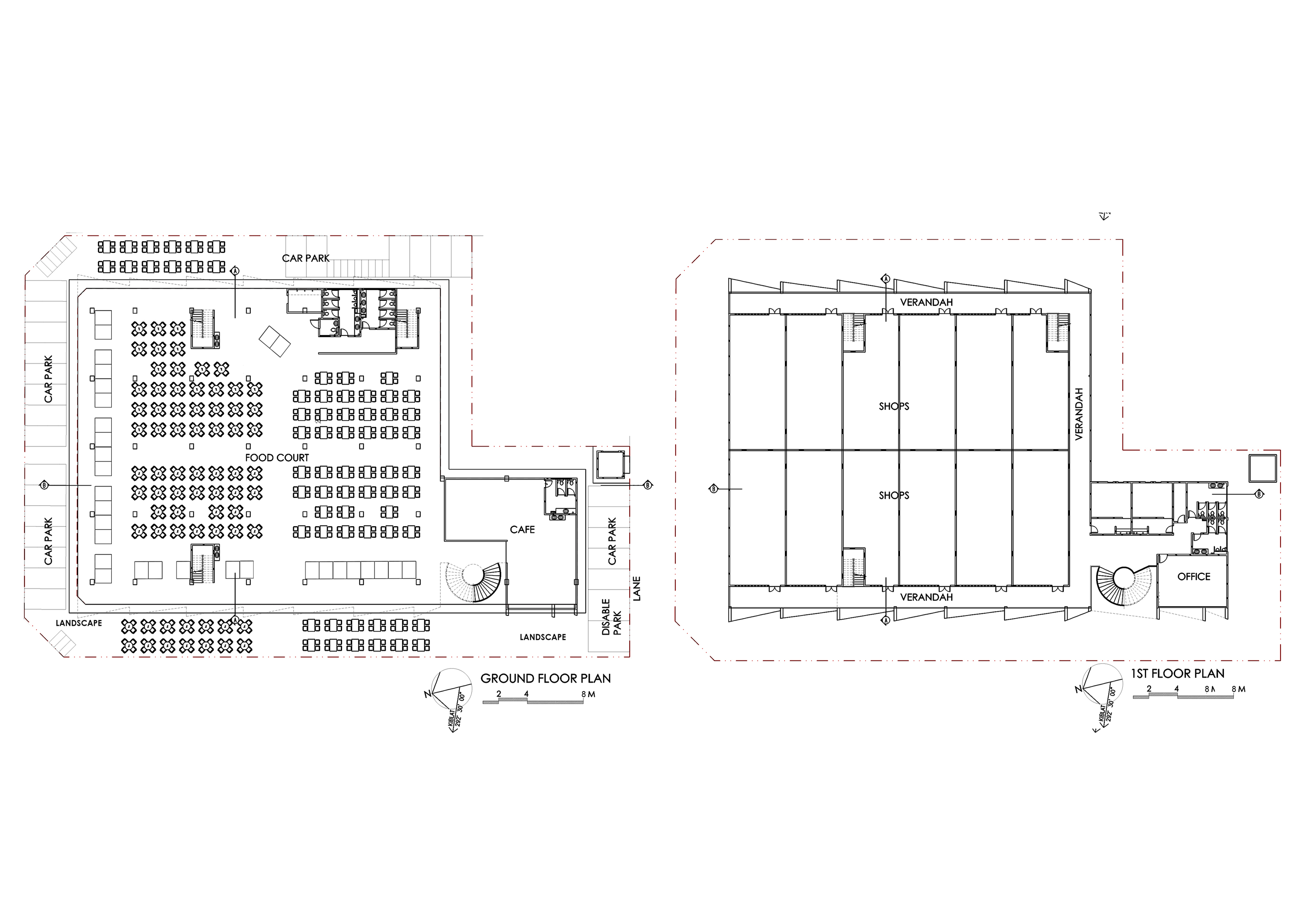
THE BUILDING & THE CONTEXT
The proposed 4000m2 commercial building consists of a food court & shops. The site is located at Seremban 2, a modern planned satellite town of Seremban, which features predominantly banal modern architecture. The site is surrounded by shops, restaurants and a highway.
SEREMBAN VS SEREMBAN 2
The design seeks to reconcile the imbalance between the culturally & historically unique Seremban and the modern but banal Seremban 2, which is completely devoided of traces of Minangkabau or colonial architecture. To avoid the direct mimicry, we extract & marry the Minangkabau & colonial shop houses architecture elements, with sense of contemporary relevance.
We maintain the horn silhouette on the building body instead of the roof in order to add functionality role to the mere decorative role of the horn shape. The silhouette morphs into tropical verandah style spaces & also the ground floor ceiling profile. Taking inspiration from 'kerawang', fretwork above windows for ventilation in Minangkabau and the ventilation opening above windows in colonial shop houses, we create louvres at the verandah to protect from tropical weather, but let the light & air filter through. 60% of the building is naturally ventilated.
We envisage this Minangkabau-lonial hybrid will add cultural-depth to Seremban 2's modern way of life.
客服
消息
收藏
下载
最近













