查看完整案例


收藏

下载

翻译
Architect:Andrés Jaque / Office for Political Innovation
Location:Madrid, Spain; | ;
Project Year:2007
Category:Exhibitions;Apartments;Private Houses
Urbanism has been conceived and is put into practice as a task in which the first decisions are made on a large scale. But as it gradually descends, it reaches that point at which human interaction is defined, so the degrees of freedom regarding design have been extremely reduced up to now.
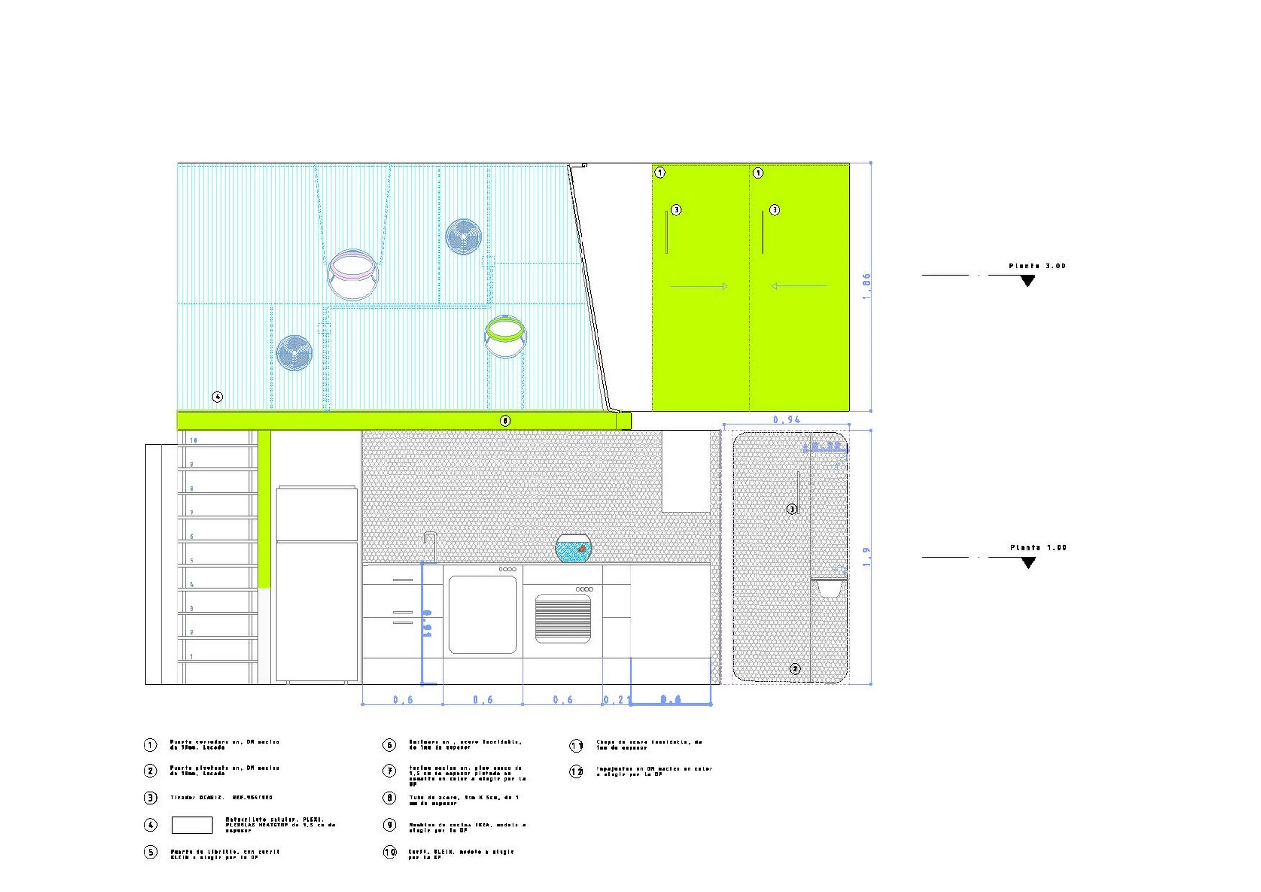
TUPPER HOME is the first project of inverted urbanism which stems from the fact that the repercussion of land value on the end price becomes one of the most important entries when determining the end price: a smaller surface area means a lower mortgage, which in turn means a greater individual freedom to make decisions affecting one’s own life.
Demonstrative marketing techniques are used here to bring about a gradual horizontal enrollment among people who experiment with the transformation of their house and, through association, belong to collective experiments creating patterns of trust and affection. TUPPER HOME is, in sum, a repertoire of architectural component that allow, though combination, to reconstruct existing dwellings, according to the principle that a greater technological range and an increase in design quality offer equivalent benefits in smaller dwellings.
▼项目更多图片
客服
消息
收藏
下载
最近




















