查看完整案例


收藏

下载
© Miguel de Guzmán y Rocío Romero. Imagen Subliminal
(Miguel de Guzmán y Rocío Romero)。意象阈下
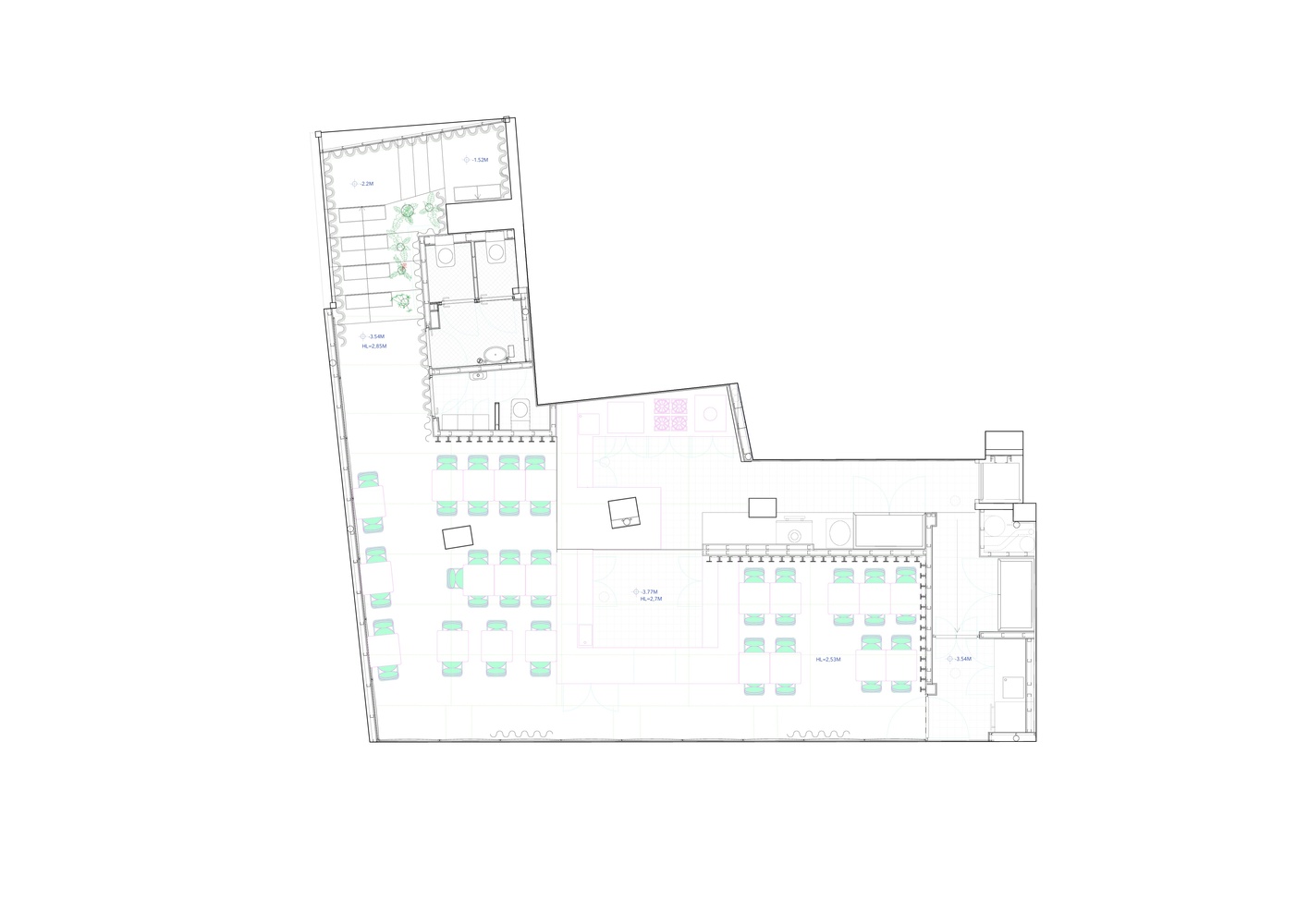
架构师提供的文本描述。这个项目将位于马德里地理中心的Gutierrez Soto最重要建筑的前1946年车库改造成一个面包店、咖啡馆和实验餐厅的集合。建筑物的原有体积和结构被恢复,留下了一个5米高的空间,街道上有巨大的开口。
Text description provided by the architects. This project transforms the former 1946 garage of Gutierrez Soto’s most significant building, located in the geographical center of Madrid, into an assembly of bakery, café and experimental restaurant. The original volume and structure of the building is recovered, leaving a 5-meter-high space with massive openings onto the streets.
“[变性人]扎哈拉是沙漠、巧合和咖啡馆的混合体”Pedro Almodóvar,La Mala Education ación
“[Transgender] Zahara is a mix of desert, coincidence and cafetería” Pedro Almodóvar, La mala educación
© Miguel de Guzmán y Rocío Romero. Imagen Subliminal
(Miguel de Guzmán y Rocío Romero)。意象阈下
自2008年以来,马德里的建筑遭受了外观简朴的液压瓷砖和红色陶瓷砖的霸主地位,这些瓷砖被不加批判地认为是以古老和独立的商业为导向的,但矛盾的是,它们已经成为临时的、低工资的劳动力和企业特许经营的工具,并对这座城市进行了不引人注意的入侵。在九年内,这一进程被边缘化,几乎灭绝了大理石、皮革、镀金金属和稀有木材镶板工艺的整个物质和人类环境,自1960年代以来,这些工艺一直是马德里咖啡馆网络发展的社会基础:光亮、舒适的地方,提供匿名服务和这种服务,以平等和标准的礼节提供给每个人,很快就把它们变成了女性和LGBTQ社区历史上找到了男性酒吧的替代物的空间。这个项目是一个战略的结果,与少数的超级合格大理石制造商,皮革装潢,金属弯折机和镀铬板,在马德里自助餐厅的物质生产背后,稀有木材小组成员和技工清漆师更进一步:将餐厅的反紧缩异见空间重新引入城市生态系统,作为对陶瓷企业霸权的抵制。
Since 2008, architecture in Madrid has suffered the hegemony of austere-looking hydraulic tiles and red ceramic bricks, which are uncritically perceived as old and independent-business oriented, but which paradoxically have become a tool of temporary, low-wage-based labor and corporative franchises and have conducted an unnoticed invasion of the city. Within nine years, this process has marginalized and set close to extinction the whole material and human context of marble, leather, gold-chrome-plated metal, and rare woods paneling craftwork that has, since the 1960s, been the social base in the development of the network of Madrid’s cafeterías: shining, comfortable places where anonymous service is provided and where this service, delivered with equal and standardized courtesy to everyone, has quickly turned them into spaces where women and LGBTQ communities had historically found an alternative to macho bars. This project is the result of a strategy to work with a small number of super-qualified marble manufacturers, leather upholsterers, metal benders and chrome-platers, rare-wood panelers and artisan varnishers behind the material production of Madrid’s cafeterias by taking their capacities a step further: to reintroduce into the city’s ecosystem the counter-austerity dissident space of the cafeteria as a resistance to ceramic corporative hegemony.
© Miguel de Guzmán y Rocío Romero. Imagen Subliminal
(Miguel de Guzmán y Rocío Romero)。意象阈下
© Miguel de Guzmán y Rocío Romero. Imagen Subliminal
(Miguel de Guzmán y Rocío Romero)。意象阈下
银河系里一个大理石做的帐篷。利用超级大理石抵抗牵引的能力。
A marble-made tent in the galaxy. Taking advantage of supermarble’s capacities to resist traction.
在20世纪90年代和2000年代,诺维达小镇(瓦伦西亚)成为跨国流动稀有弹珠的中心。现在不活跃了,这个城镇聚集了大量的尘土飞扬的大理石、红玛瑙和来自世界各地的花岗岩,可以看作是紧缩前时代的考古学。而砖瓦和水工瓦片则充斥着虚假的真实性、地域性和虚假的地方主义;Novelda弹珠现在体现了一种令人耳目一新的偶然价值。这种无根据的大理石状态是由许多附在其上的技术所记录的,例如玻璃5和树脂补强、铰接式锚定系统,其目的是将大理石作为一种超级大理石,不仅能够抵抗压缩,而且还具有牵引力。在一个独特的工程挑战中,该项目通过创建一个超级大理石制造的独立帐篷,将这一能力发挥到了极限。帐篷容纳顾客的桌子,并允许其他用途(包括烹饪)组织在周围的C形外围。
In the 1990s and 2000s the tiny town of Novelda (Valencia) became the hub for a transnational flow of rare marbles. Now inactive, the town’s extensive pools of accumulated dusty marbles, onyx, and granites from around the world can be seen as an archeology of pre-austerity times. Whereas brick and hydraulic tiles are stock in a discourse of false authenticity, groundness and faked localism; Novelda marbles now embody a refreshingly contingent value. This ungroundness condition of the marbles is registered by a number of technologies attached to it, such as the glass fiver and resin reinforcements, articulated anchoring systems, intended to render marble as a sort of supermarble, capable not only of resisting compression but also traction. In what has been a unique engineering challenge, the project takes this capacity to its limits, by creating a supermarble-made self-standing tent. The tent accommodates the customers’ tables and allows other uses (including cooking) to being organized in a C-shaped periphery around it.
© Miguel de Guzmán y Rocío Romero. Imagen Subliminal
(Miguel de Guzmán y Rocío Romero)。意象阈下
Architects Andrés Jaque Architects
Location Calle de Hermosilla, 4, 28001 Madrid, Spain
Office for Political Innovation Laura Mora Vitoria, Roberto González García, Paola Pardo, Víctor Cano Ciborro, Nieves Calvo López, Marina Fernández Ramos, Marta Jarabo Devesa, Danay Kamdar, Pablo Maldonado, Solé Mallol, Valentina Marín, Flavio Martella, Víctor Nouman García, Larissa Reis, Isabel Sánchez del Campo, Belverence Tameau, Borja García Lázaro.
Landscaping Contractor Desert City and Los Peñotes
Project Year 2017
Photographs Miguel de Guzmán y Rocío Romero. Imagen Subliminal
Category Interiors Architecture
Manufacturers Loading...
客服
消息
收藏
下载
最近


































