查看完整案例


收藏

下载

翻译
Architect:FOS - FOUNDRY OF SPACE
Location:Bangkok, Thailand
Project Year:2015
Category:Apartments;Housing
Conceptualised by the character of its setting and the need for more green areas in today’s urban living, Condolette Pixel Sathorn is the result of the harmonisation between urban lifestyle and secluded green environment albeit it is located in the heart of Sathorn, Bangkok’s most vibrant CBD.
The concept of ‘PIXEL’ derives from the fact that today we, knowingly or not, live in ‘a pixel world’ in which many things we touch, watch, hear, download, share or have any kind of consumption is wholly or partially transcribed through the process of pixelation. This socio-economic assumption then inspires the architectural concept of the project in which the planning of the buildings, communal amenity area and facade design are strategically pixelated in order to serve aesthetic and environmental purposes.
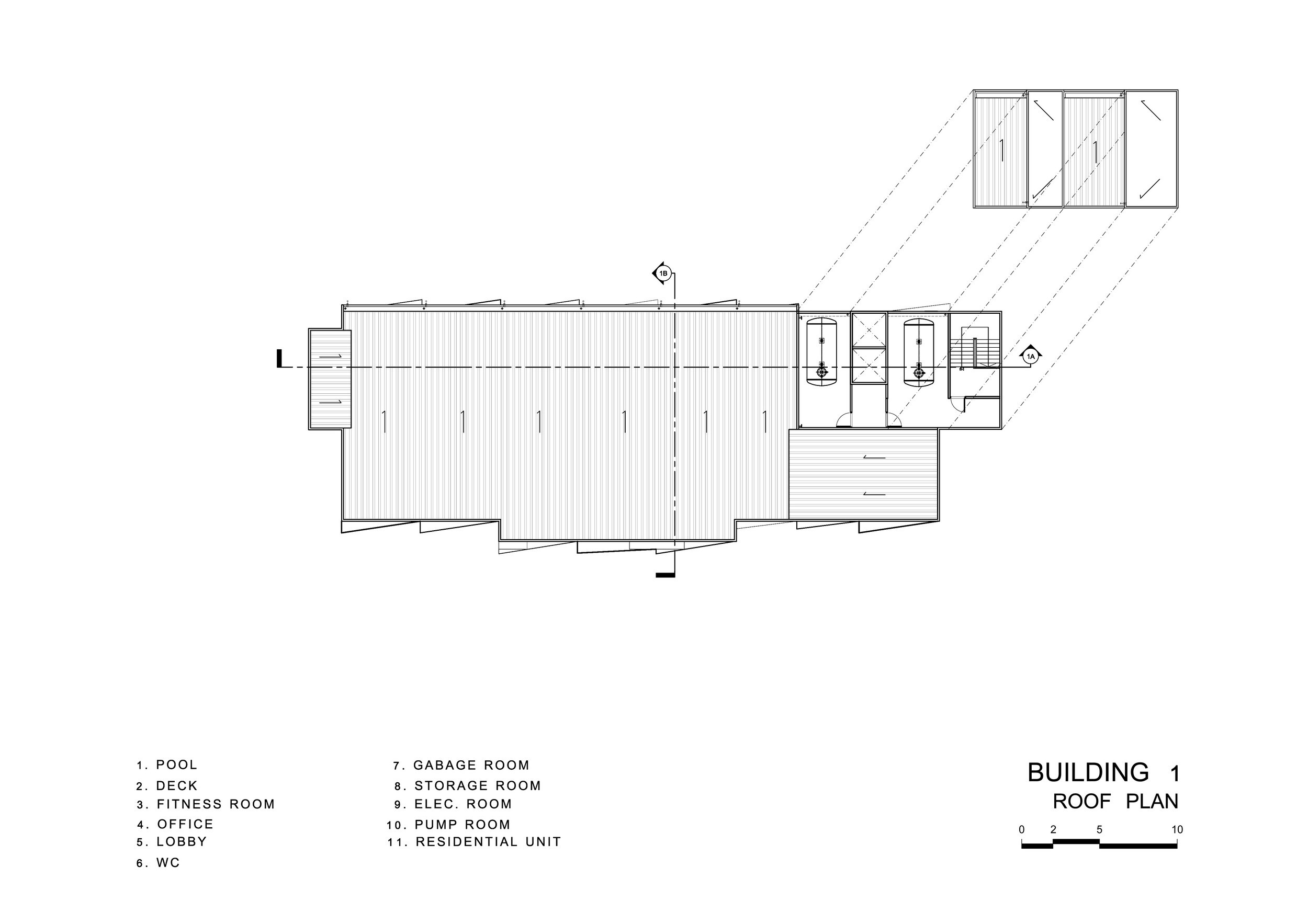
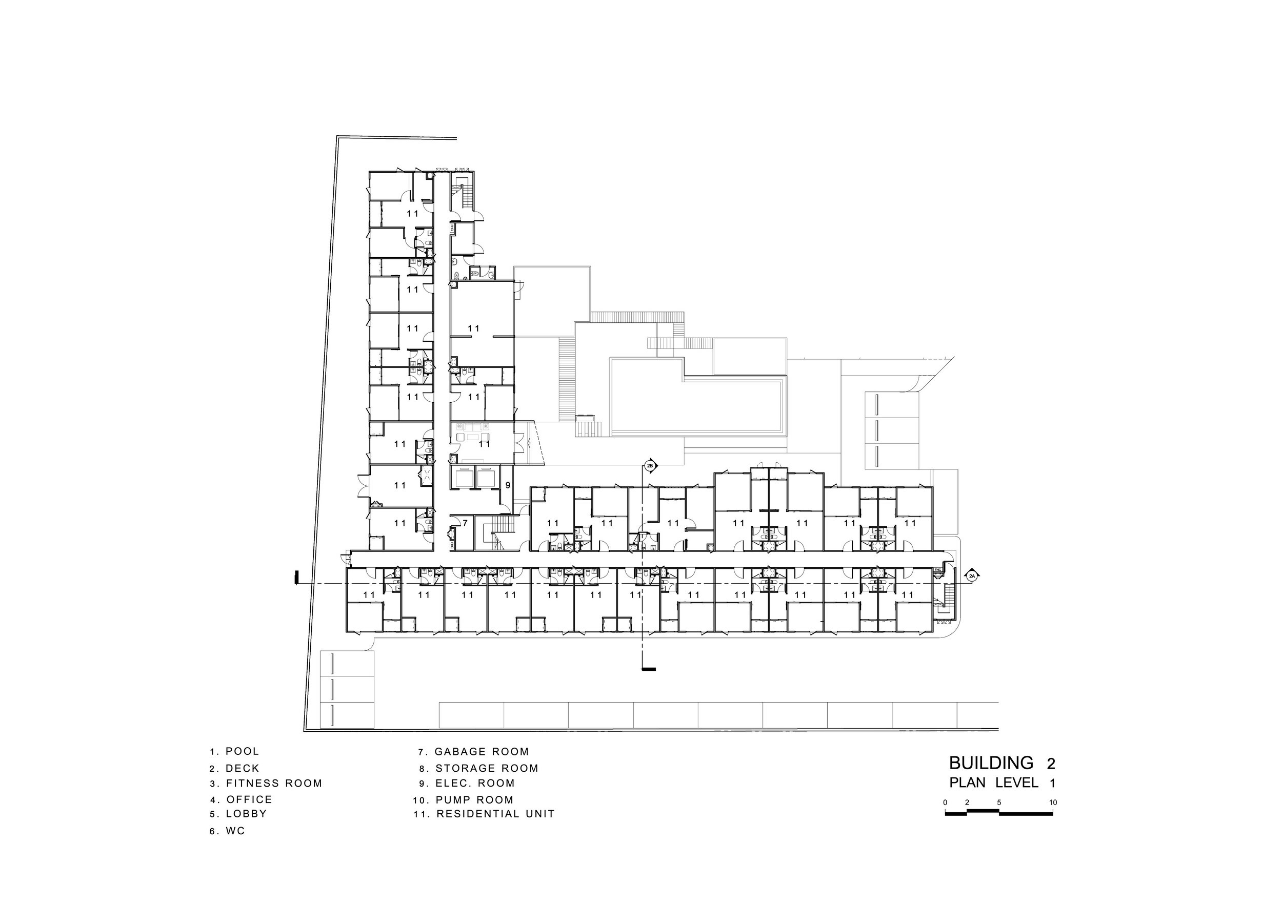
The project consists of two 8-storey residential buildings and a multi-storey car-park building. All three buildings are placed to encircle around a private courtyard in the middle of the site where common facilities such as swimming pools, gardens and a series of shallow ponds are located.
The ‘Pixel’ concept also plays a key role in the facade design of all the buildings. The solid sides of the residential buildings are made up of precast concrete panels with the pixel pattern. The protruding concrete pattern itself has three different depths in order to create the complexity of shadows on the facade, in which it also reduces heat gain from the sun. On the long facades, elevation outlines of certain units are three-dimensionally cantilevered out as shading elements in a diagonal shape. They are treated as such in accordance with the clear view from within the units looking down to the courtyard below.
The facade of the car-park building is also in line with the pixel concept by means of vertical garden. A series of randomly-placed pixels of creeper covers the entire frontage of its brutal concrete structure. Altogether, they create a truly livable environment in the midst of one of the most dynamic areas of the capital.
▼项目更多图片
客服
消息
收藏
下载
最近



































