查看完整案例


收藏

下载

翻译
Firm: FEI Architects
Type: Commercial › Shopping Mall
STATUS: Built
YEAR: 2018
SIZE: 10,000 sqft - 25,000 sqft
BUDGET: Undisclosed
Featuring a huge expanse of greenery surrounded by high-end residential developments, museums and concert halls, the Ersha Island is actually the central park of Guangzhou. However, according to its original planning in 1980's, all the developments on this island were targeted at foreign buyers and ordinary local citizens were even denied access to it, which demonstrates its superior location. In the beginning of 1990's, the government started to build a "Cultural Golden Coast" along its southern bank and a series of first-class art venues including the Guangdong Museum of Art and Xinghai Concert Hall emerged one after another on the scene. Now the Island has become synonym of "high-brow" in the eyes of Guangzhou people.
The Manlap Fong project is located at the last piece of land along the "Cultural Golden Coast". A private art foundation plans to make a "Mini-West Kowloon" here via self-financing, i.e., funding cultural and art activities through revenues from portfolio operation with a view to create a self-reliable and sustainable development model. When we were commissioned to take this project, I happened to live on the island and often took a walk along the southern bank in the evening. On one side of the road, there were fenced luxurious properties and museums with empty, dark expressions; while on the other side, there were "concerts" under the banyan trees, with the locals coming to enjoy the cool wind by the river and gathering around street singers.
It was exactly like what Allan B. Jocobs described in his book Great Streets: "Some streets are better than others: to be on, to do what you came to do." It may be lonely in daytime while when the evening approaches, all the hustle and bustle appear. "You go back to some streets more often not just because the things you do or have to do there. Maybe you focus a part of your life more on one street for reasons not economic or functional." A place you just want to go — this is Jocobs' “Great Street”. Manlap Fong locates exactly at the end of such a street. How to extend the scene of the street into the project? That's the first issue the architect was thinking about.
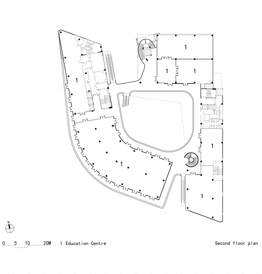
The second issue is to create a vibrant and coherent community in a neighborhood surrounded by blocks enclosed by fences. I think the property needs to have the function of "expiration and inspiration". Therefore, in the very beginning, we decided to replace the original plan of isolated singular buildings by a layout of covered passageways surrounding the courtyard while accommodating all kinds of functions such as exhibition, shopping, dining, office, leisure activities, performance show, etc. When the courtyard is open to the streets, it becomes a well-enclosed public urban space that integrates the surrounding buildings into an internally coherent community.
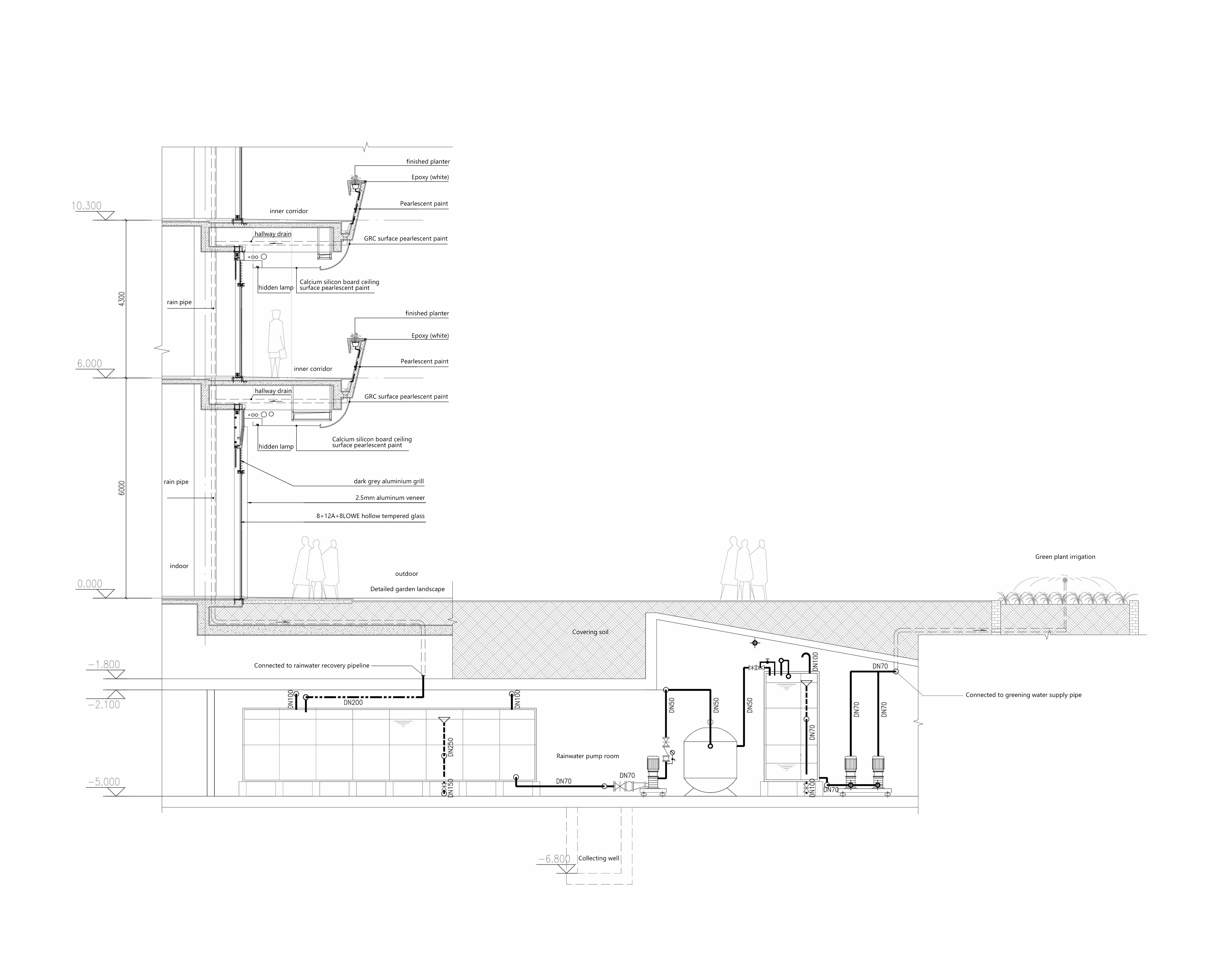
The third issue is about how to realize sustainable development. It is rather difficult for a private foundation to promote art for public good. Cost-effectiveness must be factored not only for construction but also on-going operation. Both eco-architecture and green architecture were still neologies at that time, while all the traditional buildings without modern technology but conform to "common sense" are warm in the winter and cool in the summer. In the south, the most effective way is to provide shade and ventilation. The layout with a courtyard (patio) tends to facilitate ventilation effectively. If the issue of sun screening is resolved at the same time, energy saving can be maximized.
Finally a solution based on common sense is figured out: on the southwest side of the building, a veranda gently climbs up to serve as shading system for this façade, which extends the “great street” all the way to the balcony where one could have bird’s view of the whole city: the Pearl River New Town against the rising sun in the east and the old downtown area with the setting sun as backdrop in the west. The original plan for the veranda is a mild slope with all functional spaces facing towards the inner courtyard. This would definitely endow the building with a stylish architectural look, but the “street” with its innate public nature will then be entirely isolated from the functional space and the courtyard, making it indistinguishable from all the other buildings nearby. When private space and public space are rigorously distinguished and their mergence denied, it would be difficult to build a vibrant community that encourages sharing.
Therefore we lay down the streets and arrange doorless open entrances to connect various floors, thus make the inner courtyard and veranda an extension of the town square and streets. In order to attract visitors to come up to the observation deck on the 5thfloor, various “view finders” are created on the verandas of each floor through horizontal forward and backward movements.
The views are sometimes panavision and sometimes borderless. The changing landscapes lead to a wandering two-way path between the urban scenes and the serene courtyard.
The 160 meter long curved veranda along the southwest side becomes the façade’s control language. Without the aluminium grates on the northwest corner, which is required by the property owner to shield equipment room, the overall main façade can be described as “designless”. In the end, various function spaces, such as exhibition hall and dinning venue, all show their unique features respectively within the control of the overall veranda framework – perhaps this is due to the designer’s experience of being a veteran curator wishing for every individuality’s uniqueness to be displayed.
The materials and colors of the exterior wall are not deliberately in contrast with the surrounding buildings. I always feel that in an overly elite-oriented community, architects would prefer a community strategy that aims at harmony and diversity through integration of external interface and classlessness in space perse.
When the project has just completed, Professor Sun Yimin (Dean of School of Architecture, South China University of Technology) happened to mention about Qilou (Guangzhou Arcade House) in one of his speeches that “we don’t have to worry about its concrete language at all. Its form can be modern but the most important thing is life. The life of this city has been accommodated by these buildings. Therefore Qilou merely functions as a container. The key is what characters and purposes such a container represents.” Finally, we managed to add another 1km long “Qilou” to the “Cultural Golden Coast” on Ersha Island, which will serve as space free from wind and rain, for traffic, social, cultural and commercial purposes.
Project Name: Ersha Island MAN LAP FONG
Architecture Firm: FEI Architects
Completion Year:2018
Gross Built Area:22,550 m²
Project location: No.1 Qingbo Rd., Ersha Island, Guangzhou, Guangdong
Lead Architects: Michelle Yip
Photo credits: QIU&Zhang-Hongwei
Design Team: Li Zhiyao, Diao Jiajun, Yu Yao, Song Dingkan, Yue Liang
Clients: Chinese National Culture Promotion Association
客服
消息
收藏
下载
最近






























