查看完整案例


收藏

下载

翻译
Firm: A. M. Architects
Type: Commercial › Retail Supermarket
STATUS: Built
YEAR: 2021
SIZE: 10,000 sqft - 25,000 sqft
BUDGET: $1M - 5M
Many years ago, in the communist era, there was a fine old grocery store in Devin. After the regime change, it was abandoned and the old functionalist building was left derelict for decades. In 2019, an architectural competition was held and the winning proposal, from A.M. architects, has just been completed.
The Boutique Grocery Store stands in the heart of Devin near one of Bratislava’s most significant landmarks – Devin Castle. The old derelict, communist-era building has been transformed into a state-of-the-art shopping facility operated via biometric face recognition and Jarvis; Jarvis is a context-aware software program that uses voice recognition to exercise commands. The customer‘s face is recognized, the store opens, the lights go on and the customer pays via an automated checkout. My octogenarian mother was utterly intrigued!
As a result of the technology, the store is able to remain open 24/7 with no staff required during the night or at weekends.
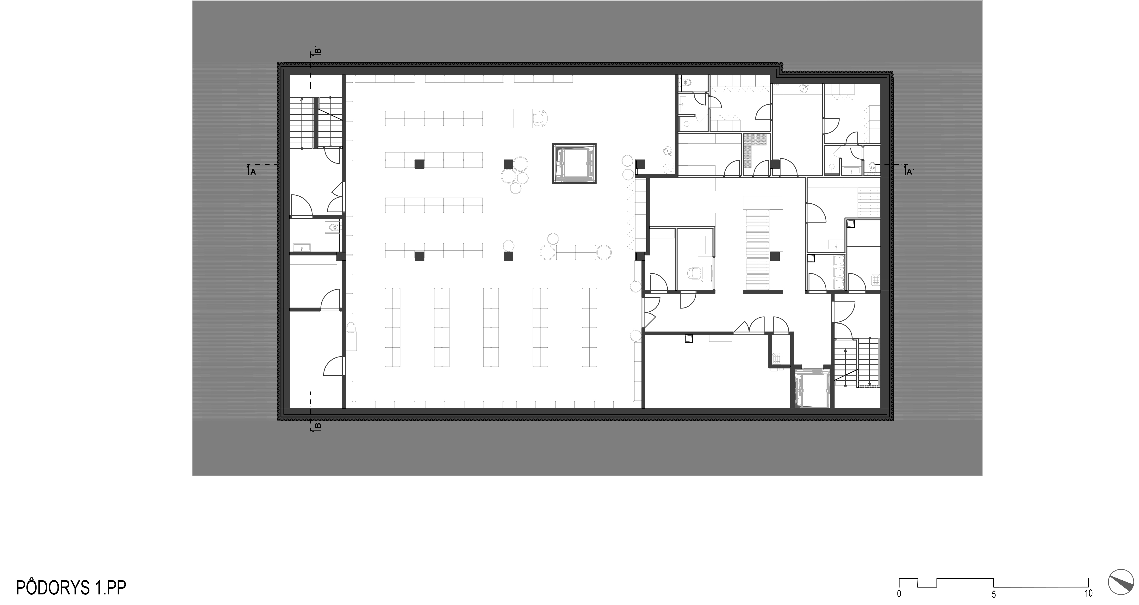
The form of the building is rather simple and blends well with the surrounding buildings. The lower part is clad in black ceramics and features a flat, green roof, and the upper part, with a pitched roof, is clad in siberian birch. All the materials are showcased in their raw form including the cross-laminated timber roof.
The first floor is dedicated to the grocery store with a bakery, and a wine store is located on the lower ground floor. The two levels are connected via a feature staircase and a glass lift. All the technology is tucked away so that it does not interfere with the view of Devin Castle.
客服
消息
收藏
下载
最近












