查看完整案例

收藏

下载
云影」
法式优雅,是一种态度,是从骨子里散发出来的浪漫气质。它沉静、优雅、不喧闹,美得不动声色。
▼业主需求
业主是长辈与之同住,平时可能还是长辈居住的多的情况下,需要两个比较大的卧室。做了主卧+衣帽间+内卫,次卧+衣帽间的设置。平时 5 口人(一个刚出生的宝宝)
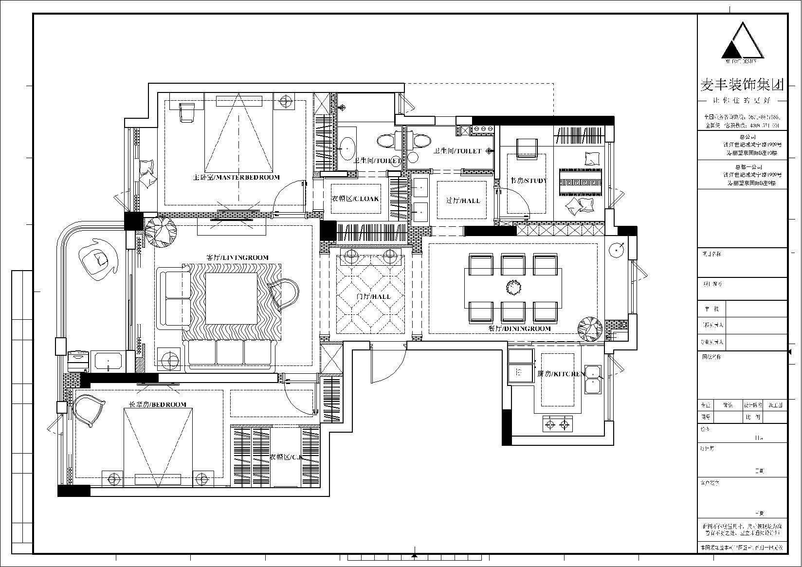
▼设计方案(户型对比图)
▼户型优劣势
优势:户型方正,主次卧较为宽敞。
劣势:客厅偏小,进门如需保留门厅位置,厨房及餐厅面积将会很紧凑,北面 2 小房间比较鸡肋。
▼户型改造
将北面小房间变成封闭式厨房,原厨房位置留有蒸烤箱及水吧台(西厨位置),剩余部分合并于餐厅,促使餐厅面积增加,在保留门厅之余,拥有与客厅相通的超长餐桌,扩大公区面积。
餐厅与客房墙体拆除,新建酒柜充分利用空间。
客厅朝主卧扩过去了 30 公分,主卧卫生间利用了原来的管道位置,将管道包进墙,扩大主卧面积。
外卫墙体进行改造,双台盆干湿分离。
▼设计灵感
法式轻奢是一个挺广的范围,采用了丰富吊顶石膏线及墙面线条角花来营造层次感的手法,尽可能的采用对称,组成一个优雅的空间。
玄关 Entrance
本案将展现许多带有法式风格的花纹和线条,其精雕细琢的工艺,给人扑面而来的浓郁气息。
法式空间讲究一种对称性,所以在设计过程中我们也考虑到了这一点。玄关作为入户的初印象和家的风格缩影,我们把灯具、挂画、线条、柜体等都以对称的方式出现。
客厅 Living Room 我们追求心灵的自然归属,诗意的生活不在远方,就在此处。伸手可触的温暖柔情,就连柴米油盐也变得唯美动人。
摈弃经典法式风格中繁冗复杂的装饰和甜腻的色彩,用经典轴线和对称布局的方式,搭配清新淡雅的整体色调,展现一个充满格调的居住空间。
姜黄色和深宝蓝撞色给人舒适协调的视觉效果,在淡雅的整体色调中融入少许跳跃的颜色,提升空间层次感的同时也让居住者倍感温暖。
餐厅
Dining Hall
餐厅也是统一的浅灰色调,融入奢华妩媚的金色,阳光下泛着光泽,正中的水晶灯和陈列的高脚杯让人迷醉,一家人沉浸于浪漫的用餐氛围中。
主卧 Master Bedroom
这里拥有大自然的清新和普罗旺斯的浪漫。主卧以淡粉色点缀,结合法式灯盘、线条和家具的弧形曲度,展现法式风格中优雅矜贵的品质和细致浪漫的情怀。
每个空间都通过精细考究的工艺细节,精准表达雍容华贵的气质,传达独特的浪漫意境,让人在浓郁的氛围中感受生活带来的幸福感。
次卧 Guest Bedroom 次卧留给父母,设计师运用香槟色给人营造一种高贵的视觉享受,时尚清爽的同时提升整体的气质。
衣柜融入了罗马柱的装饰元素,其气派的造型和精致的雕花诠释了奢华尊贵之感,也使整体的层次感更加丰富。
卫生间
Bathroom
卫生间以不同颜色的砖墙来划分功能区,台盆非传统设计,以清爽的金色细脚作为支撑,融入法式的精致,空间整体也以统一的五金作为装饰,整洁干净。
小景 Little Bing
生活是朵娇美的花,爱就是花蜜。
案例信息丨Case Information
项目地点:东方星城
项目类型:住宅
项目性质:全包
项目面积:130㎡
项目风格:法式轻奢
设计师:麦丰国际设计
施工:浙江麦丰装饰设计工程有限公司
软装:东麦家居
主要用材:木护墙 石膏线 乳胶漆 瓷砖 地板
客服
消息
收藏
下载
最近





















