查看完整案例


收藏

下载

翻译
Firm: CASTAÑEDA-COHEN-NANZER-SAAL-SALASSA-TISSOT
Type: Cultural › Cultural Center Gallery Museum Pavilion Sculpture Landscape + Planning › Public Park Urban Green Space
STATUS: Built
YEAR: 2014
ARQS: Ivan Castañeda, Alejandro Cohen, Cristián Nanzer, Inés Saal, Juan Salassa, Santiago Tissot
Making a landscape from a building was the ruling concept that guided this project search on the demand presented by the tender for the building of a “Córdoba Province Interpretation Centre” to commemorate the Argentine Republic Bicentennial. The main challenge was to incorporate The Province Historical File and the Auditorium without modifying the project essence.
The project searched for a long lasting contemporary building as a sign of present time and its new demand for clarity, sustenance, communicative capacity and resource economy. It was an attempt to build a landscape over the idea of building a monument. This urban space is articulated over three basic elements: Stairs Building (pavilion), Pharos (long distance perspective icon) and avenue (with bifurcations and paths network). A landscape that would allow diverse public collective meetings above the idea of a traditional allegoric narrative monument, a meeting area landscape over the idea of a monument-building construction.
The area devoted to the new building is part of Córdoba Province in the center of the Sarmiento Park between two city museums: MEC- Emilio Caraffa Contemporary Art Museum (Architects GGMPU + Mzarch) settled on the corner of this park, opening itself towards España Square (Architect Miguel Ángel Roca project) and the Province Natural Science Museum. The land referred to shows a 6,50 m depression between Poeta Lugones Street access and the highest Sarmiento Park elevation level.
This situation allowed conceiving a 63 m by 67 m wavy reinforced concrete layer on a petrified liquid gesture. it shows the movement of a rocky sea which freezes its impulse in the air to introduce the meeting between the city and its oldest park, Sarmiento Park, designed by Architect Carlos Thays.
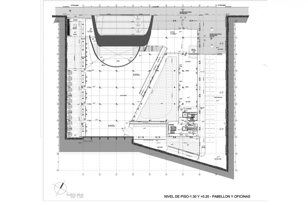
The “Bicentennial Pharos” can be seen from several kilometers away. It points at the Córdoba Cultural Centre. It is an helical concrete column that rotates on its axe up to almost 90 m height. There is a mast on its top that takes the pharos to a total height of 102 m. The Cultural Center expositions room, the Auditorium and the Córdoba Province Historic File are under the square together with technical and service areas.
Location: Sarmiento Park, Córdoba, Cordoba, Argentina
General Architectural And Landscape Project: Iván Castañeda, Alejandro Cohen, Cristián Nanzer, Inés Saal, Juan Salassa, Santiago Tissot
Project Area: 15000 sqm
Project Year: 2014
Photographs: Gonzalo Viramonte
客服
消息
收藏
下载
最近















































