查看完整案例


收藏

下载
Shen Yuan - design
晓看风光变幻,夜枕星光入眠
Watching the changing scenery at dawn and sleeping by starlight at night
关于设计
About project
项目地址/Project address:中粮本案
设计公司/Design company:沈院室内设计工作室
设计/Design:沈院
项目类别/Item category:别墅
项目面积/Project area:256㎡
摄影/Photography:杨森
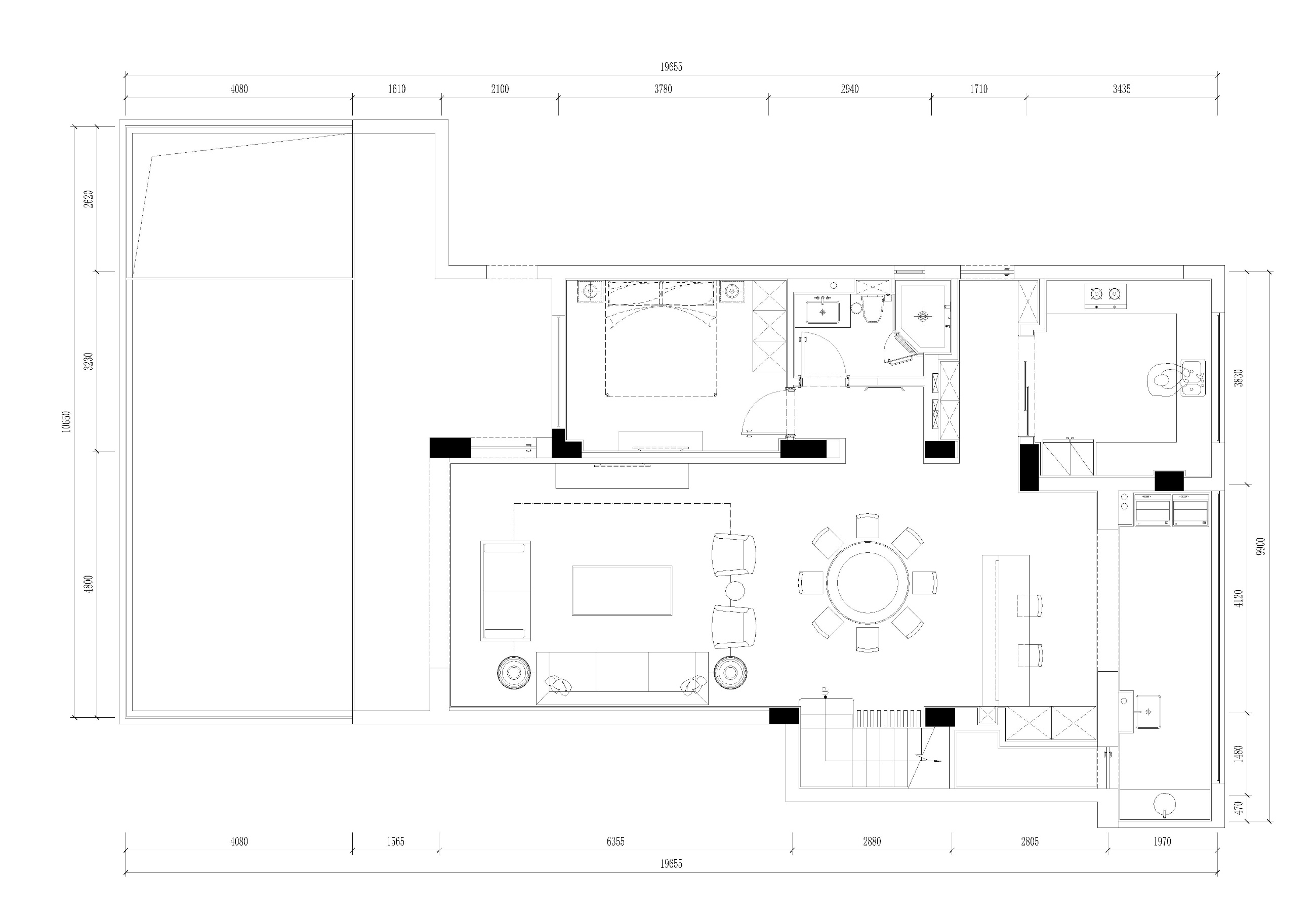
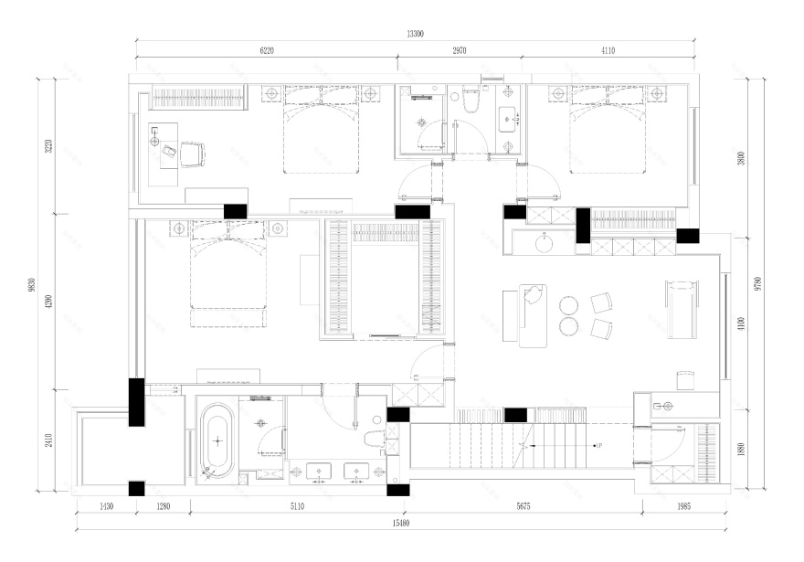
户型解析
Type Analysis
1楼原始结构图
1楼平面布置图
2楼原始结构图
2楼平面布置图
实景案例
Live Case
多样的灯光用明暗调节着空间的氛围。造型别出心裁的门套,背景墙质感的纹理,都于细节之中塑造空间的格调。
大面积的木饰面区别于客厅的主材,将两个空间区分开来。不同的材质,统一的奶茶色,整个空间浸润其中,温柔又静谧。
为满足日常生活,餐厅的局部空间被设计成西厨,岛台搭配精致的高脚凳与充足的收纳空间,从功能和生活情调上,都得到了提升。
从实用主义出发,厨房的设计简约而凝练。统一的色调清爽干净,赋予视觉完美的体验。
木质栅栏隔断与扶手,和灯光一起,重塑了楼梯的空间感。转角处的弧形墙面用艺术的呈现方式展现空间优雅与精致。
整块玻璃的大落地窗让空间与自然共生,四季流转的旖旎景色便成为空间最美的装饰。休憩空间有此足以,空间所需的宁静,便让润泽的木质和温和的灰来创造。
简单的小书房充实了卧室的功能,也丰富着主人的精神世界。些许的暖色调加入,瞬间提升空间的温度。
独立的茶水区,容量充足的书架,简单舒适的布艺沙发,组合起来便成为闲适自在的代名词,让足不出户的时光充实又惬意。
无主灯的空间光线均匀而柔和,双台盆的设计既彰显空间的尺度,也为日常的生活提供便利。
设计的意义在于探寻生活的更多可能
利用建筑的环境和材质
让人一步步接近心驰神往的生活
空间的每一处我们都将认真对待
让微小的细节,都成为迈向梦想生活的一大步
客服
消息
收藏
下载
最近


























