查看完整案例


收藏

下载

翻译
Firm: ccubica arquitectos
Type: Cultural › Cultural Center Gallery Pavilion
STATUS: Built
YEAR: 2017
SIZE: 1000 sqft - 3000 sqft
BUDGET: Undisclosed
The scenic railway of Chapultepec forest, known as "little train" was for several decades one of the most attractive recreational and entertainment spaces within the Second Section of Chapultepec forest. This space, designed by Félix Candela, worked as the service station and the maintenance of the railway for children, which undoubtedly remains in the memory of many generations.
After several years in disuse, the workshop has been rescued to pay homage to its original playful vocation, being the temporary headquarters of the Information Center of the World Design Capital 2018 program, Mexico City. The focus of this project is to recover an episode of the collective memory of our city, as well as to show and socialize significant information for the present and future of our city according to the profile of the Socially Responsible Design program.
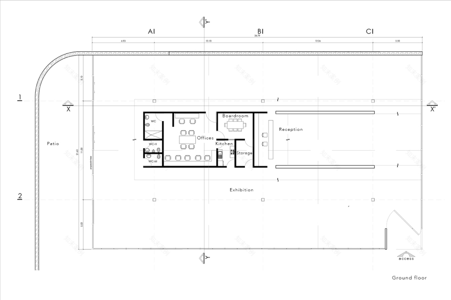
Espacio CDMX is a clear example of the recovery of the architectural heritage of the city, in which the structure projected by Félix Candela, characterized by its inverted umbrellas, was respected almost 100%. Through its specific restoration process, the original architectural quality was emphasized, where the layout of its 3 naves and its absence of details makes it a multifunctional and adaptable architectural space. This restoration, carried out by C Cúbica Arquitectos and Sinestesia Arquitectos, constitutes a new urban piece that enriches the cultural fabric of the Chapultepec forest and the City of Mexico.
The main function of Espacio CDMX is as a platform and content deployment, as well as a meeting point to link ideas and social design thinking committed to the urban environment. Starting from the notion that the game represents an educational mechanism, this place will honor the playful past through the content of its program. Besides the process of physical and symbolic recovery of the place, it explores a new socializing potential by nourishing it with different activities that reflect about our urban present and potentiate transforming ideas to rethink the future of our city. During the last year, exhibitions, workshops and activations were hosted from projects of students, designers, architects and groups of cultural production to generate a proposal of very specific content to the visiting public of the forest.
客服
消息
收藏
下载
最近


















