查看完整案例


收藏

下载
中庭自然采光设计,木梁纹理,水磨石地面。
将设计融于人性,运用白鸽元素,
将空间带入一种悠闲自在的情境。
复古的书柜墙
休憩片刻翻看杂志
任思绪蔓延,人生如戏,不如一聚。
从业态空间过渡到节点灰空间,
从集市过渡到休息区,体验丰富的动线层次。
灰调北欧风的沙发和座椅,
如剧场般的仪式感拉开帷幕。
有效规划布局,合理使用空间。
北欧风格主调,简洁古铜吊灯,高贵舒适座椅,局部天井采光,增强室内与室外的互动关系。
就餐区,落地窗,局部地面抬高,
空间立体层次感,美食伴随着音乐,窗外风景独好。
通过天井的自然采光,丰富视觉体验。
体验人与自然,室内与室外的互动关系。
从院落中望去,透过整面落地窗,蒙太奇式的场景切换,一树繁花,一室繁华。
ORIGINAL APPEARANCE
-
项目原貌
建筑—原空间最初是一个50年代印刷厂的制版车间和配套花房,其空间木质构架和院落保留完好。
庭院—在旧建筑原有的结构空间单一的情况下,我们有意识的包容和保留各种历史遗留、结构和空间的过去。
SU SIMULATION
-
草图大师模拟
在布局上,我们采用下沉式,天井,抬高,丰富空间的动线和区域划分,增加院落和室内的互动体验关系,获得更丰富的视觉交互,为多种场景下的功能布局提供可能。
PROCESS
-
施工过程
原庭院路灯、老树、空间木质构架和院落
在施工的过程中,尽可能的尊重建筑原有风貌,你可以看到树从钢板中穿过、木香花依然在院落中摇曳、陈旧的红色砖墙裸露在外。
模拟山川、河流的自然景观。
GRAFT
-
施工工艺
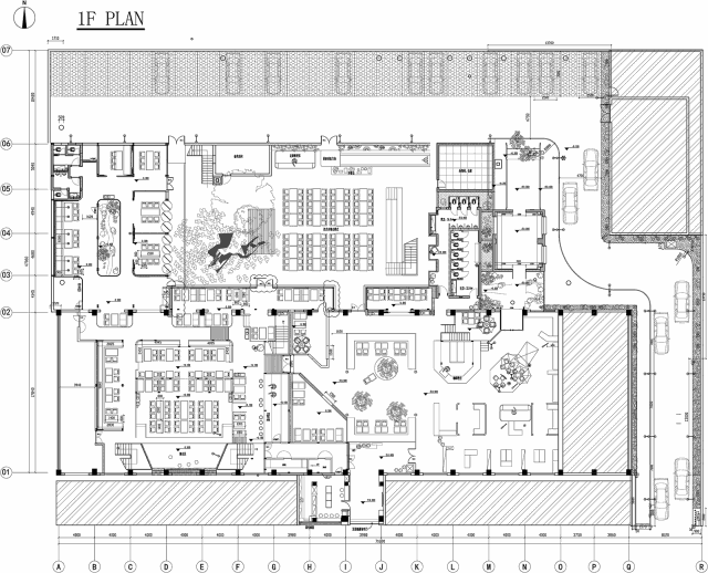
FLOOR PLAN
-
平面图
客服
消息
收藏
下载
最近































