查看完整案例


收藏

下载

翻译
Architect:Gaston Castellano
Location:Cañuelas, Argentina
Category:Private Houses
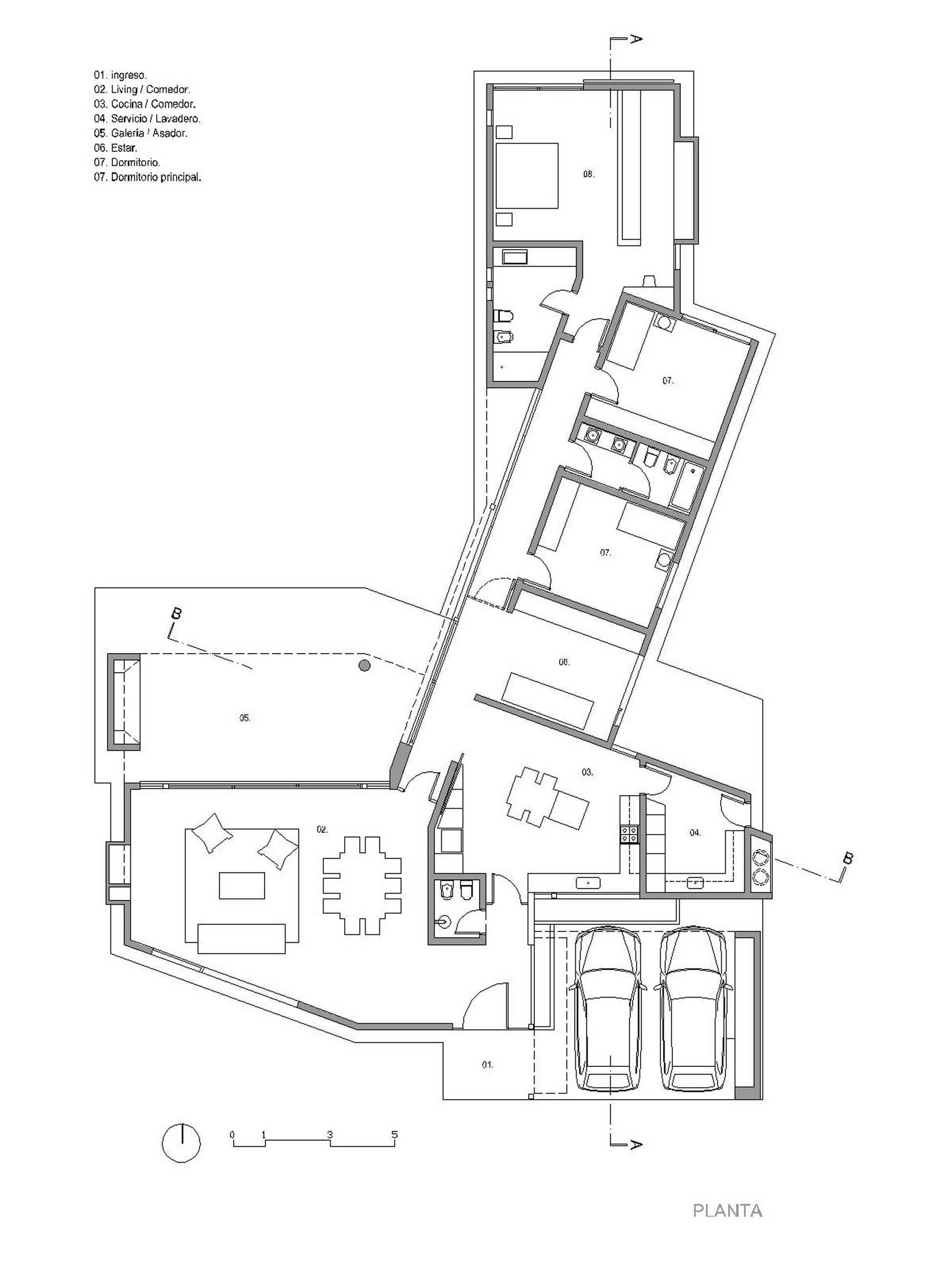
The house is situated in “Cañuelas” a gated neighborhood in the South area of the city of Córdoba, based on a plain rectangular plot of land facing South –North.
It is a one storey house where all public, private and service areas are included in an” L” design. It has an open angle facing the back area of the plot so as to optimize its visual and spacial possibilities.
The main characteristic of its design is, its glassed aisle through which all areas of the house are connected with a continuous relationship with the outside green surroundings.
The front façade of the house is mainly dominated by its “introverted” personality is closed both for the sake of privacy and bearing in mind negative weather conditions while the back is open. This feature highlights the “surprise” of its interior design striking a difference from the outside façade.
The house was constructed using a combined system of anti-seismic concrete structure with brick walls on a concrete platform . Parts of its structure was left rough without any cover to match other materials such as glass, steel and stone .The idea was to lower future maintenance expenses.
▼项目更多图片
客服
消息
收藏
下载
最近
































