查看完整案例


收藏

下载
Cordoba Canuelas Residential
设计方:Gaston Castellano
位置: 科尔多瓦
分类:居住建筑
内容:实景照片
图片:30张
住宅位于“Canuelas”,这是位于科尔多瓦城市南部区域的一个带栅门的街区,以一个平坦的直角场址为基础,场址面对着南-北方向。这是一栋一层楼设计的住宅,所有的公共区域、私人区域和服务区域都位于这栋L型设计的住宅中。住宅拥有面对场址后部区域的开放角度,以便于将视觉上和空间上的可能性发挥到最优的状态。住宅设计的主要特色是玻璃制的走廊,通过这个走廊,住宅中所有的区域都与户外的绿色环境有了连续的关系。
住宅正面的墙壁主要被它“内向”的特色所掌控,前部封闭、后部敞开的设计考虑到了隐私和消极的天气情况。这样的特色突出了内部特色的“惊奇”,与外部的墙壁相比,两者的差异性就太明显了。住宅的修建使用了一个符合系统,即抗震的混凝土结构和位于混凝土平台上的砖墙。住宅有一部分结构是粗糙的、没有任何封面的,所以不与其他的材料,比如说玻璃、钢筋和石头相匹配。
译者 :蝈蝈
The house is situated in “Canuelas” a gated neighborhood in the South area of the city of Cordoba, based on a plain rectangular plot of land facing South –North.It is a one storey house where all public, private and service areas are included in an” L” design. It has an open angle facing the back area of the plot so as to optimize its visual and spacial possibilities.The main characteristic of its design is, its glassed aisle through which all areas of the house are connected with a continuous relationship with the outside green surroundings.
The front facade of the house is mainly dominated by its “introverted” personality is closed both for the sake of privacy and bearing in mind negative weather conditions while the back is open. This feature highlights the “surprise” of its interior design striking a difference from the outside facade.The house was constructed using a combined system of anti-seismic concrete structure with brick walls on a concrete platform . Parts of its structure was left rough without any cover to match other materials such as glass, steel and stone .
科尔多瓦Canuelas住宅外部实景图
科尔多瓦Canuelas住宅内部实景图
科尔多瓦Canuelas
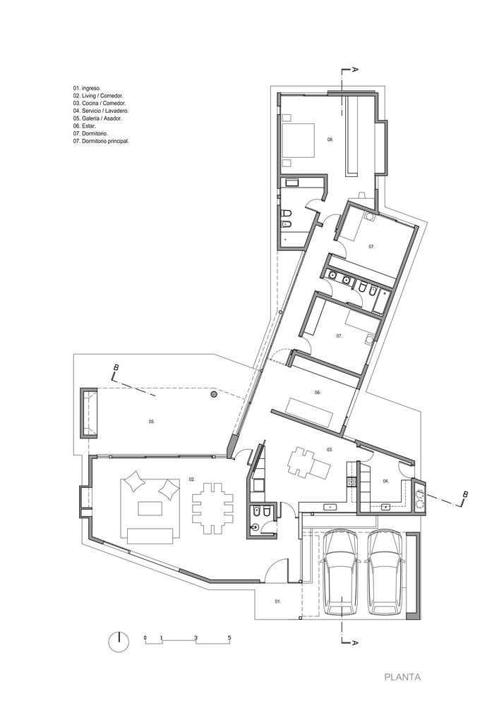
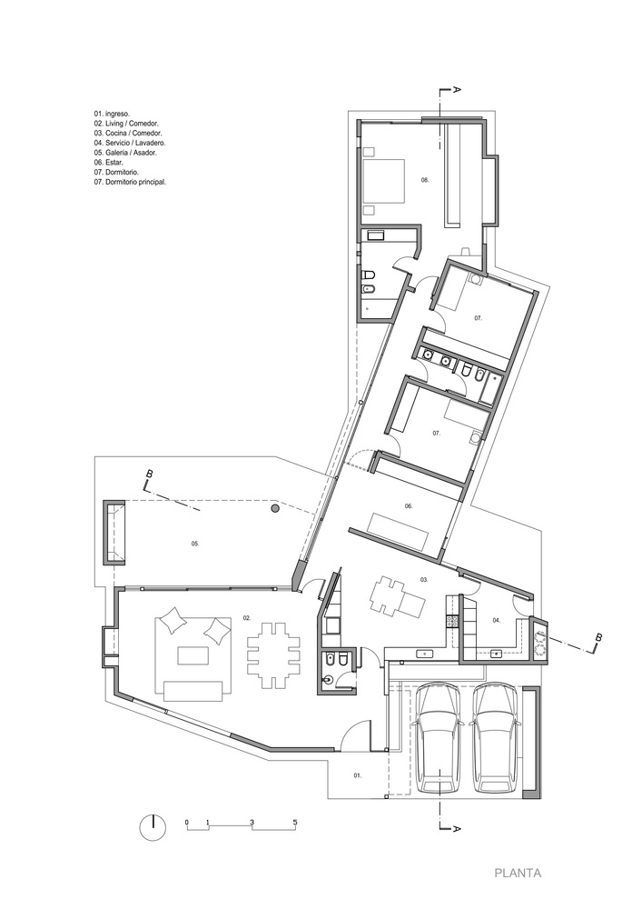
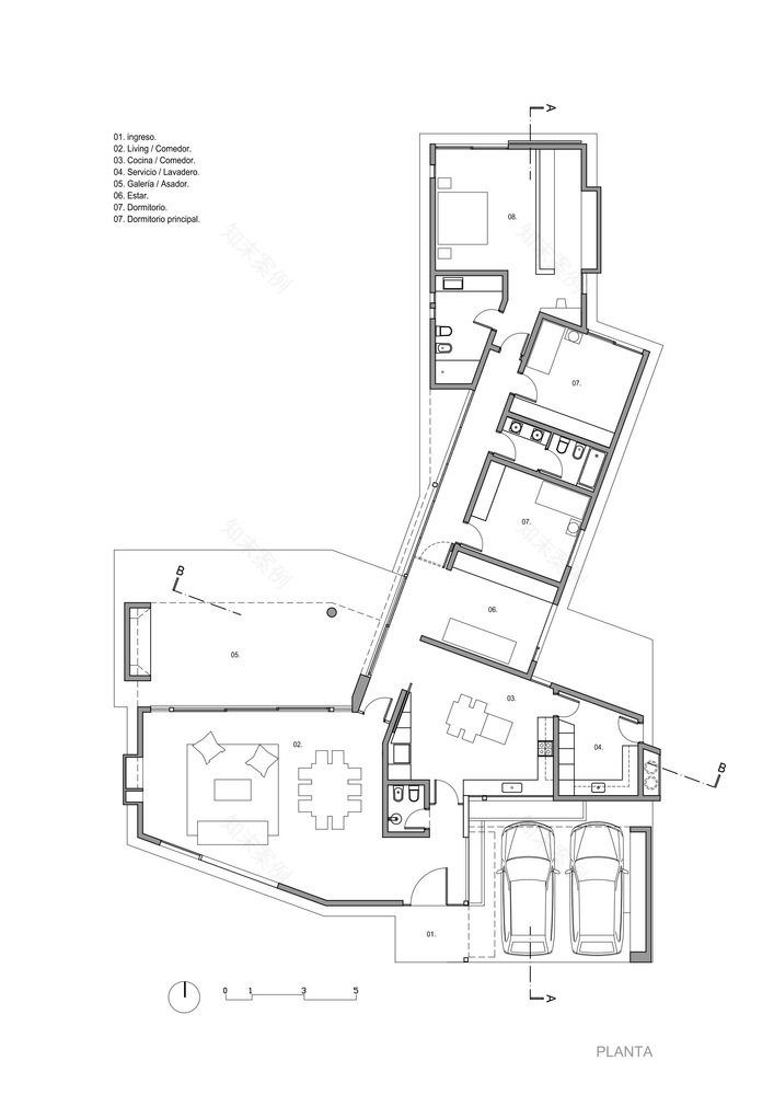
住宅平面图
科尔多瓦Canuelas住宅示意图
科尔多瓦Canuelas住宅平面图
科尔多瓦Canuelas住宅剖面图
科尔多瓦Canuelas住宅立面图
客服
消息
收藏
下载
最近





























































