查看完整案例


收藏

下载

翻译
Architect:Justin Mallia architecture
Location:Malvern, Australia; | ;
Project Year:2015
Category:Housing;Private Houses
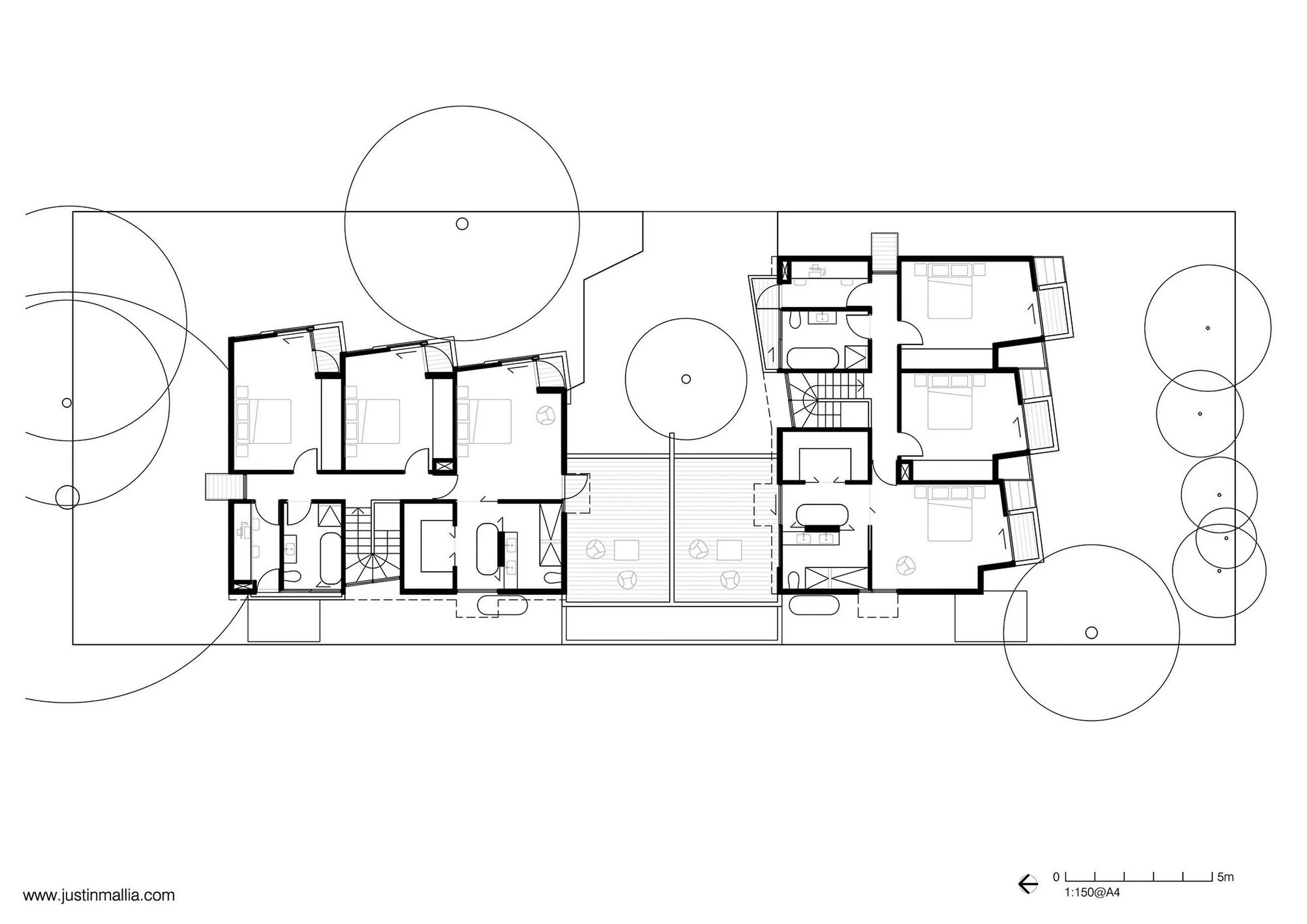
Oak Grove is a development driven venture. Between a detailed client brief laden with ideas about visual style, and the site located in the eclectic suburban context of East Malvern, the architecture negotiates a meaningful contemporary response within highly saturated physical and conceptual parameters.
For cost efficiency the project involves two identical rectangular houses placed at ninety degrees to one another creating a garden setting that brings the feeling of the large street trees into the site. Each house has the same folded front façade derived from the site’s slightly angular orientation to north, with different alternate facets protruding, openable, glazed or solid, giving all habitable spaces flexible cross ventilation, north orientation and connection to outside. With each façade designed to be suitable at two different orientations, the resulting appearance from the street is a series of differently folded shifting patchwork elevations rather than two identical buildings alongside one another.
The project procures a sense of value through the expression of inexpensive materials according to their attributes and the amplification of the detail and craftsmanship inherent in the use of these materials which are usually ignored or concealed. Both inside and out, the entirely timber framed structure is also exposed in places, enrichening the multilayered architectural textures, rhythms and scales of the buildings. These patchwork assemblages are accordingly integral to the building fabric, with interior compositions tailored to the immediate purpose of the interfaces to each space.
Almost all surfaces of the project are coloured white. This combines them with a sense of unity in themselves and identity in an overwhelming context of different influences, while the sensitive consideration of the transparency, gloss levels and weathering of coatings, accentuates the subtly rich façade composition, heightens the perception of the careful detailing and enables a delightful engagement with the filtering light and shadows of the trees.
With the uncertainty of how a development project will be occupied, this scheme is an environmentally sensitive, flexible and tactile background for living that unashamedly but humbly fits in with and shares the aspirations of its client and context.
▼项目更多图片
客服
消息
收藏
下载
最近
































