查看完整案例


收藏

下载

翻译
Architect:ISON Architects
Location:Yeonhui-dong, Seoul, South Korea
Project Year:2015
Category:Private Houses
Marimba house is a residence and a studio for three musicians. The given site is one of four lots the client has from the beginning moment of the formation of Yeonhee village of which habitants are mostly of upper-middle class. The four lots are between two parallel streets to which each two lots are aligned. We proposed, for the beginning, a master plan for all of four lots conceiving it as a whole family cluster. This project is the first step of the whole.
We decided to make the house of wooden structure. The fast completion of the structure was one reason and the ideal solution as an acoustic resolution was another. In the masterplan suggested, on angles of each lot we put a cube mass which meets a slowly inclined pitched roof on two sides cut obliquely on the plan so that when the cluster will be completed would create a well defined courtyard at the center.
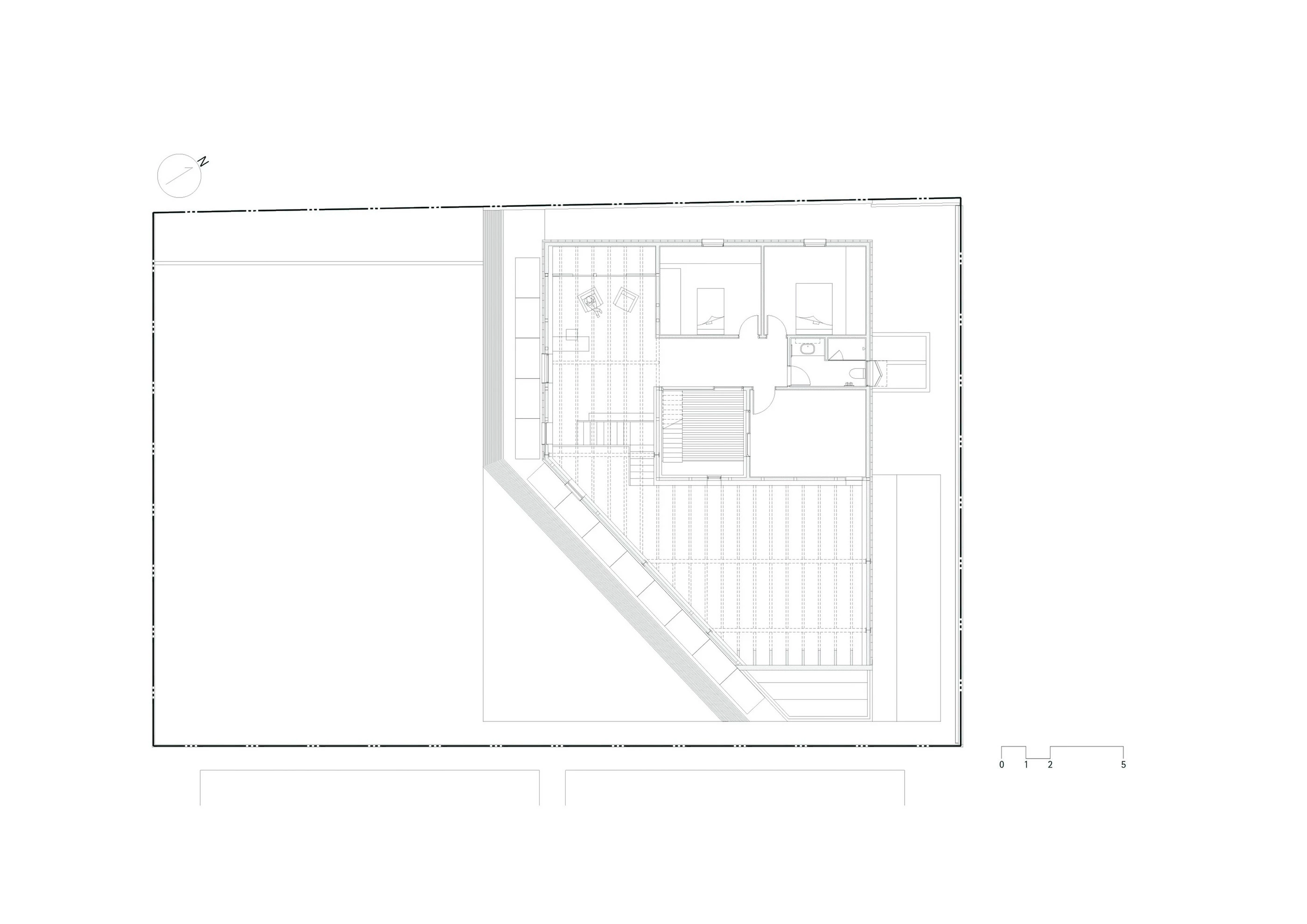
The cube contains lesson rooms on ground floor and three bed rooms on the second floor, plus a small terrace to make a compact private atmosphere. In the meantime, under the pitched roof, a large multi-use space is connected to the living room by stairs.
The wooden structure is not evident from outside. Ironically we used the cement bricks for the lower part of the pitched roof space and the drivit for the cube. Being conscious of the fact that the red bricks which was very popular materials in the sixties and seventies are dominant in the whole village, we had the drivit painted in strong red_brick colour . A subtle interplay in materials and colours with circumstances we wanted. On the other hand, in the interior space of the house, wooden materials are overwhelming. A 1.8m wide wooden louver was laid along the whole length facing the garden in 2.2m height in the way that it roles as a spatial and visual device to put in relationships between the inner and outer spaces. The obliquely cut away part on the plan for the future courtyard is substituted with a large wooden deck to continue into the inner space alluding the wooden finishings of interior spaces.
The cube meets the pitched roof on two sides. Alongside the whole length, we put the narrow top-lights to make the two different volume evidential and to give the natural lights to the deep inside. The white wall of the cube is supposed to be strongly washed by sun lights at a certain moment of the day.
Korean upper-middle class village usually has high and strong walls along the streets and neighbors for their privacy. To give a visual breath to neighbors keeping privacy at the same time we needed a specific wall solution. We proposed a thin metal louver arrayed obliquely in 100mm distance with different heights according to the situations. A dense rhythm to the street was another gain.
▼项目更多图片
客服
消息
收藏
下载
最近

























