查看完整案例

收藏

下载

翻译
Architect:Naoko Horibe + Horibe Associates architect's office
Location:Usa, Japan; | ;
Project Year:2012
Category:Private Houses
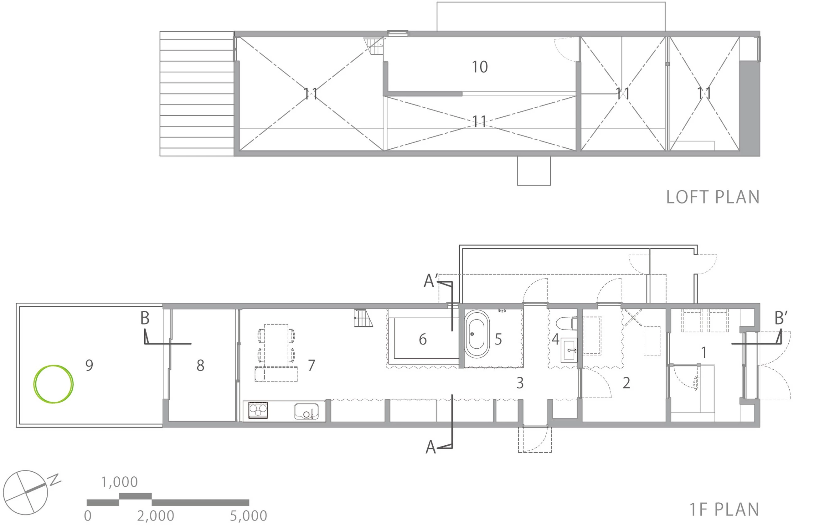
Located on a long, thin lot surrounded by rice fields, this combined residence and dog salon has a symbolic shape that turns the building itself into a sign for the business. The dog salon occupies the part of the building adjacent to the main road, with bathrooms and kitchen in the center so as to be easily accessed from both the shop and the residence, while the familyЃfs relaxation space ? the living and dining room ? is located further towards the back. Because the line of sight extends unbroken from the shop entrance back through the garden, the space feels larger than it actually is. The architects kept both cost and space under control with features such as concrete floors and plywood ceilings, while still creating a relaxed, open home.
▼项目更多图片
客服
消息
收藏
下载
最近




























