查看完整案例


收藏

下载

翻译
Architect:Tropical Space
Location:Ho Chi Minh City, Vietnam; | ;
Project Year:2015
Category:Private Houses
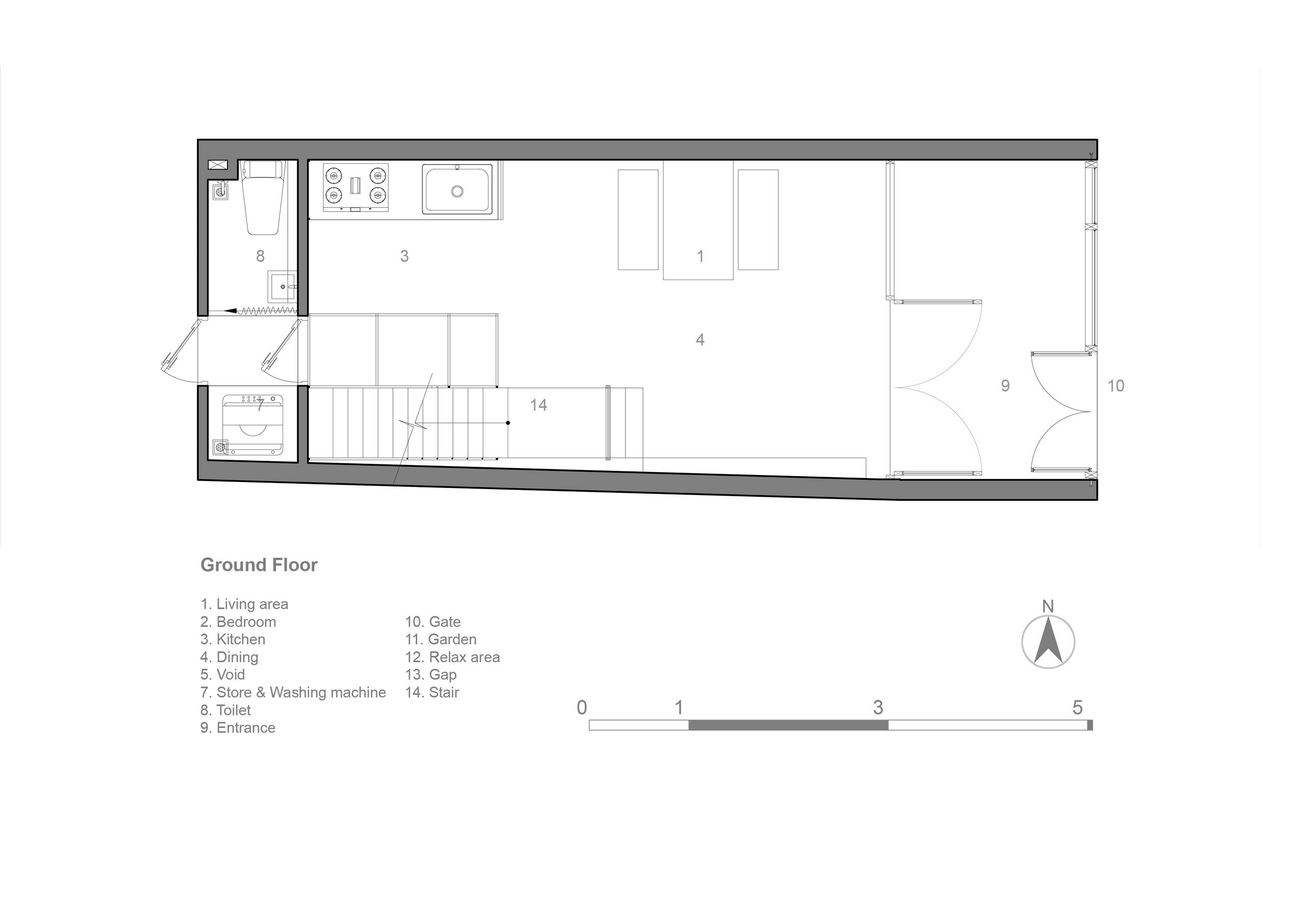
Wasp House is a small house with the area of 3,5mx7m, in the community of Chinese-Vietnamese in Binh Tan District, Ho Chi Minh City. This house is built for 2 siblings with 2 floors, each floor is a bedroom. The house is emphasised by the unique stair which is not only used as a stair itself, but also it is a corner for planting some flowers, reading books or just simply sitting down and relaxing.
The house is full of sunlight with the glass on the roof and the the brick wall arranged with holes. Sunlight with the rustic brick create a close living space with variety of emotion.
The gate and fence are designed simply with metal grille in order to plant the vines. These vines will cover the facade of house later on and help to filter the dust out.
To save the cost, the architects simplify the details, materials and the furniture, as well as optimize the functional spaces and reduce the height of each floor.
The design team wants to bring a bright and lively living space to thisneighborhood, with the notion that a beautiful house is not only for the high imcome people.
▼项目更多图片
客服
消息
收藏
下载
最近






































